Community
    Sign in to your account

    Sign up for the Dlubal Extranet to get most of the software and have exclusive access to your personal data.

    Create Account
    By signing-in you agree to Dlubal Conditions of Use & Sale. Please see our Privacy Notice, our Cookies Notice.
    0
    Webshop
    Contact Sales Team
    Language
    • Deutsch
    • English
    • Français
    • Español
    • Português
    • Italiano
    • Česky
    • Polski
    • Pусский
    • 中文(简体)
    • Industries
      • Reinforced Concrete Structures
      • Prestressed Concrete Structures
      • Steel Structures
      • Wood & Mass Timber Structures
      • Masonry Structures
      • Aluminum and Lightweight Structures
      • Buildings
      • Industrial Structures and Plants
      • Pipelines
      • Bridge Structures
      • Cranes and Craneways
      • Towers and Masts
      • Glass Structures
      • Tensile Membrane Structures
      • Cable and Tensile Structures
      • Laminate and Sandwich Structures
      • Temporary Structures
      • Scaffolding and Rack Structures
      • Offshore Structures
      • Silos and Storage Tanks
      • Renewable Energy Plants
      • Solar Structures & Mounting Systems
      • Shipbuilding and Floating Bodies
      • Conveyor Structures
      • Drilling Structures
      • Swimming Pools and Water Parks
      • Container Structures
      • Drilled Pile Foundations
      • Staircase Structures
      • Power Plants
      • Hydraulic Steel Engineering
      • Mechanical Engineering
      • Pneumatic Structures
      Application Areas
      • Structural Engineering
      • Finite Element Analysis (FEA)
      • Wind Simulation and Wind Load Generation
      • Stress Analysis
      • Nonlinear Analysis
      • Stability Analysis
      • Nonlinear Buckling Analysis
      • Warping Torsion Analysis
      • Dynamic and Seismic Analysis
      • Nonlinear Dynamic Analysis
      • Pushover Analysis
      • Form-Finding and Cutting Patterns
      • Steel Joints
      • BIM Planning
      • Cold-Formed Sections
      • Soil-Structure Interaction
      • Facade Analysis
      • Foundations and Foundation Engineering
      • Construction Stages
      • Fire Resistance
      Standards
      • Eurocodes (EC)
      • German Standards (DIN)
      • British Standards (BS EN, BS)
      • Italian Standards (NTC)
      • US Standards
      • Canadian Standards (CSA)
      • Australian Standards (AS)
      • Swiss Standards (SIA)
      • Chinese Standards (GB, HK)
      • Indian Standards (IS)
      • Mexican Standards (RCDF, CFE Sismo 15)
      • Russian Standards (SP)
      • South African Standards (SANS)
      • Brazilian Standards (NBR)
      Online Services
      • Geo-Zone Tool Top Menu Icon Snow Load, Wind Speed, and Seismic Load Maps
      • Cloud Calculation Icon Cloud Calculations
      • Structural Analysis Wiki Icon Structural Analysis Wiki
      • Cross-Section Properties of Steel and Timber Sections Icon Cross-Section Properties of Steel Cross-Sections
      Structural Design for Solar Systems

      Dlubal Software helps you create and verify any solar mounting system. Work efficiently with steel, aluminum, and concrete structures in a single environment.

      Explore Tools
      Solar Structures Solar Structures | Mobile Version
      Dlubal API

      The new Dlubal API service (gRPC) provides you with a flexible interface to the structural analysis software based on Python and C#, with direct access to the entire Dlubal product range.

      Start With API
      Background for the main menu banner API Background for the main menu banner API
    • Icon representing RFEM 6, a finite element analysis software application. RFEM 6 Only Structural Analysis and Design Software You Need for Your Projects

      RFEM 6 serves as the basis of the modular program family and is used to define structures, materials, and actions for plate, wall, shell, and beam structures, as well as for solids and contact elements.

      More Information
      Add-on Switch Icon Add-ons
      • Additional Analyses
      • Dynamic Analysis
      • Special Solutions
      • Design
      • Connections
      RSTAB 9 Icon without borders RSTAB 9 Iconic Frame and Truss Analysis Software

      RSTAB 9 is a powerful analysis and design software for 3D beam, frame, or truss structure calculations, reflecting the current state of the art and helping structural engineers meet requirements in modern civil engineering.

      More Information
      Add-on Switch Icon Add-ons
      • Additional Analysis
      • Dynamic Analysis
      • Special Solutions
      • Design
      RSECTION 1 Icon without borders RSECTION 1 User-Defined Cross-Section Properties

      RSECTION supports structural engineers by determining cross-section properties for a wide variety of cross-sections and allowing for subsequent stress analysis.

      More Information
      RWIND 3 Icon without borders RWIND 3 CFD Software for Digital Wind Tunnels

      RWIND 3 is a digital wind tunnel for simulating wind flows around any building geometry and for the calculation of the wind loads on their surfaces.

      More Information
      API Icon Dlubal API Your Gateway to Parametric Modeling and Automation

      The new Dlubal API service (gRPC) provides you with a flexible interface to the structural analysis software based on Python and C#, with direct access to the entire Dlubal product range. Benefit from seamless and powerful integration into your Dlubal software—ideal for parametric modeling and complex optimization tasks.

      Discover API
      API Documentation API Documentation
      • Index
      • Getting Started
      • Applications
      • Model Objects
      • Subscriptions & Pricing
      • Examples
      FEA for Steel Connections

      Design and analyze steel connections using CBFEM, compliant with EN 1993‑1‑8 and AISC 360, fully integrated in RFEM 6 for faster, more accurate structural workflows.

      Learn More
      Steel Connections Steel Connections
      Geo-Zone Tool

      The Dlubal online service provides zone maps for quick determination of snow loads, wind speeds, and seismic data.

      CHECK LOAD ZONES
      Geo-zone tool visual displaying snow, wind, and seismic maps with illustrations for environmental load assessments. Illustration of snow, wind, and seismic geo-zone maps on a mobile version showing various regions and data.
      Outdated Products
    • Support
      • Frequently Asked Questions (FAQ)
      • Knowledge Base
      • Product Features
      • Licensing
      • Ask Individual Question
      • Our Support Team
      • Submit Program Feature or Idea
      • FAQ for Licensing & Authorization 
      • Report Problem or Program Issue
      • Program Updates
      • Program Issues
      • Formulas | Math is fun!
      Training
      • First Steps with RFEM
      • First Steps with RSTAB
      • Online Training
      • Training at Dlubal
      • Individual Training
      • Videos
      • E-Learning Videos
      • Webinars – Learn Online
      • Online Courses
      Service
      • Free Support / Service
      • Extranet | My Account
      • Project Support
      • Service Contract
      • Geo-Zone Tool for Load Determination
      • Updates & Upgrades
      • Previous Program Versions
      Sales
      • Webshop
      • Our Sales Team
      • Contact Our Sales Team
      • Schedule an online product demo
      • Why Dlubal Software
      AI Support Assistant
      • Mia – Your 24/7 AI Assistant
      • Discover Your Personal AI Assistant
      Free Support & Service

      Need help? Access free support options including 24/7 AI assistance, email support, and webinars.

      Learn More
      Free Support & Service Free Support & Service
      Find Answers Fast

      Find quick answers to common questions about Dlubal Software. Search or filter hundreds of FAQ to solve issues in no time.

      View FAQ
      Frequently Asked Questions (FAQ) FAQ | Mobile Version
    • News
      • Current News
      • New Product Features
      • Subscribe to Newsletter
      • New Programs
      • Dlubal Blog
      Training
      • Online Training
      • Individual Training
      Events
      • Event Overview
      • Trade Fairs and Conferences
      • Webinars
      Master Engineering with Webinars

      Join industry leaders and explore solutions in structural engineering and software. Enhance your skills with our live sessions!

      See Next Webinars
      3D FEA Software RFEM 6 | First Steps Menu Banner Image | News Webinars | Mobile Version
      Unlock the Power of Innovation

      Discover cutting-edge tools and enhancements designed to boost your engineering workflow.

      Explore New Features
      Explore New Features Menu Banner Image | News_ProductFeatures | Mobile Version
    • Download Full Version

      Would you like to try out the capabilities of the Dlubal Software programs? You have the opportunity to do so! With the free 90-day full version you can thoroughly test all our programs.

      Start Trial Version Now
      Dlubal Free Zone

      In the Dlubal free zone, you can access webinars, articles, and software trial versions—all free of charge and conveniently located in one place.

      More Information
      Examples
      • Structural Analysis Models to Download
      • Submit Structural Analysis Model
      • Introductory Examples and Tutorials
      • Verification Examples
      • Image Overview
      Documents
      • Online Manuals
      • Manuals
      • Leaflets, Brochures, and Certificates
      References
      • Customer Projects
      • Why Submit Your Customer Project?
      • How to Submit Customer Project?
      • Submit Customer Project
      Free Models to Download

      Explore thousands of ready-to-use structural models. Download, adapt, and use them as templates to accelerate your design process.

      Discover Models
      Structural Analysis Models to Download Free Models to Download | Mobile Version
      Dlubal Free Zone

      Get expert help whenever you need it. Enjoy free AI assistance, email support, live webinars, and premium services for Service Contract Pro users.

      Get Support
      Free Support & Service Free Support & Service | Mobile Version
    • E-Learning
      • RFEM 6 for Beginners
      • RFEM 6 for Students
      • Programming with RFEM 6 and Python
      • RFEM 6 with Rhino & Grasshopper
      • RFEM 5 for Beginners
      • Modeling with RFEM 5
      • Structural Analysis Learning Videos for Students
      • Quick Tutorials for Dlubal Programs
      • Best Tips and Tricks in RFEM
      • Dlubal Online Training Recordings
      • Recorded Dlubal Webinars
      Students and Schools
      • Free Structural Analysis Software for Students
      • Request or Renew Free Student License
      • Request for Free Instructor License
      • Submit Thesis
      • Why Submit Your Thesis?
      • Graduation Theses with Dlubal Structural Analysis Software
      • Free Structural Analysis Software for Educational Institutions
      • Request School Package
      • Free Introductory Training at Your University
      • Request Training Date
      Knowledge Platform
      • First Steps with RFEM
      • Videos
      • Online Manuals
      • Structural Analysis Wiki
      • Knowledge Base
      • Frequently Asked Questions (FAQ)
      Infotainment
      • Podcast
      • Dlubal Blog
      • Introduction to Structural Analysis and Design
      First Steps with RFEM 6

      Take your first steps with RFEM 6 and discover how quickly you can model and calculate. Customize with add-ons for even more possibilities.

      Get Started
      3D FEA Software RFEM 6 | First Steps Menu Banner Image | News Webinars | Mobile Version
      Free Structural Analysis Software for Students

      Thousands of students worldwide already benefit from Dlubal Software. Enjoy free access, training, and expert support throughout your studies.

      Get Free License
      Free Structural Analysis Software for Students Free Structural Analysis Software for Students
    • About Us
      • History and Facts
      • Company Philosophy
      • Why Dlubal Software?
      • Product Comparison
      • Quality Policy
      • Our Team
      Contact
      • Dlubal Locations Worldwide
      • Authorized Dlubal Resellers
      References
      • Customer Reviews
      • Customer Projects
      • Case Studies
      • Why submit your customer project?
      • Verification Examples
      • Your Review
      • Participation in Research Projects
      Our Customers

      We present our customers who realize their projects with Dlubal Software. Learn how our customers worldwide implement innovative solutions in construction and engineering using advanced tools for structural analysis and dynamic analysis.

      View Our Customers
      Building Success Together

      Discover how leading engineers around the world trust our solutions to elevate their projects with us.

      See Our Customers
      See Our Customers Menu Banner Image | Company_OurCustomers_Mobile
      Meet the Experts

      Our dedicated engineers are here to assist you with modeling, design, and technical challenges—anytime, anywhere.

      Connect with Support
      Our Team Menu Banner Image | Company_OurTeam | Mobile Version
    • Career
      • Jobs
      • Teams
      • Colleague Blog
      • Insights
      Jobs
      • All Open Positions
      • Product Development
      • Customer Support
      • Sales
      • Marketing
      • Software Development
      • Administration
      • Interns
      • Others
      Teams
      • Product Development
      • Customer Service
      • Sales
      • Marketing
      • Software Development
      • Administration
      Why Dlubal?
      • Company Culture
      • Employee Benefits
      Build Your Future with Us

      Reveal how our team shapes the future of engineering. Experience innovation, growth, and exciting challenges.

      Your Career Opportunities
      Career at Dlubal Menu Banner Image | Career at Dlubal Mobile
      Find Your Dream Job

      Join a global leader in engineering software and take your career to new heights.

      Explore Open Positions
      All Open Positions Menu Banner Image | Open Positions Mobile
    • Webshop
    Main Products
    Icon representing RFEM 6, a finite element analysis software application.
    RFEM 6
    RSTAB 9 Icon without borders
    RSTAB 9
    RWIND 3 Icon without borders
    RWIND 3
    RSECTION 1 Icon without borders
    RSECTION
    Online Services
    Geo-Zone Tool icon
    Geo-Zone Tool
    Cross-section Properties
    Cross-Section Properties
    API Icon
    API
    Cloud Calculation Icon
    Cloud Calculation
    Downloadable Models
    Downloadable Models
    Dlubal Community Icon
    Dlubal Community
    Knowledge Base Articles Icon
    Knowledge Base
    Online Webinars
    Webinars
    Sign in to your account

    Sign up for the Dlubal Extranet to get most of the software and have exclusive access to your personal data.

    Login Create Account
    90-Day Free Trial
    Sign in to your account

    Sign up for the Dlubal Extranet to get most of the software and have exclusive access to your personal data.

    Login Create Account
    • Products
    • Finite Element Analysis (FEA)
    • Add-ons for RFEM 6
    • Special Solutions
    • Multilayer Surfaces (such as Laminate, CLT) for RFEM 6
    RFEM 6 Icon | Dlubal Software Multilayer Surfaces (such as Laminate, CLT)
    Online Manuals
    • Manual | Multilayer Surfaces
    • Tutorial for RFEM 6
    • RFEM 6/RSTAB 9 | First Steps
    }
    calculator icon
    Pricing
    Multilayer Surfaces (such as Laminate, CLT) for RFEM 6

    Multilayer Surfaces (such as Laminate, CLT) for RFEM 6

    The Multi-Layer Surfaces add-on allows you to define multilayer surface structures.

    You create a local overall stiffness matrix from a user-defined layer structure. This add-on is suitable, for example, for the definition of cross-laminated timber elements, textile-reinforced concrete, insulating glass panes, fiber-reinforced plastic, and so on. The design is carried out in the add-ons, such as Timber Design.

    Banner | Multilayer Surfaces (such as Laminate, CLT) for RFEM 6

    Definition of Multilayer Surfaces, such as Laminate Surfaces or Cross-Laminated Timber (CLT)

    Total items: 3
    Stresses in Cross-Laminated Timber Surface
    • General
    • Timber Design for RFEM 6
    • Timber Structures
      • Eurocode 5

    Multilayer Surfaces | Features

    • Flexible definition of different layer compositions
    • High efficiency due to the minimum amount of input data
    • Flexibility due to detailed setting options for basis and extent of calculations
    • Generation of a local overall stiffness matrix of the surface in RFEM, based on the selected material model and the layers contained
    • Graphical display of the orientation of individual layers
    • Definition of timber panel elements using the "Beam Panel" thickness type
    Layer Structure of Laminated Glass Panel
    Thickness Type - Layers
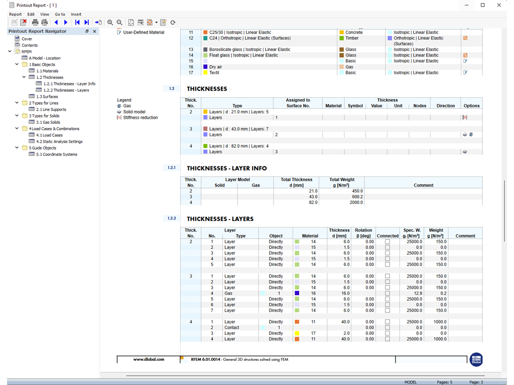
    Graphic of Layer Structure in Printout Report
    Stresses in Cross-Laminated Timber Surface
    • General
    • Laminate and Sandwich Structures
    • Eurocode 5

    Multilayer Surfaces | Procedure

    Please note that all data specified in the Multilayer Surfaces add-on regarding materials, load combinations, and result combinations must comply with the design concept of the standard. The material library already contains the relevant materials. RFEM allows you to automatically generate the load and result combinations in accordance with the standard. If you want, you can also create these combinations manually.

    You can vary the structure of layers forming the basis for the stiffness calculation. Furthermore, you can adjust the parameters defined by the selected material model according to your individual needs. This way, completely free selection is provided to you when generating the stiffnesses.

    The selected material also determines the limit stresses of each layer. You can also adjust these values according to your needs. In this case, the composition of layers is assigned to any surface as a thickness type.

    Deformations of Cross-Laminated Timber Surfaces
    Stresses in Cross-Laminated Timber Surface
    Layer Definition in Printout Report
    Graphic of Layer Structure in Printout Report
    • General
    • Laminate and Sandwich Structures

    Multilayer Surfaces | Results

    The stiffnesses contain all design check formulas, including standard references, so you can precisely follow the design checks.

    In this case, all input and result data are part of the RFEM printout report. You can select the report contents and extent specifically for the individual design checks. In the end, you have thus exactly what you wanted.

    • Invitation to an online product demonstration highlighting advanced software functionality
      Schedule Online Product Demo

      Experience Dlubal live: schedule your online product demo today!

    • Promotional banner inviting sign-up for a free 90-day trial of Dlubal software products.
      Free Full Version for 90 Days

      The most effective way to get to know Dlubal software is to try it out for yourself.

    • Contact our sales team for expert support on advanced software solutions.
      Contact Sales Team

      We are here for you!

    Webshop

    Customize your individual program package and find out all the prices online!

    • RFEM 6 Family
    • RSTAB 9 Family
    Go to the webshop

    Calculate Your Price

    1,850.00 USD
    +110.00 USD
    Cross-Laminated Timber (CLT) Building
    Total Amount 1,960.00 USD

    Getting Started with RFEM 6

    You have not yet worked with RSECTION, or not often? Then you will find helpful hints and tips here to help you get started with the Dlubal programs.

    More Info
    First steps in the RFEM 6 user interface with clearly recognizable menus and toolbars Screenshot showing the initial RFEM 6 user interface with setup options.

    Structural Analysis Models to Download

    Browse a wide range of structural analysis models for RFEM, RSTAB, RSECTION, and RWIND. Perfect for tutorials or project inspiration.

    Download Models
    Downloadable technical model templates for precise engineering analysis. Mobile view displaying downloadable structural analysis models with visible thumbnails and labels.
    Structural Analysis and Design Software
    Dlubal Software, Inc.

    30 South 15th Street, 15th Floor
    PA 19103 Philadelphia
    United States

    +1 (267) 702-2815 [email protected]
    Dlubal Software GmbH

    Am Zellweg 2
    93464 Tiefenbach
    Germany

    +49 9673 9203-0 [email protected]
    Solutions
    • Reinforced Concrete Structures
    • Steel Structures
    • Wood & Mass Timber Structures
    • Steel Joints
    Products
    • RFEM 6
    • RSTAB 9
    • RSECTION 1
    • RWIND 3
    Support
    • Frequently Asked Questions (FAQ)
    • Ask Individual Question
    • Snow Load, Wind Speed, and Seismic Load Maps
    • Contact Our Sales Team
    News
    • Subscribe to Newsletter
    • Current News
    • Event Overview
    • Online Training
    Resources
    • Free Full Trial Version
    • Submit Customer Project
    • Customer Projects
    • Online Manuals
    Join Dlubal
    Dlubal Community YouTube Facebook LinkedIn Twitter Instagram Pinterest TikTok
    © 2001-2026 Dlubal Software GmbH | All Rights Reserved
    Legal Notice
    About Us
    Sitemap
    Language
    • Deutsch
    • English
    • Français
    • Español
    • Português
    • Italiano
    • Česky
    • Polski
    • Pусский
    • 中文(简体)