Усиленные панели с потерей устойчивости согласно EN 1993-1-5, раздел 4.5

Техническая статья

В SHAPE-THIN можно выполнить расчет усиленных панелей с потерей устойчивости в соответствии с разделом 4.5 нормы EN 1993-1-5. Для усиленных панелей с потерей устойчивости должны учитываться эффективные поверхности от местной потери устойчивости отдельных панелей в плите и в элементах жесткости, а также эффективные поверхности от всей потери устойчивости панели.

Прежде всего, эффективные поверхности отдельных панелей задаются с помощью понижающего коэффициента по EN 1993-1-5 [1], раздел 4.4 для учета потери устойчивости отдельных панелей. На втором шаге определяется надежность при потере устойчивости всей панели, с учетом работы при потери устойчивости, аналогичной как у стержней. С понижающим коэффициентом общей потери устойчивости панели, расчетная ширина отдельных панелей снова уменьшается. В результате получается эффективное сечение, с которым можно работать, как с сечением класса 3.

Пример

Следующий пример взят из Ежегодника строительных конструкций за 2015 год [2]. Сечение состоит из двутавровой балки, стенка которой усилена жесткими поперечными элементами жесткости и продольным элементом жесткости. Поперечные элементы жесткости расположены на расстоянии 3 000 мм друг от друга, а продольный элемент жесткости приварен на расстоянии 500 мм от нижней полки. Сварными швами пренебрегаем. Действует осевая сила сжатия NEd = 4 000 кН.

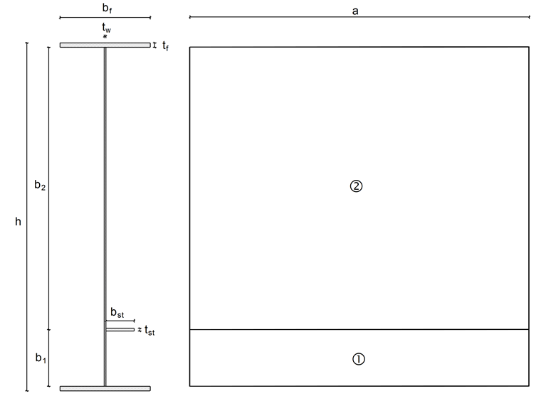
Pисунок 01 - Сечение

Материал:
S355 J0
fy = 35,5 кН/см² (for t ≤ 3 мм и t ≤ 16 мм)
fy = 34,5 кН/см² (для t >16 мм и t ≤ 40 мм)
E = 21 000 кН/см²
G = 8 076,92 кН/см²
γM0 = 1,0

a = 3 000 мм
b1 = 500 мм
b2 = 2 500 мм
bf = 800 мм
bst = 250 мм
tw = 15 мм
tf = 40 мм
tst = 25 мм
h = 3 080 мм

Сечение брутто и распределение напряжений

Напряжение рассчитывается следующим образом:

${\mathrm\sigma}_1\;=\;{\mathrm\sigma}_\mathrm{sl}\;=\;{\mathrm\sigma}_2\;=\;\frac{{\mathrm N}_\mathrm{Ed}}{\mathrm A}\;=\;\frac{4,000}{1 152,5}\;=\;3,47\;\mathrm{кН}/\mathrm{см}²$

Сечение брутто и распределение напряжений показаны на Рисунке 02.

Pисунок 02 - Распределение напряжений

Классификация счений

В ходе классификации сечения оценивается, необходим ли для отдельных панелей расчет на потерю устойчивости. Если отдельная панель имеет сечение хотя бы класса 3, то местная деформация не будет определяющей.

Полка

$\begin{array}{l}{\mathrm c}_\mathrm f\;=\;\frac{{\mathrm b}_\mathrm f\;-\;{\mathrm t}_\mathrm w}2\;=\;\frac{800\;-\;15}2\;=\;392,5\;\mathrm{мм}\\\frac{\displaystyle{\mathrm c}_\mathrm f}{\displaystyle{\mathrm t}_\mathrm f}\;=\;\frac{\displaystyle392.5}{\displaystyle40}\;=\;9,8\end{array}$

Максимальное отношение c/t λi определяется в соответствии с EN 1993-1-1 [3], таблица 5.2.

$\begin{array}{l}\mathrm\varepsilon\;=\;\sqrt{235\;/\;{\mathrm f}_\mathrm y}\;=\;\sqrt{235\;/\;345}\;=\;0,825\\{\mathrm\lambda}_1\;=\;9\;\cdot\;\mathrm\varepsilon\;=\;9\;\cdot\;0,825\;=\;7,4\;<\;\frac{{\mathrm c}_\mathrm f}{{\mathrm t}_\mathrm f}\;=\;9,8\\{\mathrm\lambda}_2\;=\;10\;\cdot\;\mathrm\varepsilon\;=\;10\;\cdot\;0,825\;=\;8,2\;<\;\frac{{\mathrm c}_\mathrm f}{{\mathrm t}_\mathrm f}\;=\;9,8\\{\mathrm\lambda}_3\;=\;14\;\cdot\;\mathrm\varepsilon\;=\;14\;\cdot\;0,825\;=\;11,6\;>\;\frac{{\mathrm c}_\mathrm f}{{\mathrm t}_\mathrm f}\;=\;9,8\end{array}$

Полка должна быть придана к сечению класса 3. Таким образом, местная потеря устойчивости не будет определяющей, поэтому не требуется уменьшения отдельных панелей полки.

Стенка

$\begin{array}{l}{\mathrm c}_1\;=\;{\mathrm b}_1\;-\;\frac{{\mathrm t}_\mathrm{st}}2\;=\;500\;-\;\frac{25}2\;=\;487,5\;\mathrm{мм}\\\frac{\displaystyle{\mathrm c}_1}{\displaystyle{\mathrm t}_\mathrm w}\;=\;\frac{\displaystyle487.5}{\displaystyle15}\;=\;32,5\end{array}$

Максимальное соотношение c/t λi определяется согласно [3], табл. 5.2.

$\begin{array}{l}\mathrm\varepsilon\;=\;\sqrt{235\;/\;{\mathrm f}_\mathrm y}\;=\;\sqrt{235\;/\;355}\;=\;0,814\\{\mathrm\lambda}_1\;=\;33\;\cdot\;\mathrm\varepsilon\;=\;33\;\cdot\;0,814\;=\;26,8\;<\;\frac{{\mathrm c}_1}{{\mathrm t}_\mathrm w}\;=\;32,5\\{\mathrm\lambda}_2\;=\;38\;\cdot\;\mathrm\varepsilon\;=\;38\;\cdot\;0,814\;=\;30,9\;<\;\frac{{\mathrm c}_1}{{\mathrm t}_\mathrm w}\;=\;32,5\\{\mathrm\lambda}_3\;=\;42\;\cdot\;\mathrm\varepsilon\;=\;42\;\cdot\;0,814\;=\;34,2\;>\;\frac{{\mathrm c}_1}{{\mathrm t}_\mathrm w}\;=\;32,5\end{array}$

Отдельная панель 1 должна быть придана к сечению класса 3. Таким образом, местная потеря устойчивости не будет определяющей, поэтому не требуется уменьшения этой отдельной панели.

$\begin{array}{l}{\mathrm c}_2\;=\;{\mathrm b}_2\;-\;\frac{{\mathrm t}_\mathrm{st}}2\;=\;2 500\;-\;\frac{25}2\;=\;2 487,5\;\mathrm{mm}\\\frac{\displaystyle{\mathrm c}_2}{\displaystyle{\mathrm t}_\mathrm w}\;=\;\frac{\displaystyle2 487,5}{\displaystyle15}\;=\;165,8\end{array}$

Максимальное соотношение c/t λi определяется согласно [3], табл. 5.2.

$\begin{array}{l}\mathrm\varepsilon\;=\;\sqrt{235\;/\;{\mathrm f}_\mathrm y}\;=\;\sqrt{235\;/\;355}\;=\;0,814\\{\mathrm\lambda}_1\;=\;33\;\cdot\;\mathrm\varepsilon\;=\;33\;\cdot\;0,814\;=\;26,8\;<\;\frac{{\mathrm c}_2}{{\mathrm t}_\mathrm w}\;=\;165,8\\{\mathrm\lambda}_2\;=\;38\;\cdot\;\mathrm\varepsilon\;=\;38\;\cdot\;0,814\;=\;30,9\;<\;\frac{{\mathrm c}_2}{{\mathrm t}_\mathrm w}\;=\;165,8\\{\mathrm\lambda}_3\;=\;42\;\cdot\;\mathrm\varepsilon\;=\;42\;\cdot\;0,814\;=\;34,2\;<\;\frac{{\mathrm c}_2}{{\mathrm t}_\mathrm w}\;=\;165,8\end{array}$

Отдельная панель 2 должна быть придана к сечению класса 4. Таким образом, местная потеря устойчивости является определяющей для данной отдельной панели и необходимо ее уменьшение.

Элемент жесткости

$\begin{array}{l}{\mathrm b}_\mathrm{st}\;=\;250\;\mathrm{мм}\\\frac{\displaystyle{\mathrm b}_\mathrm{st}}{\displaystyle{\mathrm t}_\mathrm{st}}\;=\;\frac{\displaystyle250}{\displaystyle25}\;=\;10\end{array}$

Максимальное соотношение c/t λi определяется согласно [3], табл. 5.2.

$\begin{array}{l}\mathrm\varepsilon\;=\;\sqrt{235\;/\;{\mathrm f}_\mathrm y}\;=\;\sqrt{235\;/\;345}\;=\;0,825\\{\mathrm\lambda}_1\;=\;9\;\cdot\;\mathrm\varepsilon\;=\;9\;\cdot\;0,825\;=\;7,4\;<\;\frac{\displaystyle{\mathrm b}_\mathrm{st}}{\displaystyle{\mathrm t}_\mathrm{st}}\;=\;10\\{\mathrm\lambda}_2\;=\;10\;\cdot\;\mathrm\varepsilon\;=\;10\;\cdot\;0,825\;=\;8,2\;<\;\frac{\displaystyle{\mathrm b}_\mathrm{st}}{\displaystyle{\mathrm t}_\mathrm{st}}\;=\;10\\{\mathrm\lambda}_3\;=\;14\cdot\;\mathrm\varepsilon\;=\;14\;\cdot0,825\;=\;11,6\;>\;\frac{\displaystyle{\mathrm b}_\mathrm{st}}{\displaystyle{\mathrm t}_\mathrm{st}}\;=\;10\end{array}$

Стенка должна быть придана к сечению класса 3. Таким образом, местная потеря устойчивости не будет определяющей, поэтому не требуется уменьшения этой отдельной панели.

Расчетная ширина

Отдельная панель 1 придана к сечению класса 3, поэтому местная потеря устойчивости не является определяющей. Эффективные значения сечения соответствуют значениям сечения брутто. Согласно [1], табл. 4.1, получаются следующие расчетные ширины:

$\begin{array}{l}{\mathrm b}_{1,\mathrm{eff}}\;=\;{\mathrm c}_1\;=\;487,5\;\mathrm{мм}\\{\mathrm b}_{1,\mathrm{edge},\mathrm{eff}}\;=\;{\mathrm b}_{1,\mathrm{edge}}\;=\;0,5\;\cdot\;{\mathrm c}_1\;=\;0,5\;\cdot\;487,5\;=\;243,8\;\mathrm{мм}\\{\mathrm b}_{1,\inf,\mathrm{eff}}\;=\;{\mathrm b}_{1,\inf}\;=\;0,5\;\cdot\;{\mathrm c}_1\;=\;0,5\;\cdot\;487,5\;=\;243,8\;\mathrm{мм}\end{array}$

Отдельная панель 2 придана к сечению класса 4, поэтому местная потеря устойчивости является определяющей. Расчетные ширины отдельной панели 2 должны определяться по [1], раздел 4.4.

Распределение напряжений в отдельной панели 2 - равномерное. Получаются отношения напряжений ψ = 1 и согласно таблице 4.1 величина потери устойчивости kσ= 4,0. Для гибкости ${\overline{\mathrm\lambda}}_{\mathrm p2}$, получается в соответствии с  [1], раздел 4.4(2):

${\overline{\mathrm\lambda}}_{\mathrm p2}\;=\;\frac{\displaystyle\frac{{\mathrm c}_2}{{\mathrm t}_\mathrm w}}{28,4\;\cdot\;\mathrm\varepsilon\;\cdot\;\sqrt{{\mathrm k}_\mathrm\sigma}}\;=\;\frac{165,8}{28,4\;\cdot\;0,814\;\cdot\;\sqrt4}\;=\;3,588$$>\;0,5\;+\;\sqrt{0,085\;-\;0,055\;\cdot\;\mathrm\psi}$
$>\;0,5\;+\;\sqrt{0,085\;-\;0,055\;\cdot\;1}\;=\;0,673$

Местный понижающий коэффициент ρ определяется согласно [1], формула (4.2):

${\mathrm\rho}_2\;=\;\frac{{\overline{\mathrm\lambda}}_{\mathrm p2}\;-\;0,055\;\cdot\;\left(3\;+\;\mathrm\psi\right)}{\overline{\mathrm\lambda}_{\mathrm p2}^2}\;=\;\frac{3,588\;-\;0,055\;\cdot\;\left(3\;+\;1\right)}{3,588^2}\;=\;0,262\;<\;1$

Расчетные ширины отдельной панели 2, с учетом местной потери устойчивости, вычисляются по [1], табл. 4.1:

$\begin{array}{l}{\mathrm b}_{2,\mathrm{eff}}\;=\;{\mathrm\rho}_2\;\cdot\;{\mathrm c}_2\;=\;0,262\;\cdot\;2 487,5\;=\;650,7\;\mathrm{мм}\\{\mathrm b}_{2,\mathrm{edge},\mathrm{eff}}\;=\;0,5\;\cdot\;{\mathrm b}_{2,\mathrm{eff}}\;=\;0,5\;\cdot\;650,7\;=\;325,4\;\mathrm{мм}\\{\mathrm b}_{2,\sup,\mathrm{eff}}\;=\;0,5\;\cdot\;{\mathrm b}_{2,\mathrm{eff}}\;=\;0,5\;\cdot\;650,7\;=\;325,4\;\mathrm{мм}\end{array}$

Ширины сечения брутто получаются:

$\begin{array}{l}{\mathrm b}_{2,\mathrm{edge}}\;=\;0,5\;\cdot\;{\mathrm c}_2\;=\;0,5\;\cdot\;2 487,5\;=\;1 243,8\;\mathrm{мм}\\{\mathrm b}_{2,\sup}\;=\;0,5\;\cdot\;{\mathrm c}_2\;=\;0,5\;\cdot\;2 487,5\;=\;1 243,8\;\mathrm{мм}\end{array}$

Работа плит

Упругое критическое напряжение потери устойчивости элемента жесткости σcr,sl рассчитывается согласно [1], Приложение A.2.2. Сначала должна быть вычислена расчетная длина элемента жесткости ac :

${\mathrm a}_\mathrm c\;=\;4,33\;\cdot\;\sqrt[4]{\frac{{\mathrm I}_{\mathrm{sl},1}\;\cdot\;\mathrm b_1^2\;\cdot\;\mathrm b_2^2}{\mathrm t^3\;\cdot\;\mathrm b}}\;=\;4,33\;\cdot\;\sqrt[4]{\frac{11 900\;\cdot\;50^2\;\cdot\;250^2}{1,5^3\;\cdot\;\left(50\;+\;250\right)}}\;=\;896,4\;\mathrm{см}\;>\;\mathrm a\;=\;300\;\mathrm{см}$

Упругое критическое напряжение потери устойчивости элемента жесткости σcr,sl получается с a < ac в:

$\begin{array}{l}{\mathrm\sigma}_{\mathrm{cr},\mathrm{sl}}\;=\;\frac{\mathrm\pi^2\;\cdot\;\mathrm E\;\cdot\;{\mathrm I}_{\mathrm{sl},1}}{{\mathrm A}_{\mathrm{sl},1}\;\cdot\;\mathrm a^2}\;+\;\frac{\mathrm E\;\cdot\;\mathrm t^3\;\cdot\;\mathrm b\;\cdot\;\mathrm a^2}{4\;\cdot\;\mathrm\pi^2\;\cdot\;\left(1\;-\;\mathrm\nu^2\right)\;\cdot\;{\mathrm A}_{\mathrm{sl},1}\;\cdot\;\mathrm b_1^2\;\cdot\;\mathrm b_2^2}\;\mathrm{for}\;\mathrm a\;<\;{\mathrm a}_\mathrm c\\{\mathrm\sigma}_{\mathrm{cr},\mathrm{sl}}\;=\;\frac{\mathrm\pi^2\;\cdot\;21 000\;\cdot\;11,900}{289,4\;\cdot\;300^2}+\frac{21 000\;\cdot\;1,5^3\;\cdot\;\left(50\;+\;250\right)\;\cdot\;300^2}{4\;\cdot\;\mathrm\pi^2\;\cdot\;\left(1\;-\;0,3^2\right)\;\cdot\;289,4\;\cdot\;50^2\;\cdot\;250^2}\;=\;95,9\;\mathrm{кН}/\mathrm{cm}^2\end{array}$

Isl,1 и Asl,1 здесь представляют момент инерции площади сечения брутто и площадь сечения брутто эквивалентного сжатого элемента согласно [1], A.2.1(2) для потери устойчивости перпендикулярно плоскости плиты, а b1 и b2 описывают расстояния от элементов жесткости до продольных краев (b1 + b2 = b).

Распределение напряжений - равномерное. Следовательно, упругое напряжение потери устойчивости плиты σcr,p соответствует критическому напряжению потери устойчивости σcr,sl.

${\mathrm\sigma}_{\mathrm{cr},\mathrm p}\;=\;{\mathrm\sigma}_{\mathrm{cr},\mathrm{sl}}\;=\;95.9\;\mathrm{кН}/\mathrm{см}^2$

Pисунок 03 - Эквивалентный сжатый стержень сечения брутто

Площадь сечения брутто Ac панели плиты с продольными элементами жесткости без учета крайних плит, опертых на смежные компоненты плиты, и полезная площадь сечения Ac,eff,loc,p описанной выше области рассчитывается следующим образом:

${\mathrm A}_\mathrm c\;=\;\left({\mathrm b}_{1,\inf}\;+\;{\mathrm b}_{2,\sup}\;+\;{\mathrm t}_\mathrm{st}\right)\;\cdot\;{\mathrm t}_\mathrm w\;+\;{\mathrm b}_\mathrm{st}\;\cdot\;{\mathrm t}_\mathrm{st}\;=\;\left(24,38\;+\;124,38\;+\;2,5\right)\;\cdot\;1,5\;+\;25\;\cdot\;2,5\;=\;289,4\;\mathrm{см}^2$

Жесткость относится к сечению класса 3, поэтому полезная площадь сечения жесткости соответствует площади сечения брутто жесткости.

${\mathrm A}_{\mathrm c,\mathrm{eff},\mathrm{loc},\mathrm p}\;=\;\left({\mathrm b}_{1,\inf,\mathrm{eff}}\;+\;{\mathrm b}_{2,\sup,\mathrm{eff}}\;+\;{\mathrm t}_\mathrm{st}\right)\;\cdot\;{\mathrm t}_\mathrm w\;+\;{\mathrm b}_{\mathrm{st},\mathrm{eff}}\;\cdot\;{\mathrm t}_\mathrm{st}\;=\;\left(24,38\;+\;32,54\;+\;2,5\right)\;\cdot\;1,5\;+\;25\;\cdot\;2,5\;=\;151,6\;\mathrm{см}^2$

Характеристики сечения показаны на Рисунке 04.

Pисунок 04 - Сечение брутто и эффективное сечение при местной потере устойчивости

Понижающий коэффициент βa,c,p рассчитан согласно [1], раздел 4.5.2 следующим образом:

$\begin{array}{l}{\mathrm\beta}_{\mathrm a,\mathrm c,\mathrm p}\;=\;\frac{{\mathrm A}_{\mathrm c,\mathrm{eff},\mathrm{loc},\mathrm p}}{{\mathrm A}_\mathrm c}\\{\mathrm\beta}_{\mathrm a,\mathrm c,\mathrm p}\;=\;\frac{151,6}{289,4}\;=\;0,524\end{array}$

Общая гибкость ${\overline{\mathrm\lambda}}_\mathrm p$ усиленной плиты, в соответсвии с [1], формула (4.7), получается:

${\overline{\mathrm\lambda}}_\mathrm p\;=\;\sqrt{\frac{{\mathrm\beta}_{\mathrm a,\mathrm c,\mathrm p}\;\cdot\;{\mathrm f}_\mathrm y}{{\mathrm\sigma}_{\mathrm{cr},\mathrm p}}}=\sqrt{\frac{0,524\;\cdot\;35,5}{95,9}}\;=\;0,440$$<\;0,5\;+\;\sqrt{0,085\;-\;0,055\;\cdot\;\mathrm\psi}$
 $<\;0,5\;+\;\sqrt{0,085\;-\;0,055\;\cdot\;1}\;=\;0,673$

Гибкость ${\overline{\mathrm\lambda}}_\mathrm p$ меньше предельной величины 0,673 по [1], 4.4(2). Поэтому не требуется редукция из-за работы плиты, т.е. ρp = 1,0.

Работа плиты при потере устойчивости

Упругое критическое напряжение потери устойчивости σcr,c определяется согласно [1], раздел 4.5.3(3). Прежде всего, напряжение потери устойчивости σcr,c,sl элемента жесткости, который расположен на сжатом крае с максимальной нагрузкой, определяется согласно [1], формула (4.9).

${\mathrm\sigma}_{\mathrm{cr},\mathrm c,\mathrm{sl}}\;=\;\frac{\mathrm\pi^2\;\cdot\;\mathrm E\;\cdot\;{\mathrm I}_\mathrm{sl}}{{\mathrm A}_\mathrm{sl}\;\cdot\;\mathrm a^2}\;=\;\frac{\mathrm\pi^2\;\cdot\;21 000\;\cdot\;11 900}{289,4\;\cdot\;300^2}\;=\;94,7\;\mathrm{кН}/\mathrm{см}^2$

Распределение напряжений - равномерное. Поэтому упругое критическое напряжение потери устойчивости σ cr,c соответствует упругому напряжению потери устойчивости σ cr,c,sl элемента жесткости, который расположен на сжатом крае с максимальной нагрузкой.

σcr,c = σcr,c,sl = 94,7 кН/см²

Понижающий коэффициент βa,c,p рассчитан согласно [1], раздел 4.5.3(4) следующим образом:

${\mathrm\beta}_{\mathrm a,\mathrm c,\mathrm c}\;=\;\frac{{\mathrm A}_{\mathrm{sl},\mathrm{eff}}}{{\mathrm A}_\mathrm{sl}}\;=\;\frac{151,6}{289,4}\;=\;0,524$

Гибкость ${\overline{\mathrm\lambda}}_\mathrm c$ сжатого стержня, согласно [1], формула (4.11), получается:

${\overline{\mathrm\lambda}}_\mathrm c\;=\;\sqrt{\frac{{\mathrm\beta}_{\mathrm a,\mathrm c,\mathrm c}\;\cdot\;{\mathrm f}_\mathrm y}{{\mathrm\sigma}_{\mathrm{cr},\mathrm c}}}\;=\;\sqrt{\frac{0,524\;\cdot\;35,5}{94,7}}\;=\;0,443$

Согласно [1], раздел 4.5.3(5), радиус вращения i рассчитывается следующим образом:

$\mathrm i\;=\;\sqrt{\frac{{\mathrm I}_\mathrm{sl}}{{\mathrm A}_\mathrm{sl}}}\;=\;\sqrt{\frac{11 900}{289,4}}\;=\;6,41\;\mathrm{см}$

Расстояние e является большим из двух расстояний согласно [1], рисунок A.1, то есть: либо расстояние e1 отдельного элемента жесткости, установленное между центром тяжести и учитываемое независимо от плиты, без расчетной ширины, до центральной оси усиленной плиты или расстояние e2 от центральной оси усиленной плиты до середины плоскости плиты. Расстояния показаны на Рисунке 05.

Pисунок 05 - Эквивалентный сжатый стержень и элемент жесткости: расстояния e1, e2

e = max (e1, e2) = max (10,39 см, 2,86 см) = 10,39 см

Коэффициент несовершенства αe определяется согласно [1], формула (4.12) с α = 0,49, для открытых усиленных сечений следующим образом:

${\mathrm\alpha}_\mathrm e\;=\;\mathrm\alpha\;+\;\frac{0,09}{\mathrm i\;/\;\mathrm e}\;=\;0,49\;+\;\frac{0,09}{6,41\;/\;10,39}\;=\;0,636$

Понижающий коэффициент χc определяется согласно [3], 6.3.1.2:

$\begin{array}{l}\mathrm\phi\;=\;0,5\;\cdot\;\left(1.0\;+\;{\mathrm\alpha}_\mathrm e\;\cdot\;\left({\overline{\mathrm\lambda}}_\mathrm c\;-\;0.2\right)\;+\;\overline{\mathrm\lambda}_\mathrm c^2\right)\;=\;0,5\;\cdot\;\left(1,0\;+\;0,636\;\cdot\;\left(0,443\;-\;0.2\right)\;+\;0,443^2\right)\;=\;0,675\\{\mathrm\chi}_\mathrm c\;=\;\frac1{\mathrm\phi\;+\;\sqrt{\mathrm\phi^2\;-\;\overline{\mathrm\lambda}_\mathrm c^2}}\;=\;\frac1{0,675\;+\;\sqrt{0,675^2\;-\;0,443^2}}\;=\;0,844\;<\;1\end{array}$

Взаимодействие потери устойчивости и работы плиты

Работа конструкции всей панели определяется с коэффициентом ξ, согласно [1], раздел 4.5.4(1):

$\begin{array}{l}\mathrm\xi\;=\;\frac{{\mathrm\sigma}_{\mathrm{cr},\mathrm p}}{{\mathrm\sigma}_{\mathrm{cr},\mathrm c}}\;-\;1\;\mathrm{but}\;0\;\leq\;\mathrm\xi\;\leq\;1\\\mathrm\xi\;=\;\frac{95,9}{94,7}\;-\;1\;=\;0,013\end{array}$

Окончательный понижающий коэффициент ρc определяется по уравнению взаимодействия согласно[1], формула (4.13):

${\mathrm\rho}_\mathrm c\;=\;({\mathrm\rho}_\mathrm p\;-\;{\mathrm\chi}_\mathrm c)\;\cdot\;\mathrm\xi\;\cdot\;(2\;-\;\mathrm\xi)\;+\;{\mathrm\chi}_\mathrm c\;=\;\left(1\;-\;0,844\right)\;\cdot\;0,013\;\cdot\;\left(2\;-\;0,013\right)\;+\;0,844\;=\;0,848$

Эффективные значения сечения

Эффективная поверхность зоны сжатия Ac,eff панели усиленной плиты рассчитывается согласно [1], формула (4.5):

${\mathrm A}_{\mathrm c,\mathrm{eff}}\;=\;{\mathrm\rho}_\mathrm c\;\cdot\;{\mathrm A}_{\mathrm c,\mathrm{eff},\mathrm{loc},\mathrm p}\;+\;{\textstyle\sum}{\mathrm b}_{\mathrm{edge},\mathrm{eff}}\;\cdot\;\mathrm t\;=\;0,848\;\cdot\;151,6\;+\;24,38\;\cdot\;1,5\;+\;32,54\;\cdot\;1,5\;=\;214,1\;\mathrm{см}²$

Полезная плоюадь сечения Aeff получается:

${\mathrm A}_\mathrm{eff}\;=\;{\mathrm A}_{\mathrm c,\mathrm{eff}}\;+\;2\;\cdot\;{\mathrm b}_\mathrm f\;\cdot\;{\mathrm t}_\mathrm f\;=\;214,1\;+\;2\;\cdot\;80\;\cdot\;4\;=\;854,1\;\mathrm{см}²$

Pисунок 06 - Эффективное сечение при местной и общей потере устойчивости

Расчет усиленной панели

Центральные оси сечения брутто и эффективного сечения не совпадают, поэтому необходимо учитывать дополнительно действующие изгибающие моменты от перемещения центральных осей эффективного сечения, связанные с центральными осями сечения брутто. Дополнительные изгибающие моменты рассчитываются следующим образом:

$\begin{array}{l}{\mathrm e}_\mathrm y\;=\;0,82\;-\;0,72\;=\;0,10\;\mathrm{см}\\{\mathrm e}_\mathrm z\;=\;164,97\;-\;157,42\;=\;7,55\;\mathrm{cm}\\{\mathrm M}_\mathrm y\;=\;\mathrm N\;\cdot\;{\mathrm e}_\mathrm z\;=\;\:4 000\;\cdot\;7,55\;=\;30 202,4\;\mathrm{kNcm}\\{\mathrm M}_\mathrm z\;=\;\mathrm N\;\cdot\;{\mathrm e}_\mathrm y\;=\;-4 000\;\cdot\;0.10\;=\;-414,3\;\mathrm{kNcm}\\{\mathrm M}_\mathrm u\;=\;30 203,7\;\mathrm{КНсм}\\{\mathrm M}_\mathrm v\;=\;-306,4\;\mathrm{кНсм}\end{array}$

Максимальное напряжение получается:

${\mathrm\sigma}_\mathrm{eff}\;=\;\frac{\mathrm N}{{\mathrm A}_\mathrm{eff}}\;+\;\frac{{\mathrm M}_\mathrm u\;\cdot\;{\mathrm e}_\mathrm v}{{\mathrm I}_{\mathrm u,\mathrm{eff}}}\;-\;\frac{{\mathrm M}_\mathrm v\;\cdot\;{\mathrm e}_\mathrm u}{{\mathrm I}_{\mathrm v,\mathrm{eff}}}\;=\;\frac{4 000}{854,1}\;+\;\frac{30 203,7\;\cdot\;165,12}{17 466 764}\;-\;\frac{-306,4\;\cdot\;40,23}{352 626}\;=\;5,01\;\mathrm{кН}/\mathrm{см}²$

Расчет выполняется согласно [1], формула (4.15) следующим образом:

${\mathrm\eta}_1\;=\;\frac{{\mathrm\sigma}_\mathrm{eff}}{\displaystyle\frac{{\mathrm f}_\mathrm y}{{\mathrm\gamma}_{\mathrm M0}}}\;=\;\frac{5,01}{\displaystyle\frac{3,4.5}{1,0}}\;=\;0,15$

Расчет на потерю устойчивости при кручении

Согласно [1], раздел 9.2.1(8) в общем случае должен выполняться следующий критерий, чтобы избежать потерю устойчивости при кручении элементов ьесткости с открытыми сечениями:

$\begin{array}{l}{\mathrm\eta}_1\;=\;\frac{5.3\;\cdot\;{\mathrm f}_\mathrm y\;\cdot\;{\mathrm I}_\mathrm p}{\mathrm E\;\cdot\;{\mathrm I}_{\mathrm{St}.\;\mathrm{Ven}}}\;\leq\;1\\{\mathrm\eta}_1\;=\;\frac{5,3\;\cdot\;34,5\;\cdot\;13 053}{21 000\;\cdot\;122}\;=\;0,93\;\leq\;1\end{array}$

Ip и ISt.Ven описывают полярный момент инерции и момент инерции Сен-Венана одного сечения элемента жесткости (без плиты), рассчитаного относительно точки соединения к плите.

Если учитывать жесткость депланации, сначала необходимо определить критическое напряжения потери устойчивости при кручении σcr . оно рассчитывается согласно [4], формула (2.119) и формула (2.120) следующим образом:

$\begin{array}{l}{\mathrm\sigma}_{\mathrm{cr}1}\;=\;\frac1{{\mathrm I}_\mathrm p}\;\cdot\;\left(\frac{\mathrm\pi^2\;\cdot\;\mathrm E\;\cdot\;{\mathrm I}_\mathrm\omega}{\mathrm l^2}\;+\;\mathrm G\;\cdot\;{\mathrm I}_{\mathrm{St}.\;\;\mathrm{Ven}}\right)\;\mathrm{for}\;\mathrm l\;<\;\mathrm L\;_\mathrm{cr}\\{\mathrm\sigma}_{\mathrm{cr}2}\;=\;\frac1{{\mathrm I}_\mathrm p}\;\cdot\;\left(2\;\cdot\;\sqrt{{\mathrm C}_\mathrm\theta\;\cdot\;\mathrm E\;\cdot\;{\mathrm I}_\mathrm\omega}\;+\;\mathrm G\;\cdot\;{\mathrm I}_{\mathrm{St}.\;\;\mathrm{Ven}}\right)\;\mathrm{for}\;\mathrm l\;>\;{\mathrm L}_\mathrm{cr}\end{array}$

Жесткость имеет константу депланации Iω = 0 см6. Критическое напряжение потери устойчивости при кручении σcr упрощается до:

$\begin{array}{l}{\mathrm\sigma}_{\mathrm{cr}1}\;=\;{\mathrm\sigma}_{\mathrm{cr}2}\;=\;\frac1{{\mathrm I}_\mathrm p}\;\cdot\;\mathrm G\;\cdot\;{\mathrm I}_{\mathrm{St}.\;\;\mathrm{Ven}}\\{\mathrm\sigma}_{\mathrm{cr}1}\;=\;{\mathrm\sigma}_{\mathrm{cr}2}\;=\;\frac1{13 053}\;\cdot\;8 077\;\cdot\;122\;=\;75,5\;\mathrm{кН}/\mathrm{см}²\end{array}$

Ip и ISt.Ven описывают полярный момент инерции и момент инерции Сен-Венана одного сечения элемента жесткости (без плиты), рассчитаного относительно точки соединения к плите.

Согласно [1], раздел 9.2.1(9), критерий по 9.2.1(8) или следующий критерий должен быть в целом рассмотрен с учетом жесткости депланации:

$\begin{array}{l}{\mathrm\eta}_2\;=\;\frac{\mathrm\theta\;\cdot\;{\mathrm f}_\mathrm y}{{\mathrm\sigma}_{\mathrm{cr}1}}\;\leq\;1\\{\mathrm\eta}_3\;=\;\frac{\mathrm\theta\;\cdot\;{\mathrm f}_\mathrm y}{{\mathrm\sigma}_{\mathrm{cr}2}}\;\leq\;1\end{array}$

При коэффициенте для обеспечения упругой работы в соответствии с классом сечения 3 согласно [5] при θ = 2 f для элементов жесткости с низкой жесткостью депланации (например, полоса или полособульбовый профиль) получается:

${\mathrm\eta}_2\;=\;{\mathrm\eta}_3\;=\;\frac{2\;\cdot\;34,5}{75,5}\;=\;0,91\;\leq\;1$

Таким образом, расчет на потерю устойчивости при кручении выполнен.

SHAPE-THIN

В SHAPE-THIN можно выполнить расчет усиленных панелей с потерей устойчивости в соответствии с [1], раздел 4.5. В общих данных должна быть активирована панель управления «части c/t и эффективные характеристики сечения». После этого в параметрах расчета должны быть выбраны «EN 1993-1-1 и EN 1993-1-5» , а также необходимо выбрать панель управления «Эффективное сечение согласно EN 1993-1-5, раздел 4.5». Определение расчетной ширины должно выполняться в процессе итерации согласно [1], раздел 4.4(3). В этом примере для расчета нужно использовать только одну итерацию, поэтому только одна итерация появится в SHAPE-THIN (см. Рисунок 07).

Pисунок 07 - Параметры расчета

Сначала необходимо задать элементы сечения. Части c/t обычно создаются автоматически из геометрических условий; однако они могут быть созданы пользователем в таблице «1.7. Части сечения для классификации согласно EN 1993-1» (см. Рисунок 08) или в соответствующем диалоговом окне.

Pисунок 08 - Части сечения для классификации

Элементы жесткости могут быть потом заданы в таблице «1.8 Элементы жесткости» или в соответствующем диалоговом окне (см. Рисунок 09).

Pисунок 09 - Элементы жесткости

Кроме того, усиленная панель должна быть указана в таблице «1.9 Усиленные панели» (см. Рисунок 10) или соответствующем диалоговом окне. Должны быть выбраны элементы усиленной панели и необходимо задать расстояние до поперечного элемента жесткости. Если расстояние до поперечного ребра жесткости не задано, для расчета будет принято значение a = 10000 мм. Элементы жесткости, расположенные в усиленной панели, автоматически идентифицируются. Усиленная панель должна опираться в начале и в конце, что означает, что здесь необходима опора.

Pисунок 10 - Усиленные панели

Результаты эффективного сечения можно просмотреть с помощью кнопки «Расчетная ширина».

Pисунок 11 - Результаты

Ключевые слова

Потеря устойчивости секции усиленной панели с потерей устойчивости

Литература

[1]   Eurocode 3: Design of steel structures - Part 1-5: General rules - Plated structural elements; EN 1993-1-5:2006 + AC:2009
[2]   Kuhlmann, U.: Stahlbau-Kalender 2015 - Eurocode 3 - Grundnorm, Leichtbau. Berlin: Ernst & Sohn, 2015
[3]   Eurocode 3: Design of steel structures - Part 1‑1: General rules and rules for buildings; EN 1993‑1‑1:2010‑12
[4]   Beg, D.; Kuhlmann, U.; Davaine, L.; Braun, B.: Design of Plated Structures. Eurocode 3: Design of Steel Structures. Part 1-5 Design of Plated Structures. Berlin: Ernst & Sohn, 2011
[5]   Johansson, B.; Maquoi, R.; Sedlacek, G.; Müller, C.; Beg, D.: Commentary and Worked Examples to EN 1993-1-5, Plated Structural Elements. Luxemburg: Office for Official Publications of the European Communities, 2007

Загрузки

Ссылки

Сечения Тонкостенные
SHAPE-THIN 8.xx

Программа для расчета сечений

Харакетристики сечений, расчет напряжений и пластический расчет открытых и замкнутых тонкостенных сечений

Цена первой лицензии
1 000,00 EUR
;