9471x
001536
2018-09-12

Płyty usztywnione zgodnie z EN 1993-1-5, punkt 4.5

W SHAPE-THIN, obliczenia użebrowanych paneli wyboczeniowych można przeprowadzić zgodnie z sekcją 4.5 normy EN 1993-1-5. W przypadku wyboczenia usztywnionego panelu należy uwzględnić powierzchnie efektywne od lokalnego wyboczenia poszczególnych paneli w płycie i usztywnieniach oraz powierzchnie efektywne całego wyboczenia całego panelu.

W pierwszej kolejności określane są efektywne powierzchnie pojedynczych paneli przy użyciu współczynnika redukcyjnego zgodnie z EN 1993-1-5 [1] , Sekcja 4.4, aby uwzględnić wyboczenie pojedynczych paneli. W drugim kroku określane jest bezpieczeństwo wyboczeniowe całego panelu z uwzględnieniem wyboczenia podobnego do wyboczenia jednego z prętów wyboczeniowych. Przy zastosowaniu współczynnika uwzględniającego wyboczenie całej płyty, szerokości efektywne poszczególnych płyt zostają ponownie zredukowane. W rezultacie powstaje przekrój efektywny, który można traktować jako przekrój klasy 3.

Przykład

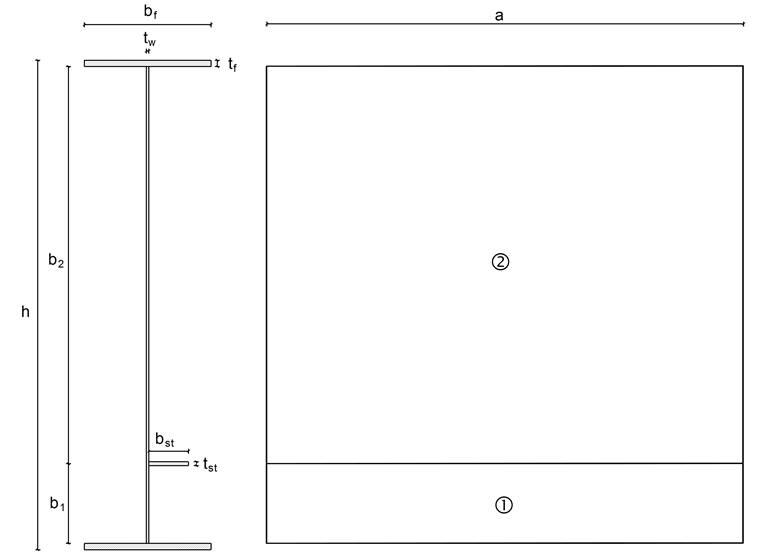
Poniższy przykład zaczerpnięto z Rocznika konstrukcji stalowych 2015 [2]. Przekrój składa się z belki dwuteowej, której środnik jest usztywniony poprzecznymi usztywnieniami oraz usztywnieniem podłużnym. Usztywnienia poprzeczne są rozmieszczone w odległości 3000 mm od siebie, a usztywnienie podłużne jest przyspawane w odległości 500 mm od dolnego pasa. Spoiny są pomijane. Działa osiowa siła ściskająca o wartości NEd = 4000 kN.

Materiał:
S355 J0
fy = 35,5 kN/cm² (dla t ≤ 3 mm it ≤ 16 mm)
fy = 34,5 kN/cm² (dla t >16 mm it ≤ 40 mm)
E = 21 000 kN/cm²
G = 8,076,92 kN/cm²
γM0 = 1.0

a = 3 000 mm
b1 = 500 mm
b2 = 2500 mm
b =800 mm
bst = 250 mm
tw = 15 mm
tf = 40 mm
tst = 25 mm
h = 3080 mm

Przekrój brutto i rozkład naprężeń

Naprężenie oblicza się w następujący sposób:

Przekrój brutto i rozkład naprężeń pokazano na rysunku 02.

klasyfikacja przekroju

Podczas klasyfikacji przekroju przeprowadzana jest ocena, czy konieczne jest przeprowadzenie obliczeń wyboczenia poszczególnych paneli. Jeżeli pojedynczy panel ma przekrój co najmniej klasy 3, wyboczenie lokalne nie ma znaczenia.

pas

Maksymalny stosunek c/t λi jest określany zgodnie z EN 1993-1-1 [3] , Tabela 5.2.

Pas musi mieć przekrój klasy 3. Wyboczenie lokalne nie ma zatem decydującego znaczenia i nie jest konieczna redukcja pojedynczych paneli pasa.

środnik

Maksymalny stosunek c/t λi jest określany zgodnie z [3] , Tabela 5.2.

Pojedyncza płyta 1 musi być przypisana do przekroju klasy 3. Wyboczenie lokalne nie ma zatem decydującego znaczenia i nie jest konieczna redukcja pojedynczych paneli pasa.

Maksymalny stosunek c/t λi jest określany zgodnie z [3] , Tabela 5.2.

Pojedyncza płyta 2 musi być przypisana do przekroju klasy 4. Tym samym dla tego pojedynczego panelu decydujące znaczenie ma wyboczenie lokalne i konieczna jest jego redukcja.

Ulepszacz

Maksymalny stosunek c/t λi jest określany zgodnie z [3] , Tabela 5.2.

Środnik musi być przypisany do przekroju klasy 3. Wyboczenie lokalne nie ma zatem decydującego znaczenia i nie jest konieczna redukcja tego pojedynczego panelu.

Szerokości efektywne

Pojedyncza płyta 1 jest przypisana do klasy przekroju 3, więc nie ma decydującego znaczenia wyboczenie lokalne. Wartości przekrojów efektywnych odpowiadają wartościom przekrojów brutto. Zgodnie z [1] , tabela 4.1, skutkuje to następującymi szerokościami efektywnymi:

Pojedyncza płyta 2 jest przypisana do klasy przekroju 4, więc nie ma wpływu wyboczenie lokalne. Szerokości efektywne pojedynczego panelu 2 należy określić zgodnie z [1] , sekcja 4.4.

Rozkład naprężeń w pojedynczym panelu 2 jest równomierny. Skutkuje to stosunkiem naprężeń ψ = 1 i, zgodnie z tabelą 4.1, wartością wyboczenia kσ = 4,0. Zgodnie z [1] , sekcja 4.4(2), wynik dla współczynnika smukłości λp2 wynosi:

 

Lokalny współczynnik redukcyjny ρ jest określany zgodnie z [1] , równanie (4.2):

Szerokości efektywne pojedynczej płyty 2 z uwzględnieniem wyboczenia lokalnego oblicza się zgodnie z [1] , Tabela 4.1:

Szerokości przekroju brutto wynoszą:

Zachowanie płytowe

Naprężenie krytyczne przy wyboczeniu sprężystym dla sztywności σcr,sl jest obliczane zgodnie z [1] , Załącznik A.2.2. Najpierw należy obliczyć efektywną długość sztywności ac :

Wynikiem naprężenia krytycznego przy wyboczeniu sprężystym dla sztywności σcr, sl jest a < ac w:

Isl,1 oraz Asl,1 oznaczają tutaj moment bezwładności przekroju brutto i pole brutto równoważnego pręta ściskanego zgodnie z [1] ; A.2.1(2) dla wyboczenia prostopadłego do płaszczyzny płyty oraz b1 i b2 opisują odległości usztywnień od krawędzi podłużnych (b1 + b2 = b).

Rozkład naprężeń jest równomierny. Dlatego naprężenie sprężyste płyty przy wyboczeniu σcr,p odpowiada naprężeniu krytycznemu przy wyboczeniu σcr,sl.

Pole przekroju brutto Ac podłużnie usztywnionej płyty oblicza się w następujący sposób, bez uwzględniania blach skrajnych podpartych przez sąsiednią część płyt oraz efektywnego pola przekroju Ac,eff,loc,p opisano powyżej:

Sztywność należy do klasy przekrojów 3, zatem efektywne pole przekroju sztywności odpowiada polu przekroju brutto.

Wartości przekrojów pokazano na Rysunku 04.

Współczynnik redukcyjny βa,c,p oblicza się zgodnie z [1] , sekcja 4.5.2 w następujący sposób:

Globalna smukłość λp usztywnionej płyty zgodnie z [1] , równanie (4.7), wynosi:

 

Zgodnie z [1] , 4.4(2) współczynnik smukłości λp jest mniejszy niż wartość graniczna 0,673. Dzięki temu nie jest konieczna redukcja ze względu na zachowanie płyty; na przykład ρp = 1,0.

Wyboczenie płyty

Naprężenie krytyczne przy wyboczeniu sprężystym σcr,c jest określane zgodnie z [1] , sekcja 4.5.3(3). W pierwszej kolejności określane jest naprężenie wyboczeniowe σcr,c,sl elementu usztywniającego, znajdującego się przy najbardziej obciążonej krawędzi ściskanej, zgodnie z równaniem [1] (4.9).

Rozkład naprężeń jest równomierny. Dlatego sprężyste naprężenie krytyczne przy wyboczeniu σcr,c odpowiada naprężeniu przy wyboczeniu sprężystym σcr,c,sl elementu usztywniającego, który znajduje się na najbardziej obciążonej krawędzi ściskanej.

σcr,c = σcr,c,sl = 94,7 kN/cm²

Współczynnik redukcyjny βa,c,c oblicza się zgodnie z [1] , sekcja 4.5.3(4), w następujący sposób:

Współczynnik smukłości λCpręta równoważnego ściskanego wynika, zgodnie z [1] , równanie (4.11):

Zgodnie z [1] , sekcja 4.5.3(5), promień bezwładności i oblicza się w następujący sposób:

Odległość e jest większą z dwóch odległości zgodnie z [1] , Rysunek A.1; na przykład odległość e1 pojedynczego elementu usztywniającego, wyliczona między środkami ciężkości i rozpatrywana niezależnie od płyty, bez szerokości efektywnej względem osi środka usztywnienia panelu płyty, albo odległość e2 od osi środka usztywnienia użebrowanego panelu panelu do środkowej płaszczyzny płyty. Odległości pokazano na rysunku 05.

e = max (e1, e2 ) = max (10,39 cm, 2,86 cm) = 10,39 cm

Współczynnik imperfekcji αe jest określany zgodnie z [1] , równanie (4.12) przy α = 0,49, dla otwartych przekrojów usztywniających w następujący sposób:

Współczynnik redukcyjny χc jest określany zgodnie z [3] , 6.3.1.2:

Interakcja między wyboczeniem płyty a zachowaniem płyty

Zachowanie konstrukcyjne całej płyty jest określane przy użyciu współczynnika ξ, zgodnie z [1] , sekcja 4.5.4(1):

Ostateczny współczynnik redukcyjny ρc jest określany za pomocą równania interakcji zgodnie z [1] , równanie (4.13):

Efektywne charakterystyki przekroju

Efektywną powierzchnię strefy ściskanej Ac, eff użebrowanego panelu płyty oblicza się zgodnie z równaniem [1] (4.5):

Efektywne pole przekroju Aeff wynosi:

Wymiarowanie panelu usztywnionego

Osie środka ciężkości przekroju brutto i przekroju efektywnego nie pokrywają się, co oznacza, że dodatkowe działające momenty zginające są spowodowane przesunięciem osi środka ciężkości przekroju efektywnego względem osi środka ciężkości przekroju brutto w tym miejscu. Te dodatkowe momenty zginające są obliczane w następujący sposób:

Maksymalne naprężenie daje wynik:

Obliczenia przeprowadza się zgodnie z [1] , równanie (4.15) w następujący sposób:

Obliczanie wyboczenia skrętnego

Zgodnie z [1] , 9.2.1(8), aby uniknąć wyboczenia skrętnego usztywnień o otwartych przekrojach, musi zostać spełnione następujące kryterium:

Ip oraz ISt.Ven opisują biegunowy moment bezwładności i moment bezwładności St. Venanta samego przekroju (bez płyty), obliczone wokół punktu połączenia z płytą.

Jeżeli uwzględniana jest sztywność skrępowana, najpierw należy określić naprężenie krytyczne przy wyboczeniu skrętnym σcr. Jest ono obliczane zgodnie z [4] , równaniem (2.119) i równaniem (2.120) w następujący sposób:

Sztywność skrępowana ma stałą skrępowania równą Iω = 0 cm6. Naprężenie krytyczne przy wyboczeniu skrętnym σcr zostaje zatem uproszczone do:

Ip oraz ISt.Ven opisują biegunowy moment bezwładności i moment bezwładności St. Venanta samego przekroju (bez płyty), obliczone wokół punktu połączenia z płytą.

Zgodnie z [1] , sekcja 9.2.1(9), przy uwzględnieniu sztywności deplanacyjnej należy ogólnie uwzględnić kryterium podane w 9.2.1(8) lub następujące kryterium:

Przy współczynniku zapewniającym zachowanie sprężystości zgodnie z klasą przekroju 3 wg [5] wynoszącym θ = 2 f w przypadku usztywnień o małej sztywności na deplanację (np. ze stali łebkowej) otrzymujemy:

Obliczenia dla wyboczenia skrętnego są w ten sposób spełnione.

SHAPE-THIN

W SHAPE-THIN, obliczenia usztywnionych paneli wyboczeniowych można przeprowadzić zgodnie z [1] , sekcja 4.5. W danych ogólnych należy aktywować panel sterowania "Części c/t i efektywne właściwości przekroju". Następnie w parametrach obliczeń należy wybrać „EN 1993-1-1 i EN 1993-1-5”; należy również wybrać panel sterowania zatytułowany "Przekrój efektywny wg EN 1993-1-5, Rozdział 4.5". Definiowanie szerokości efektywnych należy przeprowadzić w sposób iteracyjny zgodnie z [1] , sekcja 4.4(3). W tym przykładzie do obliczeń musi zostać użyta tylko jedna iteracja, aby tylko jedna iteracja wystąpiła również w SHAPE-THIN (patrz Rysunek 07).

Najpierw należy wprowadzić elementy przekroju. Części c/t są zazwyczaj generowane automatycznie na podstawie warunków geometrycznych; można je jednak utworzyć w sposób zdefiniowany przez użytkownika w tabeli "1.7 Części przekroju do klasyfikacji zgodnie z EN 1993-1" (patrz Rysunek 08) lub w odpowiednim oknie dialogowym.

Elementy usztywniające można zdefiniować w tabeli "1.8 Usztywnienia" lub w odpowiednim oknie dialogowym (patrz Rysunek 09).

Ponadto panel usztywniony należy określić w tabeli "1.9 Panele usztywnione" (patrz Rysunek 10) lub w odpowiednim oknie dialogowym. Należy wybrać elementy usztywnionej płyty i wprowadzić rozstaw usztywnień poprzecznych a. Jeżeli odległość usztywnień poprzecznych nie została zdefiniowana, to do obliczeń zostanie przyjęta wartość a = 10 000 mm. Elementy usztywniające znajdujące się w usztywnionym panelu są rozpoznawane automatycznie. Usztywniona płyta musi być podparta na początku i na końcu, co oznacza, że w tym miejscu konieczne jest podparcie.

Wyniki przekroju efektywnego można wyświetlić za pomocą przycisku [Szerokości efektywne].


Autor

Sonja pracuje w dziale Product Engineering i dodatkowo wspiera dział Customer Support. Jej główny obszar zainteresowań to RSECTION oraz konstrukcje stalowe i aluminiowe, gdzie w sposób celowy wykorzystuje swoją wiedzę.

Odnośniki
Odniesienia
Pobrane


;