3105x
001644
2020-07-02

Расчет огнестойкости колонны под действием нормальной силы

В данной технической статье будет с помощью дополнительного модуля RF-/STEEL EC3 рассчитана шарнирно-опертая колонна с центрально действующим нормальным усилием по норме EN 1993-1-2. Для расчета будет применено Национальное приложение Германии.

Конструктивная система и нагрузки

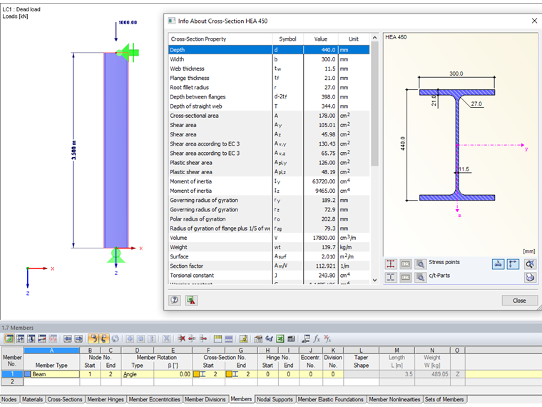
Расчет на потерю устойчивости при изгибе вокруг второстепенной оси

Эффективная длина маятниковой опоры Lcr = 3,50 м.

По норме EN 1993-1-1, 6.3.1.2:

Выбор кривой потери устойчивости при изгибе по таблице 6.2:

Неустойчивость перпендикулярно оси z: Кривая напряжения при потере устойчивости BSCz: b

В таблице 6.1 указан коэффициент несовершенства α = 0,34.

У двутавровых профилей и прямоугольных полых сечений, которые нагружены только сжатием, можно применить коэффициент kzy = 0.

В результате расчет выглядит следующим образом:


→ Расчёт выполнен.

Расчёт на огнестойкость

Конечная температура принимается равной 500 градусам.

Нахождение коэффициентов уменьшения:
ky, Θ = 0,78 таблица 3.1
kE, Θ = 0,60 таблица 3.1

Расчет под действием факторов пожара по п. 4.2.3.2

Коэффициент несовершенства:

Безразмерная относительная гибкость:

Вспомогательный коэффициент:

Коэффициент ослабления для потери устойчивости при изгибе в расчетной пожарной ситуации:

Прочность при продольном изгибе конструктивного элемента, подвергаемого сжатию:

Нагрузка в случае пожара:

Предварительный расчёт:


→ Расчёт выполнен.


Автор

Sandy оказывает поддержку в Customer Support по техническим вопросам, связанным с программным обеспечением. Она надежно осваивает новые темы и способствует разработке четко структурированных решений.

Ссылки
Ссылки
Скачивания


;