3105x
001644
2020-07-02

Obliczanie ognioodporności słupa pod wpływem działania siły osiowej

W poniższym artykule technicznym przestawiono projektowanie słupa podpartego przegubowo z uwagi na warunki pożarowe. Użyto w tym celu modułu dodatkowego RF-/STEEL EC3 a obliczenia przeprowadzono zgodnie z EN 1993-1-2, z wykorzystaniem niemieckiego załącznika krajowego.

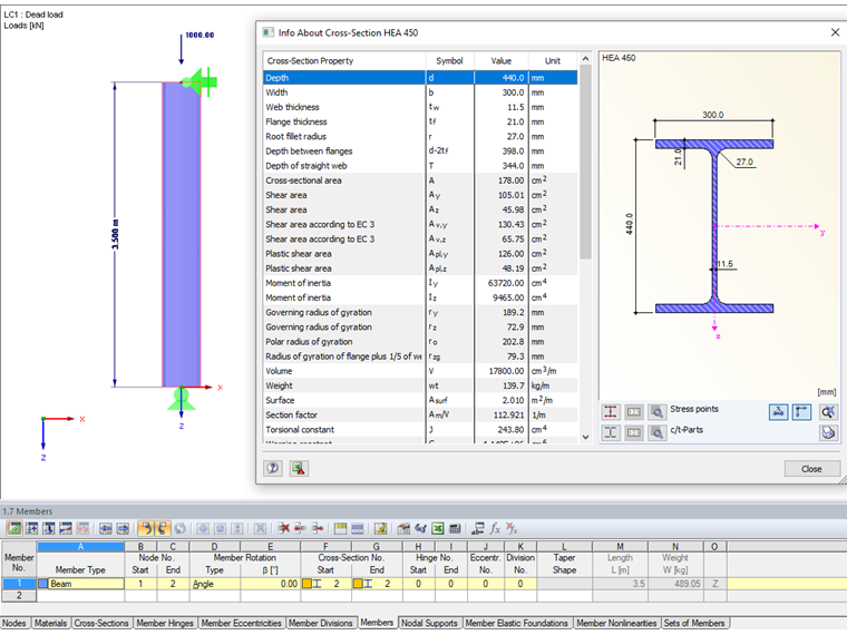
Układ konstrukcyjny i obciążenie

Sprawdzenie warunku wyboczenia giętne względem słabej osi bezwładności

Długość efektywna słupa podpartego przegubowo wynosi cr = 3,50 m.

Zgodnie z EN 1993-1-1, 6.3.1.2:

Wybór krzywej wyboczeniowej zgodnie z tabelą 6.2:

Niestateczność w kierunku prostopadłym do osi Z: Krzywa wyboczeniowa BSCz : b

Tabela 6.1 przedstawia współczynnik imperfekcji α = 0,34.

Dla przekrojów typu I, H i prostokątnych rurowych, które poddane są jedynie ściskaniu, można przyjąć współczynnik kyy = 0.

Po podstawieniu do wzoru otrzymujemy:


→ Warunek nośności został spełniony.

Projektowanie z uwagi na warunki pożarowe

Temperatura końcowa została zdefiniowana jako 500 stopni.

Współczynniki redukcyjne wynoszą:
ky, Θ = 0,78 Tabela 3.1
kE, Θ = 0,60 Tabela 3.1

Obliczenia w warunkach pożaru zgodnie z punktem 4.2.3.2

Współczynniki imperfekcji:

Bezwymiarowa smukłość względna:

Współczynnik pomocniczy:

Współczynnik redukcyjny dla wyboczenia giętnego w sytuacji pożaru:

Nośność na wyboczenie elementu konstrukcyjnego poddanego ściskaniu:

Obciążenie obliczeniowe w przypadku pożaru:

Wymiarowanie:


→ Warunek nośności został spełniony.


Autor

Sandy wspiera dział Obsługi Klienta w kwestiach technicznych związanych z oprogramowaniem. Niezawodnie wdraża się w nowe zagadnienia i przyczynia się do tworzenia jasno uporządkowanych rozwiązań.

Odnośniki
Odniesienia
Pobrane


;