3105x
001644
2020-07-02

Verifica della resistenza al fuoco di una colonna sotto forza assiale

Nel nostro articolo tecnico, nel modulo aggiuntivo RF-/STEEL EC3, verifichiamo una colonna incernierata con una forza assiale ad azione centrale secondo EN 1993-1-2 Useremo l'Appendice nazionale della Germania qui.

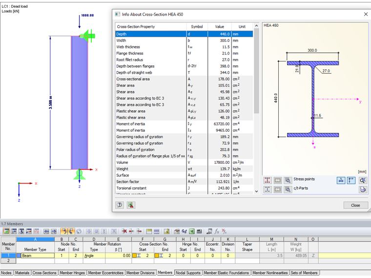
Sistema strutturale e carico

Verifica di instabilità flessionale intorno all'asse minore

Die Knicklänge der Pendelstütze beträgt Lcr = 3,50 m.

Nach EN 1993-1-1, 6.3.1.2:

Auswahl der Knicklinie nach Tabelle 6.2:

Ausweichen rechtwinklig zur z-Achse: Knickspannungslinie KSLz: b

Aus Tabelle 6.1 ergibt sich der Imperfektionsbeiwert α = 0,34.

Für I-, H- und rechteckige Hohlquerschnitte, welche nur auf Druck belastet werden, darf der Beiwert kzy = 0 angenommen werden.

Dadurch ergibt sich der Nachweis wie folgt:


→ Il progetto è completato.

Verifica della resistenza al fuoco

Die Endtemperatur wird mit 500 Grad definiert.

Determina i coefficienti di riduzione:
ky,Θ = 0.78 Tabelle 3.1
kE,Θ = 0.60 Tabelle 3.1

Nachweis unter Brandbeanspruchung nach Abschnitt 4.2.3.2

Coefficiente di imperfezione:

Dimensionsloser bezogener Schlankheitsgrad:

Coefficiente ausiliario:

Coefficiente di riduzione per instabilità flessionale per esposizione a fuoco:

Resistenza all'instabilità di un componente strutturale soggetto a compressione:

Caricamento in caso di incendio:

Verifica:


→ Il progetto è completato.


Autore

Sandy supporta il Customer Support nelle questioni tecniche relative al software. Si familiarizza con affidabilità con nuovi argomenti e contribuisce a soluzioni strutturate in modo chiaro.

Link
Bibliografia
Download


;