3105x
001644
2. Juli 2020

Brandschutznachweis einer Stütze unter Normalkraft

In diesem Fachbeitrag soll eine Pendelstütze mit einer mittig angreifenden Normalkraft mit Hilfe des Zusatzmoduls RF-/STAHL EC3 nach EN 1993-1-2 nachgewiesen werden. Hierfür wird der nationale Anhang von Deutschland verwendet.

System und Belastung

Nachweis gegen Biegeknicken um die schwache Achse

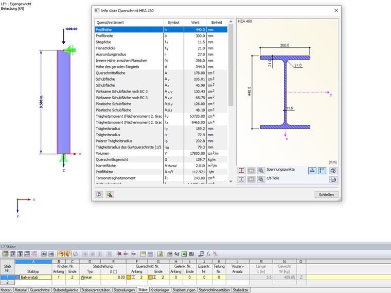
Die Knicklänge der Pendelstütze beträgt Lcr = 3,50 m.

Nach EN 1993-1-1, 6.3.1.2:

Auswahl der Knicklinie nach Tabelle 6.2:

Ausweichen rechtwinklig zur z-Achse: Knickspannungslinie KSLz: b

Aus Tabelle 6.1 ergibt sich der Imperfektionsbeiwert α = 0,34.

Für I-, H- und rechteckige Hohlquerschnitte, welche nur auf Druck belastet werden, darf der Beiwert kzy = 0 angenommen werden.

Dadurch ergibt sich der Nachweis wie folgt:


→ Nachweis ist erfüllt.

Brandschutznachweis

Die Endtemperatur wird mit 500 Grad definiert.

Ermittlung der Abminderungsfaktoren:
ky,Θ = 0.78 Tabelle 3.1
kE,Θ = 0.60 Tabelle 3.1

Nachweis unter Brandbeanspruchung nach Abschnitt 4.2.3.2

Imperfektionsbeiwert:

Dimensionsloser bezogener Schlankheitsgrad:

Hilfsbeiwert:

Abminderungsfaktor für das Biegeknicken unter Brandbeanspruchung:

Knickfestigkeit des druckbeanspruchten Bauteils:

Einwirkung unter Brandbelastung:

Nachweis:


→ Nachweis ist erfüllt.


Autor

Sandy unterstützt im Customer Support bei technischen Anliegen rund um die Software. Sie arbeitet sich zuverlässig in neue Themen ein und trägt zu klar strukturierten Lösungen bei.

Links
Referenzen
Downloads


;