3105x
001644
02.07.2020

Calcul de la résistance au feu d'un poteau soumis à un effort normal

Dans cet article technique, un poteau articulé avec un effort normal agissant en son centre est vérifié à l'aide du module additionnel RF-/STEEL EC3 selon l'EN 1993-1-2. L'Annexe Nationale allemande est utilisée pour l'exemple traité.

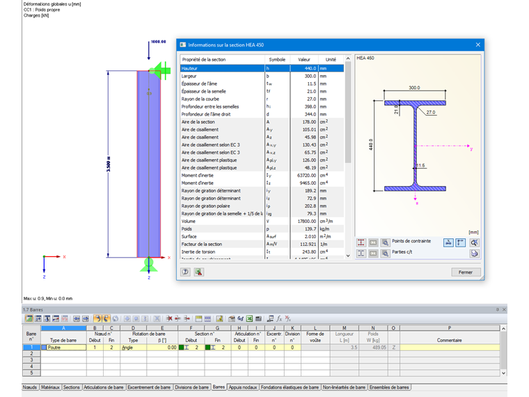
Système et chargement

Vérification du flambement par flexion autour de l'axe faible

La longueur de flambement du poteau articulé est Lcr = 3,50 m.

Selon l’EN 1993-1-1, 6.3.1.2 :

Choix de la courbe de flambement selon le Tableau 6.2 :

Flambement perpendiculaire à l'axe z : courbe de flambement BSCz : b

Le Tableau 6.1 fournit le facteur d'imperfection α = 0,34.

Pour les sections creuses en I, H et rectangulaires qui sont seulement comprimées, le coefficient kzy = 0 peut être supposé.

On obtient ainsi le calcul suivant :


→ La vérification est effectuée.

Vérification de la résistance au feu

La température finale définie est de 500 degrés.

Détermination des coefficients de réduction :
ky,Θ = 0,78 Tableau 3.1
kE,Θ = 0,60 Tableau 3.1

Vérification dans le calcul à l'incendie selon la clause 4.2.3.2

Facteur d'imperfection :

Élancement relatif sans dimension :

Facteur auxiliaire :

Facteur de réduction pour le flambement par flexion dans le calcul à l'incendie :

Résistance au flambement du composant structural soumis à la compression :

Chargement en cas d'incendie :

Conception :


→ La vérification est effectuée.


Auteur

Sandy apporte son soutien au Customer Support pour les questions techniques liées au logiciel. Elle s’implique de manière fiable dans de nouveaux sujets et contribue à des solutions clairement structurées.

Liens
Références
Téléchargements


;