3105x
001644
2020-07-02

Fire Resistance Design of Column Under Axial Force

In this technical article, a hinged column with a centrally acting axial force will be designed by means of the RF-/STEEL EC3 add-on module according to EN 1993-1-2. We will use the National Annex of Germany here.

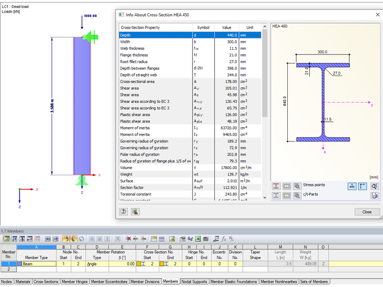
Structural System and Loading

Flexural Buckling Design Around Minor Axis

The effective length of the hinged column is Lcr = 3.50 m.

According to EN 1993-1-1, 6.3.1.2:

Selection of the buckling curve according to Table 6.2:

Instability perpendicular to the z-axis: Buckling stress curve BSCz: b

Table 6.1 shows the imperfection factor α = 0.34.

For I-, H-, and rectangular hollow cross-sections that are only subjected to compression, the coefficient kzy = 0 may be assumed.

This results in the design as follows:


→ Design is fulfilled.

Fire Resistance Design

The final temperature is defined as 500 degrees.

Determine reduction factors:
ky,Θ = 0.78 Table 3.1
kE,Θ = 0.60 Table 3.1

Design under fire exposure according to Clause 4.2.3.2

Imperfection factor:

Dimensionless relative slenderness:

Auxiliary factor:

Reduction factor for flexural buckling under fire exposure:

Buckling resistance of structural component subjected to compression:

Loading in case of fire:

Design:


→ Design is fulfilled.


Author

Sandy provides support in Customer Support for technical issues related to the software. She reliably familiarizes herself with new topics and helps develop clearly structured solutions.

Links
References
Downloads


;