1417x
004631
2020-08-17

Существенная разница в результатах

Почему при применении наклона через несовершенство для отдельного стержня и сочлененного блока стержней с одинаковой общей длиной возникают большие различия в результатах как для деформации, так и для изгибающих моментов?


Ответ:

Несовершенства учитываются при расчете с эквивалентными нагрузками на стержень. Die angesetzte Kraft quer zur Stablängsrichtung ergibt sich aus der Multiplikation von Normalkraft mit dem Winkel.

Bei einem veränderlichen Normalkraftverlauf wird der Durchschnitt je Stab angewandt.

Insbesondere bei einer Beanspruchung aus einer zunehmenden Normalkraft (z. B. aus dem Eigengewicht) können sich große Unterschiede einstellen, da bei einem Einzelstab die angesetzte Kraft einen wesentlich längeren Hebelarm aufweist.

Wird nur am Stützenkopf eine vertikale Knotenlast in Kombination mit der Imperfektion angesetzt, sind die Ergebnisse eines Stabes und die des Stabsatzes identisch.

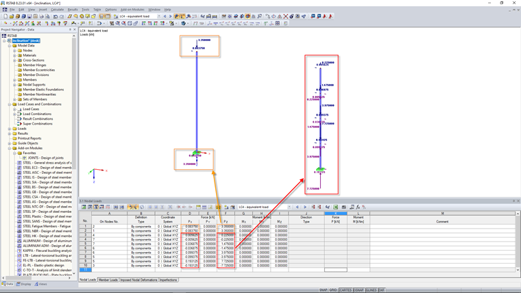
Nachfolgend ein einfaches Beispiel mit einem Stab und einem Stabsatz aus vier Einzelstäben mit einer Gesamtlänge von 8,00 m.

Damit die Berechnung nicht aufgrund einer Instabilität (durch die iterative Ermittlung der anzusetzenden Normalkraft) abgebrochen wird, wird die Schiefstellung im LF2 absolut mit 200 mm und eine linear veränderliche Last (um den Effekt noch zu verstärken) im LF1 von 2,5 kN/m auf 0,00 kN/m angenommen.

Die anzusetzende Imperfektionslast wird mithilfe des Dialogfensters "Ergebnisverläufe im Stab" und der bereichsweisen, linearen Glättungsoption für alle 2,00 m abgelesen und als Vertikallast mit wechselndem Vorzeichen angesetzt. Die Horizontallasten ergeben sich aus der Multiplikation der Vertikallast mit (200 mm / 8000 mm).

Diese Ersatzlasten wurden dann im LF4 als Knotenlasten auf die Stäbe angesetzt und mit den Ergebnissen der LK1 verglichen.

Die sehr geringen Ergebnisunterschiede ergeben sich aus Rundungsfehlern und der Berechnung nach Th. II. порядка


Автор

Г-н Фрёлих оказывает техническую поддержку нашим заказчикам и отвечает за разработки железобетонных конструкций.

Ссылки
Скачивания


;