1417x
004631
17.8.2020

Značný rozdíl ve výsledcích

Proč dostávám velké rozdíly výsledků, a to jak pro deformaci, tak i pro ohybové momenty při použití naklonění pomocí imperfekce na jednotlivém prutu a vícedílné sadě prutů se stejnou celkovou délkou?


Odpověď:

Imperfekce se zohledňují pro výpočet pomocí srovnávacích zatížení na prut. Síla působící příčně na podélný směr prutu vyplývá z vynásobení normálové síly úhlem.

V případě proměnného průběhu normálové síly se pro každý prut použije průměr.

Zvláště v případě namáhání v důsledku rostoucí normálové síly (např. od vlastní tíhy) mohou vzniknout velké rozdíly, protože síla působící na jednotlivý prut má výrazně delší rameno.

Je-li svislé zatížení na uzel v kombinaci s imperfekcí aplikováno pouze na hlavu sloupu, jsou výsledky prutu a sady prutů totožné.

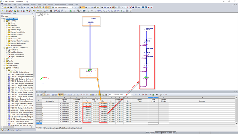
Níže je uvedený jednoduchý příklad s prutem a sadou prutů ze čtyř jednotlivých prutů o celkové délce 8,00 m.

Aby výpočet nebyl přerušen v důsledku nestability (na základě iteračního stanovení normálové síly, která se použije), bylo uvažováno vychýlení v ZS2 absolutní s 200 mm a lineárně proměnné zatížení (pro zvýšení účinku) v ZS1 z 2,5 kN/m na 0,00 kN/m.

Zatížení imperfekcí, které se má použít, bylo odečteno pomocí dialogu "Průběhy výsledků na prutu" a možností lineárního vyhlazení pro každé 2,00 m a aplikováno jako svislé zatížení s měnícím se znaménkem. Vodorovná zatížení jsou výsledkem násobení svislého zatížení s (200 mm / 8000 mm).

Tato náhradní zatížení poté byla v ZS4 jako zatížení na uzel na prutech a porovnána s výsledky KZ1.

Velmi malé rozdíly ve výsledcích jsou výsledkem chyb zaokrouhlení a výpočtu podle teorie II. řádu. řádu


Autor

Pan Fröhlich poskytuje technickou podporu zákazníkům a je odpovědný za vývoj produktů pro ocelové konstrukce.

Odkazy
Stahování


;