1417x
004631
2020-08-17

Diferença significativa nos resultados

Por que razão obtenho grandes diferenças nos resultados da deformação e dos momentos de flexão quando aplico a inclinação utilizando a imperfeição numa barra individual e num conjunto articulado de barras com o mesmo comprimento total?


Resposta:

As imperfeições são consideradas para o cálculo com cargas de barra equivalentes. A força transversal aplicada à direção longitudinal da barra resulta da multiplicação de uma força axial e de um ângulo.

No caso de uma distribuição de força axial variável, é utilizada a média por barra.

Especialmente no caso de uma carga resultante do aumento da força axial (por exemplo, devido ao peso próprio), podem ocorrer grandes diferenças porque a força aplicada a uma barra individual tem um braço de alavanca significativamente mais longo.

Se apenas for aplicada uma carga nodal vertical em combinação com a imperfeição no capitel, os resultados da barra e do conjunto de barras são idênticos.

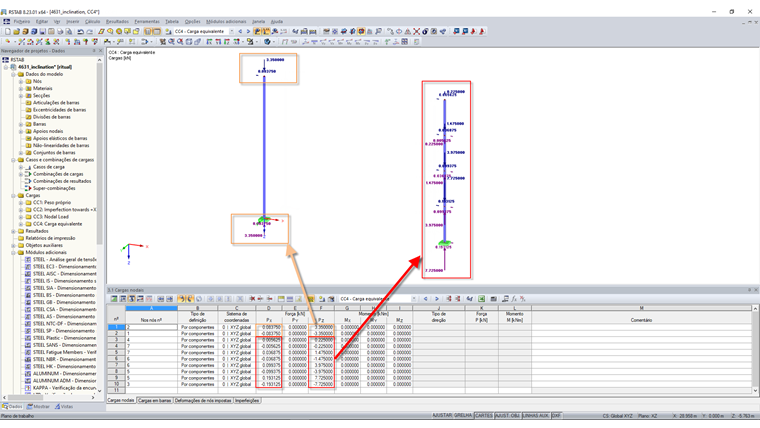
A seguir, é apresentado um exemplo simples com uma barra e um conjunto de quatro barras individuais com um comprimento total de 8 m.

De forma a evitar a interrupção do cálculo devido a uma instabilidade (através da determinação iterativa da força axial a aplicar), foi aplicada uma inclinação absoluta de 200 mm no CC2 e uma carga linearmente variável (para aumentar o efeito) de 2,5 kN/m a 0,00 kN/m no CC1.

A carga de imperfeição a ser aplicada foi obtida através da caixa de diálogo "Diagramas de resultados na barra" e da opção de suavização linear por zona a cada 2,00 m e aplicada como uma carga vertical com alteração do sinal. As cargas horizontais resultam da multiplicação da carga vertical por (200 mm/8000 mm).

Estas cargas equivalentes foram então aplicadas às barras como cargas nodais no CC4 e comparadas com os resultados do CO1.

As diferenças muito pequenas nos resultados são causadas por erros de arredondamento e pelo cálculo de acordo com a análise de Análise


Autor

O Eng. Fröhlich presta apoio técnico aos clientes e é responsável pelo desenvolvimento de produtos para estruturas de aço.

Ligações
Downloads


;