1417x
004631
17.08.2020

Différence significative dans les résultats

Pourquoi est-ce que j'obtiens de grandes différences dans les résultats pour la déformation et les moments fléchissants lors de l'application d'une inclinaison à l'aide d'une imperfection à une barre simple et à un ensemble de barres articulées de même longueur totale ?


Réponse:

Les imperfections sont considérées pour le calcul avec des charges de barre équivalentes. La force appliquée transversalement à la direction longitudinale de la barre résulte de la multiplication d'un effort normal et d'un angle.

Dans le cas d'une distribution d'effort normal variable, la moyenne par barre est utilisée.

En particulier dans le cas d'une charge due à l'augmentation de l'effort normal (due par exemple au poids propre), de grandes différences peuvent survenir car la force appliquée à une barre a un bras de levier beaucoup plus long.

Si une charge nodale verticale associée à l'imperfection n'est appliquée qu'à la tête du poteau, les résultats de la barre et de l'ensemble de barres sont identiques.

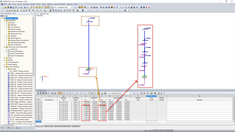
Voici un exemple simple avec une barre et un ensemble de quatre barres individuelles d'une longueur totale de 8,00 m.

Afin d'éviter l'interruption du calcul pour cause d'instabilité (par la détermination itérative de l'effort normal à appliquer), l'inclinaison absolue dans le CC2 avec 200 mm et une charge linéairement variable (pour augmenter l'effet) dans CC1 à partir de 2,5 kN/m à 0,00 kN/m ont été appliqués.

La charge d'imperfection à appliquer a été obtenue à l'aide de la boîte de dialogue « Diagrammes de résultats sur la barre » et de l'option de lissage linéaire par aire tous les 2,00 m et appliquée comme une charge verticale avec changement de signe. Les charges horizontales résultent de la multiplication de la charge verticale par (200 mm/8 000 mm).

Ces charges équivalentes ont ensuite été appliquées aux barres sous forme de charges nodales dans le CC4 et comparées aux résultats de la CO1.

Les très faibles différences dans les résultats sont dues aux erreurs d'arrondi et au calcul selon l'analyse du second ordre. ordre


Auteur

Monsieur Frölich fournit de l'assistance technique à nos clients, il est aussi responsable du développement produit pour les structures acier.

Liens
Téléchargements


;