2043x
001226
2021-12-17

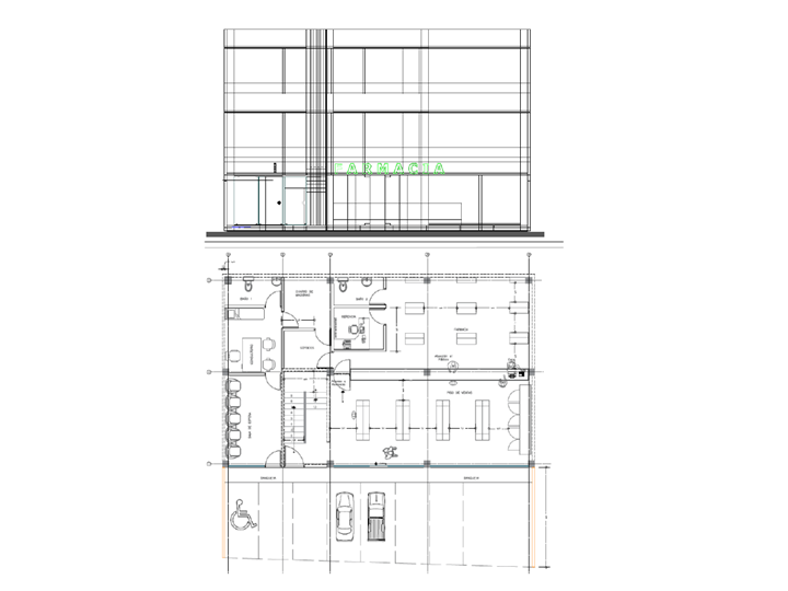
Медицинский центр и аптека в г. Эль-Эспиналь, Оахака, Мексика

Здание находится на авеню Melchor Ocampo, Tercera Sección в г. Эль-Эспиналь, Оахака, Мексика. На первом этаже находится аптека, а над ней – приёмные кабинеты. Перегородки выполнены из облегченного материала.

Оно имеет форму прямоугольного параллелепипеда.

Все этажи соединены между собой металлической лестницей, которая была добавлена после завершения основных строительных работ.

В качестве конструкционного материала использовался железобетон и каменная кладка. Железобетонные колонны имеют квадратное сечение, а балки - прямоугольное. Толщина железобетонных плит и диафрагм жесткости одинакова.

Основная несущая конструкция состоит из жестких рам, состоящих железобетонных балок и колонн как с диафрагмами жёсткости, так и без них. В её основе лежит ленточный фундамент из железобетона.

Нагрузки и их сочетания были рассчитаны с учетом действия боковых нагрузок, а также сейсмической зоны, в которой находится здание.

Расчёт, выполненный в основной программе RFEM 5 и дополнительных модулях RF-DYNAM Pro, RF-CONCRETE Surfaces, RF-CONCRETE Members и RF-CONCRETE Columns показал, что силы, воздействующие на элементы конструкции, не превышают предельного состояния по несущей способности и пригодности к эксплуатации, а также допустимого смещения этажей для сочетаний нагрузок, включая сейсмические воздействия.

За ход строительных работ и предоставление архитектурных данных отвечала компания SAGA Diseño y Construcción.

Место Av. Melchor Ocampo, Tercera Sección,
70117, Эль-Эспиналь, Оахака
Мексика
Расчёт конструкций


Спецификации проекта

Данные о модели

Количество узлов 108
Количество линий 193
Количество стержней 165
Количество поверхностей 54
Количество загружений 3
Количество расчетных сочетаний 4
Общий вес 328,610 t
Размеры (метрические) 16,608 x 10,208 x 9,629 m
Размеры (имперские) 54.49 x 33.49 x 31.59 feet
Версия программы 5.26.02

У вас есть какие-нибудь вопросы?