2036x
001226
2021-12-17

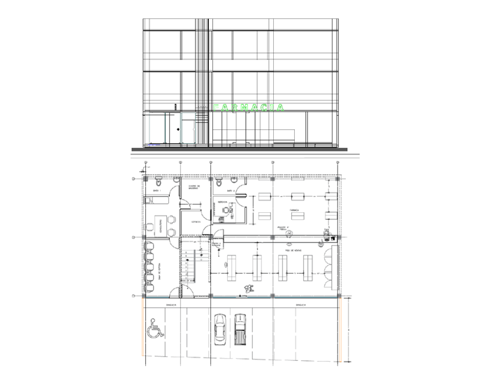
Pharmacy and Medical Office Building in El Espinal, Oaxaca, Mexico

The building is located on avenue Melchor Ocampo, Tercera Sección in El Espinal, Oaxaca, Mexico. It is a building with a pharmacy on the ground floor and medical offices on the upper floors with partitions made of lightweight material.

The overall geometric shape of the floor plan and height is rectangular.

All the floors are connected by a metal staircase that was added after the main system was finished.

Reinforced concrete and masonry were used as the structural material. The reinforced concrete columns are square and the beams are rectangular. The thickness of the reinforced concrete slabs and masonry diaphragm walls is uniform.

The main structural system that bears the loads is composed of rigid frames made of reinforced concrete beams and columns with and without diaphragm walls, built on strip foundations made of reinforced concrete.

The loads and their combinations were calculated considering the effects of lateral loads designed for the seismic zone where the structure is located.

The structural analysis using the RFEM 5 main program and the add-on modules RF‑DYNAM Pro, RF‑CONCRETE Surfaces, RF-CONCRETE Members, and RF-CONCRETE Columns has shown that the structural elements did not exceed the ultimate and serviceability limit states, nor the distortion of the mezzanine floors of the structure for load combinations, including seismic effects.

The company SAGA Diseño y Construcción provided the architectural data and was in charge of the construction execution.

Location Av. Melchor Ocampo, Tercera Sección,
70117, El Espinal, Oaxaca
Mexico
Structural Design


Project Specifications

Model Data

Number of Nodes 108
Number of Lines 193
Number of Members 165
Number of Surfaces 54
Number of Load Cases 3
Number of Result Combinations 4
Total Weight 328.610 tons
Dimensions (Metric) 16.608 x 10.208 x 9.629 m
Dimensions (Imperial) 54.49 x 33.49 x 31.59 feet
Program Version 5.26.02

Do you have any questions?