2043x
001226
17.12.2021

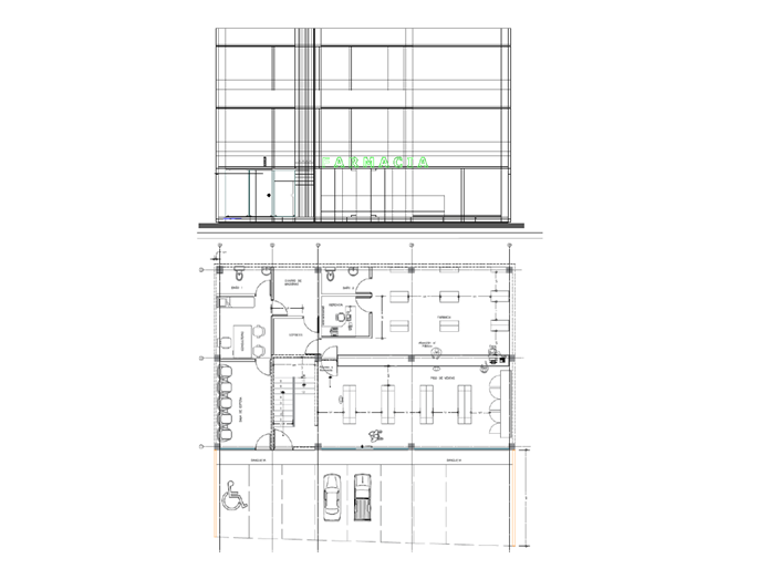
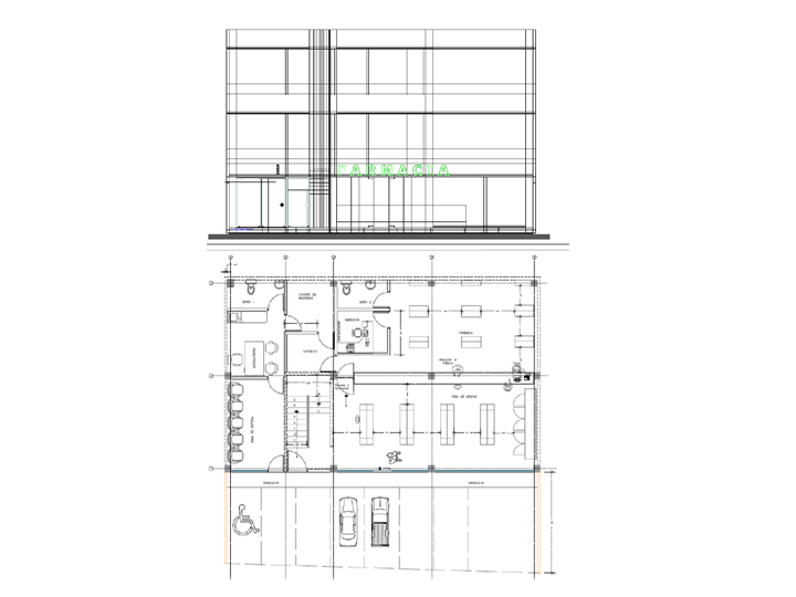
Centre médical à El Espinal, Oaxaca, Mexique

Ce centre médical est situé avenue Melchor Ocampo, Tercera Sección à El Espinal, Oaxaca, Mexique. Ce bâtiment inclut une pharmacie située au rez-de-chaussée et des cabinets médicaux aux étages supérieurs avec des cloisons faites en matériau léger.

La forme géométrique globale du plan au sol et de hauteur sont rectangulaires.

Tous les étages sont reliés par un escalier métallique qui a été ajouté une fois le système principal achevé.

Le béton armé et la maçonnerie ont été utilisés comme matériau de construction. Les poteaux en béton armé sont de forme carrée et les poutres rectangulaires. L'épaisseur des dalles en béton armé et des parois moulées en maçonnerie est uniforme.

Le système de construction principal qui supporte les charges est composé de portiques rigides constitués de poutres et de poteaux en béton armé avec et sans parois moulées, reposant sur des semelles de fondations filantes en béton armé.

Les charges ainsi que leurs combinaisons ont été calculées en considérant les effets des charges latérales calculées en fonction de la zone sismique où est situé le bâtiment.

Le calcul de structure effectué à l'aide du logiciel de base RFEM 5 et des modules additionnels RF-DYNAM Pro, RF-CONCRETE Surfaces, RF-CONCRETE Members et RF-CONCRETE Columns a démontré que les éléments structuraux ne dépassaient pas les états limites ultimes et de service, ni la déformation des planchers de la mezzanine de la structure pour les combinaisons de charges incluant des effets sismiques.

La société SAGA Diseño y Construcción a fourni les données de construction et était chargée de l'exécution des travaux.

Localisation Av. Melchor Ocampo, Tercera Sección,
70117, El Espinal, Oaxaca
Mexique
Calcul de structure


Spécifications du projet

Données de modèle

Nombre de nœuds 108
Nombre de lignes 193
Nombre de barres 165
Nombre de surfaces 54
Nombre de cas de charge 3
Nombre de combinaisons de résultats 4
Poids total 328,610 t
Dimensions (métrique) 16,608 x 10,208 x 9,629 m
Dimensions (impériales) 54.49 x 33.49 x 31.59 feet
Version du logiciel 5.26.02

Avez-vous des questions ?