2043x
001226
17. Dezember 2021

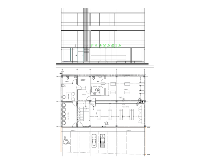
Apotheken- und Ärztehaus in El Espinal, Oaxaca, Mexiko

Das Gebäude befindet sich in der avenue Melchor Ocampo, Tercera Sección in El Espinal, Oaxaca, Mexiko. Das Gebäude beinhaltet eine Apotheke im Erdgeschoss und Praxen in den oberen Stockwerken mit Trennwänden aus Leichtbaumaterial.

Die geometrische Gesamtform des Grundrisses und der Höhe ist rechteckig.

Alle Stockwerke sind durch eine Metalltreppe verbunden, die nach Fertigstellung des Hauptsystems hinzugefügt wurde.

Als Material wurden Stahlbeton und Mauerwerk verwendet. Die Stahlbetonstützen sind quadratisch und die Träger rechteckig. Die Dicke der Stahlbetonplatten und Wände aus Mauerwerk ist konstant.

Das Haupttragwerk, das die Lasten abträgt, bilden biegesteife Rahmen aus Stahlbetonträgern und -stützen mit und ohne Ausfachungswänden aus Mauerwerk, gegründet auf Streifenfundamenten aus Stahlbeton.

Die Lasten und ihre Kombinationen wurden unter Berücksichtigung der Horizontallasten berechnet, die für die Erdbebenzone vorgesehen sind, in der sich die Struktur befindet.

Die statische Berechnung mit dem Hauptprogramm RFEM 5 und den Zusatzmodulen RF-DYNAM Pro, RF-BETON Flächen, RF-BETON Stäbe und RF-BETON Stützen hat gezeigt, dass die Bauteile die Grenzzustände der Tragfähigkeit und Gebrauchstauglichkeit sowie die Geschossverschiebung für die Lastkombinationen einschließlich Erdbebeneinwirkungen nicht überschreiten.

Die Firma SAGA Diseño y Construcción lieferte die Architekturdaten und war mit der Bauausführung beauftragt.

Ort Av. Melchor Ocampo, Tercera Sección,
70117, El Espinal, Oxaca
Mexiko
Statische Berechnung


Projektspezifikationen

Modelldaten

Anzahl Knoten 108
Anzahl Linien 193
Anzahl Stäbe 165
Anzahl Flächen 54
Anzahl Lastfälle 3
Anzahl Ergebniskombinationen 4
Gesamtgewicht 328,610 t
Abmessungen (metrisch) 16,608 x 10,208 x 9,629 m
Abmessungen (imperial) 54.49 x 33.49 x 31.59 feet
Programmversion 5.26.02

Haben Sie irgendwelche Fragen?