2043x
001226
2021-12-17

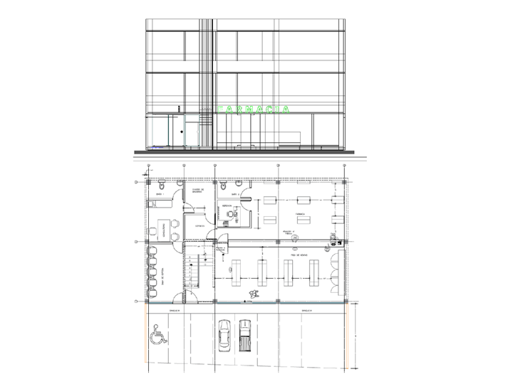
Apteka i gabinety lekarskie w El Espinal, Oaxaca, Meksyk

Budynek znajduje się przy alei Melchor Ocampo, Tercera Sección w El Espinal, Oaxaca, w Meksyku. Jest to budynek mieszczący aptekę na parterze i gabinety lekarskie na wyższych kondygnacjach. W konstrukcji zastosowano lekkie ścianki działowe.

Ogólny kształt geometryczny w rzucie i na wysokości jest prostokątny.

Wszystkie kondygnacje połączone są metalowymi schodami, dodanymi już po zakończeniu budowy głównego układu konstrukcyjnego.

Jako materiał konstrukcyjny zastosowano żelbet i elementy murowe. Słupy żelbetowe mają przekrój kwadratowy, a belki wykształtowano jako prostokątne. Grubość płyt żelbetowych oraz ścian murowanych jest jednakowa w całym obiekcie.

Główny układ konstrukcyjny przenoszący obciążenia składa się ze sztywnych ram wykonanych z belek i słupów z betonu zbrojonego, z murowanymi ścianami wypełniającymi. Posadowiony jest na ławach fundamentowych wykonanych z betonu zbrojonego.

Obciążenia oraz kombinacje zostały obliczone z uwzględnieniem obciążeń poprzecznych, właściwych dla strefy oddziaływań sejsmicznych, w której znajduje się konstrukcja.

Analiza statyczno-wytrzymałościowa przy użyciu programu głównego RFEM 5 i modułów dodatkowych RF-DYNAM Pro, RF CONCRETE Surfaces, RF-CONCRETE Members i RF-CONCRETE Columns wykazała, że stany graniczne nośności i użytkowalności elementów konstrukcyjnych nie zostały przekroczone. Spełniono też kryteria dla odkształceń stropów antresoli uwzględniające wpływy sejsmiczne.

Firma SAGA Diseño y Construcción dostarczyła dane architektoniczne i była odpowiedzialna za budowę.

Miejsce Av. Melchor Ocampo, Tercera Sección,
70117, El Espinal, Oaxaca
Meksyk
Inżynieria konstrukcyjna


Specyfikacja projektu

Dane modelu

Liczba węzłów 108
Liczba linii 193
Liczba prętów 165
Liczba powierzchni 54
Ilość przypadków obciążenia 3
Liczba kombinacji wyników 4
Ciężar całkowity 328,610 t
Wymiary (metryczne) 16,608 x 10,208 x 9,629 m
Wymiary (imperialne) 54.49 x 33.49 x 31.59 feet
Wersja programu 5.26.02

Czy mają Państwo jakieś pytania?