2043x
001226
2021-12-17

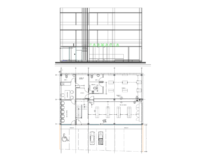
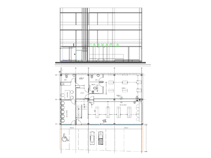
Edifício de farmácia e escritórios médicos em El Espinal, Oaxaca, México

O edifício está localizado na avenida Melchor Ocampo, Tercera Sección, em El Espinal, Oaxaca, México. O edifício inclui uma farmácia no rés do chão e consultórios médicos nos pisos superiores com divisórias de material leve.

A forma geométrica geral na planta e no alçado é retangular.

Todos os pisos estão ligados por uma escada de metal que foi adicionada após o sistema principal estar concluído.

Os materiais estruturais utilizados foram betão armado e alvenaria. Os pilares de betão armado são quadrados e as vigas são retangulares. A espessura das lajes de betão armado e das paredes de alvenaria é constante.

O sistema estrutural principal que suporta as cargas é constituído por pórticos rígidos formados por vigas e pilares de betão armado, com e sem emparedamentos de alvenaria, construídos sobre sapatas de fundação contínuas de betão armado.

As cargas e as suas combinações foram calculadas considerando os efeitos das cargas laterais dimensionadas para a zona sísmica onde se encontra a estrutura.

O cálculo estrutural com o programa principal RFEM 5 e os módulos adicionais RF-DYNAM Pro, RF-CONCRETE Surfaces, RF-CONCRETE Members e RF-CONCRETE Columns demonstrou que os componentes estruturais também cumprem os estados limite último e de utilização, bem como o deslocamento de pisos para as combinações de carga, incluindo as ações sísmicas.

A empresa SAGA Diseño y Construcción forneceu os dados arquitetónicos e foi a responsável pela execução da obra.

Local Av. Melchor Ocampo, Tercera Sección,
70117, El Espinal, Oxaca
México
Cálculo estrutural


Especificações do projeto

Dados do modelo

Número de nós 108
Número de linhas 193
Número de barras 165
Número de superfícies 54
Número de casos de carga 3
Número de combinações de resultados 4
Peso total 328,610 t
Dimensões (métricas) 16,608 x 10,208 x 9,629 m
Dimensões (imperial) 54.49 x 33.49 x 31.59 feet
Versão do programa 5.26.02

Tem alguma pergunta?