2043x
001226
2021-12-17

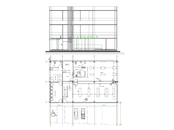
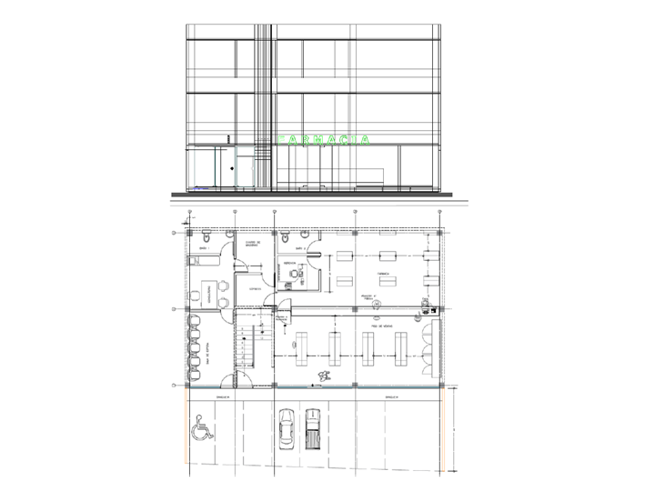
墨西哥瓦哈卡 El Espinal 的药房和医疗办公楼

该建筑筑位于墨西哥瓦哈卡州的 El Espinal。 一层是药房,上部两层是诊所,隔墙采用轻型材料。

整个建筑结构为矩形,

楼梯为金属楼梯,在建筑主体完工之后进行组装。

主体包括钢筋混凝土方形柱和矩形梁,以及钢筋混凝土楼板和砖墙。

项目的主体结构由钢筋混凝土梁和柱组成,设有和不设有混凝土墙,条形基础上为钢筋混凝土结构。

因为该建筑处于地震区,所以计算时考虑了地震荷载作用。

工程师们使用 RFEM 5 和附加模块 RF‑DYNAM Pro、RF‑CONCRETE Surfaces、RF-CONCRETE Members 和 RF-CONCRETE Columns 完成了结构分析与设计。所有结构构件都符合承载能力极限状态和正常使用极限状态设计要求。此外。层间位移也符合要求。

SAGA Diseño y Construcción 公司提供了建筑数据,并负责施工。

位置 Av. Melchor Ocampo, Tercera Sección,
70117, El Espinal, Oaxaca
Mexico
结构设计


项目说明

模型数据

节点数目: 108
线的数目 193
杆件数目: 165
面的数目: 54
荷载工况数目 3
结果组合数目 4
总重量 328,610 t
翘曲区域尺寸 16.608 x 10.208 x 9.629 m
软件版本 5.26.02

您有什么问题想问的吗?