2043x
001226
17-12-2021

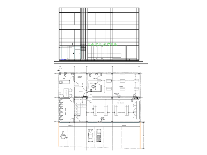
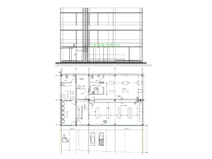
Edificio para farmacia y consultorios médicos, El Espinal, Oaxaca, México

El edificio se encuentra ubicado en la av. Melchor Ocampo, Tercera Sección, El Espinal, Oaxaca, México. Se trata de una construcción que en planta baja se ocupará para farmacia y en las plantas superiores serán usados eventualmente como consultorios con divisiones hechas de material ligero.

La forma geométrica global en planta y en altura es rectangular.

Todas las plantas están comunicadas a través de una escalera metálica que fue agregada posteriormente una vez terminado el sistema principal.

Se usaron el concreto reforzado y mampostería como material estructural, las secciones transversales de los elementos de concreto reforzado son cuadrados para las columnas y rectangulares para las trabes, el espesor es uniforme para las losas de concreto reforzado y para los muros diafragma de mampostería.

El sistema estructural principal para resistir combinaciones de acciones está compuesto de marcos rígidos de trabes y columnas con o sin muros diafragmas desplantados en cimentación de zapatas continuas y contratrabes.

Se cuantificaron los tipos de cargas a considerar y sus combinaciones, considerando para los efectos de cargas laterales lo previsto para la zona sísmica en que se encuentra ubicada la construcción.

Se revisó que los elementos estructurales no excedieran los estados límite de falla y de servicio, así como la revisión por distorsión de los entrepisos de los marcos del sistema para combinaciones de cargas que involucraron efectos de sismo haciendo uso del software principal RFEM 5.26, los módulos adicionales RF-DYNAM Pro, RF-CONCRETE Surfaces, Members y Columns.

La empresa SAGA Diseño y construcción proporcionó los datos arquitectónicos y fue la encargada de la ejecución de la construcción.

Lugar Av. Melchor Ocampo, Tercera Sección, 
70117, El Espinal, Oaxaca
México
Diseño estructural


Especificaciones del proyecto

Datos del modelo

Número de nudos 108
Número de líneas 193
Número de barras 165
Número de superficies 54
Número de casos de carga 3
Número de combinaciones de resultados 4
Peso completo 328,610 t
Dimensiones (métricas) 16,608 x 10,208 x 9,629 m
Dimensiones (imperiales) 54.49 x 33.49 x 31.59 feet
Versión del programa 5.26.02

¿Tiene alguna pregunta?