2043x
001226
2021-12-17

Farmacia e ufficio medico a El Espinal, Oaxaca, Messico

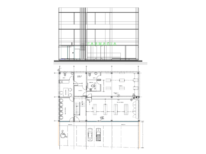
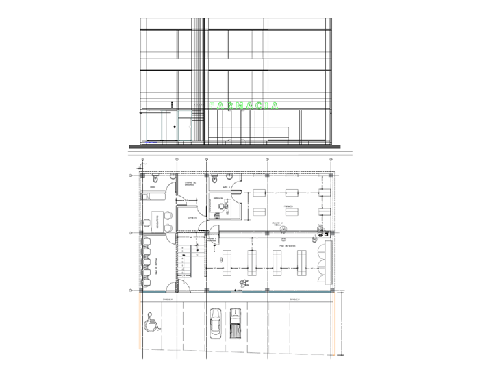
L'edificio si trova in via Melchor Ocampo, Tercera Sección in El Espinal, Oaxaca, Messico. Si tratta di un edificio con una farmacia al piano terra e studi medici ai piani superiori con pareti divisorie in materiale leggero.

La forma geometrica complessiva della pianta e dell'altezza è rettangolare.

Todas las plantas están comunicadas a través de una escalera metálica que fue agregada posteriormente una vez terminado el sistema principal.

Se usaron el concreto reforzado y mampostería como material estructural, las secciones transversales de los elementos de concreto reforzado son cuadrados para las columnas y rectangulares para las trabes, el espesor es uniforme para las losas de concreto reforzado y para los muros diafragma de mampostería.

El sistema estructural principal para resistir combinaciones de acciones está compuesto de marcos rígidos de trabes y columnas con o sin muros diafragmas desplantados en cimentación de zapatas continuas y contratrabes.

Se cuantificaron los tipos de cargas a considerar y sus combinaciones, considerando para los efectos de cargas laterales lo previsto para la zona sísmica en que se encuentra ubicada la construcción.

Se revisó que los elementos estructurales no excedieran los estados límite de falla y de servicio, así como la revisión por distorsión de los entrepisos de los marcos del sistema para combinaciones de cargas que involucraron efectos de sismo haciendo uso del software principal RFEM 5.26, los módulos adicionales RF-DYNAM Pro, RF-CONCRETE Surfaces, Members y Columns.

La società SAGA Diseño y Construcción ha fornito i dati architettonici ed è stata incaricata dell'esecuzione della costruzione.

Posizione Av. Melchor Ocampo, Tercera Sección,
70117, El Espinal, Oaxaca
Messico
Ingegneria strutturale


Specifiche del progetto

Dati modello

Numero di nodi 108
Numero di linee 193
Numero di aste 165
Numero di superfici 54
Numero di casi di carico 3
Nr. di combinazioni di risultati 4
Peso totale 328,610 t
Dimensioni (metriche) 16.608 x 10.208 x 9.629 m
Dimensioni (imperiali) 54.49 x 33.49 x 31.59 feet
Versione del programma 5.26.02

Hai delle domande?