394x
001333
28. Februar 2025

INAIL-Hauptsitz in Ancona, Italien

Der neue INAIL-Hauptsitz in Ancona ist das Ergebnis einer gründlichen Evaluierung für die Renovierung der ehemaligen IPSIA-Oberschule. Das auf Nachhaltigkeit ausgerichtete Projekt bietet eine Vielzahl von Leistungen, darunter Räume für Hydrotherapie und Rehabilitation sowie Büros für regionale Behörden. Das in BIM mit vorgefertigtem Stahlbeton entwickelte System sorgt für Effizienz und die Einhaltung der Bauzeitpläne.

Der neue INAIL-Hauptsitz in Ancona, Italien, ist das Ergebnis einer sorgfältigen technischen und wirtschaftlichen Bewertung, die auf eine grundlegende Renovierung der ehemaligen IPSIA-Oberschule abzielte. Bei dem Projekt steht die Nachhaltigkeit im Vordergrund, mit dem Ziel, eine funktionale, dienstleistungsorientierte Einrichtung für die Bürger zu schaffen. Das Gebäude zeichnet sich durch große Volumina aus, die den Stadtrand definieren und durch Steinverkleidungen und rhythmische Öffnungen hervorgehoben werden. Der Entwurf enthält regelmäßige Hohlräume und eine Farbwahl, die auf die öffentliche Funktion des Gebäudes verweist, während ein großer transparenter Eingang die Symmetrie unterbricht und neue Proportionen schafft.

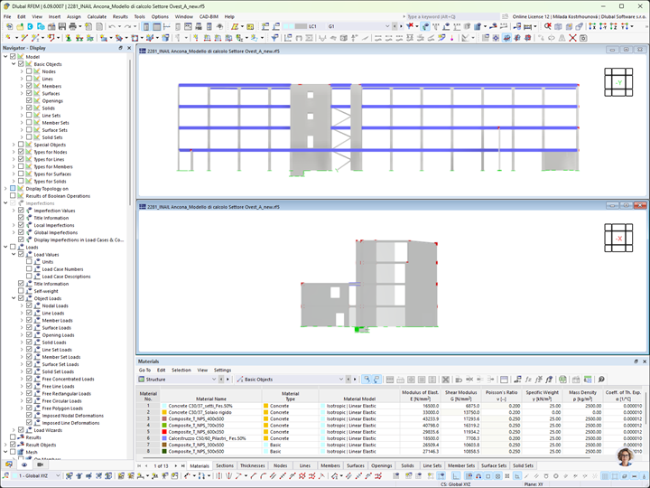
Das Gebäude erstreckt sich über 6.600 m² auf vier Obergeschossen und beherbergt verschiedene Funktionen wie Hydrotherapie-, Gesundheits- und Rehabilitationsräume sowie Büros für die Bezirksdirektion von Ancona und die Regionaldirektion der Marken. Das Gebäude wurde vollständig mit Building Information Modeling (BIM) entwickelt, um effiziente Bauzeiten und Leistungsanforderungen zu gewährleisten. Um diese Ziele zu erreichen, wurden vorgefertigte Lösungen aus vorgespanntem Stahlbeton verwendet. Darüber hinaus enthält das Gebäude fortschrittliche Technologien, die darauf abzielen, die Auswirkungen auf die Umwelt zu minimieren, einschließlich der Verbesserung der hydrologischen Durchlässigkeit des Gebiets. Elemente wie interne Parkplätze und begrünte Dächer tragen zur Widerstandskraft des Projekts gegen den Klimawandel bei und verbessern sowohl die ökologische als auch die funktionale Qualität der Umgebung.

Ort Via Curtatone, Ancona
Italien
Entwurf und statische Bemessung
Bauherr


Projektspezifikationen

Modelldaten

Anzahl Knoten 571
Anzahl Linien 976
Anzahl Stäbe 613
Anzahl Flächen 236
Anzahl Volumenkörper 0
Anzahl Lastfälle 15
Anzahl Lastkombinationen 127
Anzahl Ergebniskombinationen 5
Gesamtgewicht 1953,721 t
Abmessungen (metrisch) 71,050 x 16,176 x 23,935 m
Abmessungen (imperial) 233.1 x 53.07 x 78.53 feet

Haben Sie irgendwelche Fragen?