386x
001333
2025-02-28

Sede centrale INAIL ad Ancona, Italia

La nuova sede INAIL di Ancona è il risultato di un’approfondita valutazione per la ristrutturazione della ex scuola superiore IPSIA. Incentrato sulla sostenibilità, il progetto offre una varietà di servizi, tra cui idroterapia e spazi riabilitativi, oltre a uffici per le autorità regionali. Sviluppato in BIM con calcestruzzo armato prefabbricato, garantisce efficienza e rispetto dei tempi di costruzione.

La nuova sede INAIL ad Ancona, Italia, è il risultato di un'attenta valutazione tecnica ed economica mirata alla radicale ristrutturazione dell'ex edificio scolastico IPSIA. Il progetto dà priorità alla sostenibilità, con l'obiettivo di creare una struttura funzionale e orientata ai servizi per i cittadini. L'edificio presenta ampi volumi che definiscono il margine urbano, evidenziati da rivestimenti in pietra e aperture ritmiche. Il design incorpora vuoti regolari e scelte cromatiche che richiamano la funzione pubblica dell'edificio, mentre un ampio ingresso trasparente interrompe la simmetria per creare nuove proporzioni.

L'edificio si estende su 6.600 mq distribuiti su quattro livelli fuori terra, ospitando una varietà di funzioni come idroterapia, spazi sanitari e di riabilitazione, e uffici per la Direzione Territoriale di Ancona e la Direzione Regionale delle Marche. L'edificio è stato interamente sviluppato in Building Information Modeling (BIM) per garantire tempi di costruzione efficienti e requisiti prestazionali. Sono state utilizzate soluzioni prefabbricate precompresse in calcestruzzo armato per soddisfare questi obiettivi. Inoltre, l'edificio incorpora tecnologie avanzate volte a minimizzare l'impatto ambientale, migliorando la permeabilità idrologica dell'area. Elementi come parcheggi interni e tetti verdi contribuiscono alla resilienza del progetto contro il cambiamento climatico, migliorando sia la qualità ecologica che funzionale dell'ambiente circostante.

Posizione Via Curtatone, Ancona, Italia
Progettazione ed analisi strutturale
Committente


Specifiche del progetto

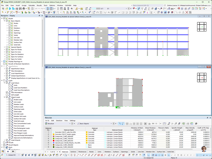
Dati modello

Numero di nodi 571
Numero di linee 976
Numero di aste 613
Numero di superfici 236
Numero di solidi 0
Numero di casi di carico 15
Nr. di combinazioni di carico 127
Nr. di combinazioni di risultati 5
Peso totale 1953,721 t
Dimensioni (metriche) 71.050 x 16.176 x 23.935 m
Dimensioni (imperiali) 233.1 x 53.07 x 78.53 feet

Hai delle domande?