394x
001333
2025-02-28

Sede da INAIL em Ancona, Itália

A nova sede da INAIL em Ancona é o resultado de uma avaliação cuidadosa para a renovação da antiga escola secundária IPSIA. Focado na sustentabilidade, o projeto oferece diversos serviços, incluindo espaços de hidroterapia e reabilitação, assim como escritórios para as autoridades regionais. Desenvolvido segundo o método BIM e com betão armado pré-fabricado, garante eficiência e cumpre os prazos de construção.

A nova sede da INAIL em Ancona, Itália, é o resultado de uma cuidadosa avaliação técnica e económica tendo em vista a renovação radical do antigo edifício da escola secundária IPSIA. O projeto priorizou a sustentabilidade com o objetivo de criar uma estrutura funcional e orientada para os serviços prestados aos cidadãos. O edifício caracteriza-se por grandes volumes que definem o contorno urbano, destacando-se pelos revestimentos de pedra e pelas aberturas rítmicas. O design incorpora vazios regulares e opções de cores que fazem referência à função pública do edifício, enquanto uma grande entrada transparente interrompe a simetria para criar novas proporções.

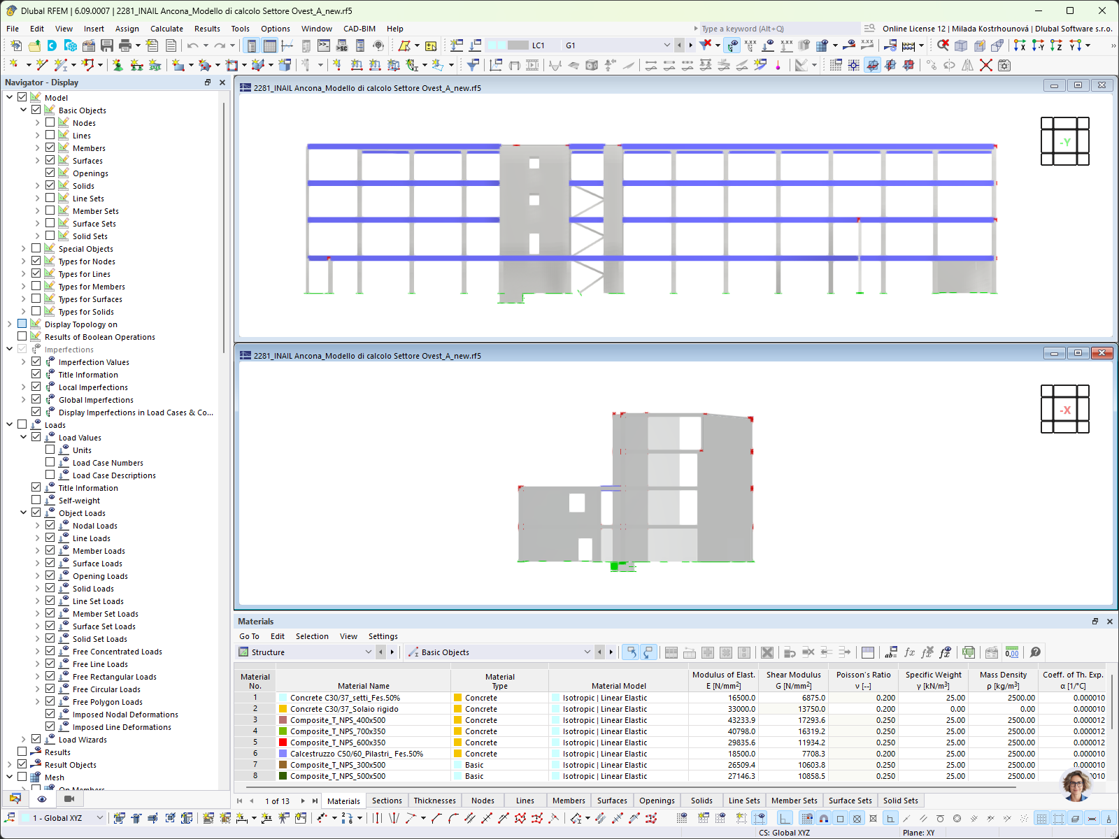
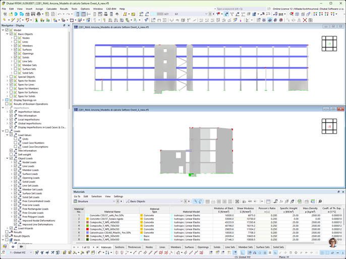
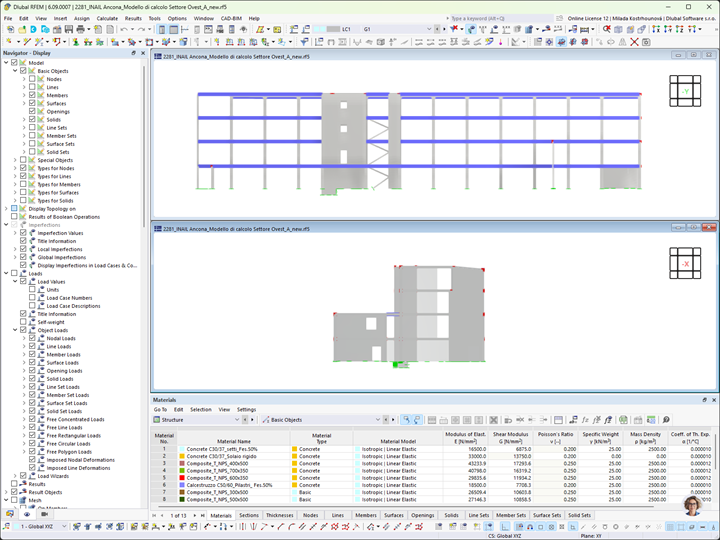
O edifício com uma área de 6600 m2 distribuídos por quatro pisos acima do solo alberga várias funções, tais como hidroterapia, espaços de saúde e reabilitação e os escritórios da Direção Territorial de Ancona e da Direção Regional de Marche. O edifício foi totalmente desenvolvido segundo o método de modelação da informação da construção (BIM) para assegurar prazos de construção e requisitos de desempenho eficientes. Para atingir estes objetivos, foram utilizadas soluções de betão armado pré-esforçado e pré-fabricado. Além disso, o edifício incorpora tecnologias avançadas destinadas a minimizar o impacto ambiental, incluindo a melhoria da permeabilidade hidrológica da área. Funções como parques de estacionamento interiores e coberturas verdes contribuem para a resiliência do projeto contra as alterações climáticas, melhorando a qualidade ecológica e funcional do ambiente envolvente.

Local Via Curtatone, Ancona
Itália
Dimensionamento e cálculo estrutural
Cliente


Especificações do projeto

Dados do modelo

Número de nós 571
Número de linhas 976
Número de barras 613
Número de superfícies 236
Número de sólidos 0
Número de casos de carga 15
Número de combinações de cargas 127
Número de combinações de resultados 5
Peso total 1953,721 t
Dimensões (métricas) 71,050 x 16,176 x 23,935 m
Dimensões (imperiais) 233.1 x 53.07 x 78.53 feet

Tem alguma pergunta?