394x
001333
28-02-2025

Sede central de INAIL en Ancona, Italia

La nueva sede de INAIL en Ancona es el resultado de una evaluación exhaustiva para la renovación del antiguo instituto IPSIA. Centrado en la sostenibilidad, el proyecto ofrece una variedad de servicios, que incluyen espacios para hidroterapia y rehabilitación, junto con oficinas para autoridades regionales. Desarrollado en BIM con hormigón armado prefabricado, garantiza eficiencia y cumple con los plazos de construcción.

La nueva sede de INAIL en Ancona, Italia, es el resultado de una cuidadosa evaluación técnica y económica destinada a la renovación radical del edificio del antiguo instituto IPSIA. El proyecto prioriza la sostenibilidad, con el objetivo de crear una estructura funcional y orientada al servicio para los ciudadanos. El edificio presenta grandes volúmenes que definen el borde urbano, realzados por un revestimiento de piedra y aberturas rítmicas. El diseño incorpora vacíos regulares y elecciones de color que hacen referencia a la función pública del edificio, mientras que una gran entrada transparente rompe la simetría para crear nuevas proporciones.

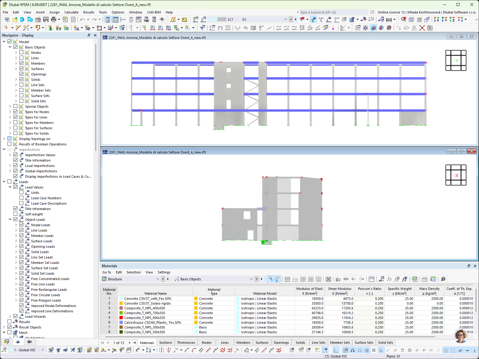
El edificio abarca 6,600 m² repartidos en cuatro niveles sobre el suelo, albergando una variedad de funciones como hidroterapia, espacios de salud y rehabilitación, y oficinas para la Dirección Territorial de Ancona y la Dirección Regional de Marcas. El edificio se desarrolló íntegramente en Modelado de Información de Construcción (BIM) para garantizar tiempos de construcción eficientes y requisitos de rendimiento. Se utilizaron soluciones prefabricadas de hormigón pretensado armado para cumplir con estos objetivos. Además, el edificio incorpora tecnologías avanzadas destinadas a minimizar el impacto ambiental, incluyendo la mejora de la permeabilidad hidrológica del área. Elementos como los aparcamientos internos y las azoteas ajardinadas contribuyen a la resiliencia del proyecto contra el cambio climático, mejorando tanto la calidad ecológica como funcional del entorno circundante.

Lugar Via Curtatone, Ancona
Italia
Diseño y análisis estructural
Inversor


Especificaciones del proyecto

Datos del modelo

Número de nudos 571
Número de líneas 976
Número de barras 613
Número de superficies 236
Número de sólidos 0
Número de casos de carga 15
Número de combinaciones de carga 127
Número de combinaciones de resultados 5
Peso completo 1953.721 t
Dimensiones (métricas) 71,050 x 16,176 x 23,935 m
Dimensiones (imperiales) 233.1 x 53.07 x 78.53 feet

¿Tiene alguna pregunta?