3264x
004598
2020-08-06

在 RF-STEEL Members 中显示应力点的应力

如何在RF-STEEL Members中显示应力点的应力?


回复:

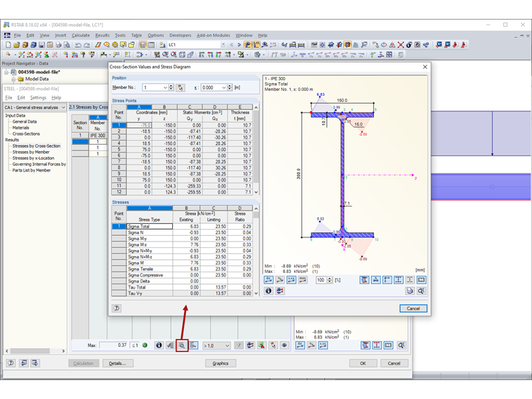
点击“扩展显示”按钮可以对每个应力点的结果进行目标评估。 Sie ruft den Dialog "Querschnittswerte und Spannungsverlauf" auf (Bild 01).

Im Abschnitt "Stelle" sind die aktuelle Stabnummer und Stelle x am Stab voreingestellt. Es können in der Liste auch andere Stäbe oder x-Stellen ausgewählt werden.

Der Abschnitt "Spannungspunkte" listet alle Spannungspunkte des Querschnitts auf. In den Spalten "Koordinaten" werden jeweils die Schwerpunktabstände y und z angegeben, in den Spalten "Statische Momente" die Flächenmomente 1. Grades Sy und Sz. Die Spalte "Dicke t" weist die Dicke des Querschnittsteils aus, die für die Ermittlung der Schubspannungen benötigt wird. Bei geschlossenen Querschnitten wird die Zellenfläche A* angegeben, die für die Ermittlung der Spannung infolge Torsionsmoment erforderlich ist.

Im Abschnitt "Spannungen" werden sämtliche Spannungen am aktuellen (im Abschnitt oben selektierten) Spannungspunkt angegeben. Auch in diesem Dialog ist es möglich, eine Spannungsart per Mausklick auszuwählen, um deren Verläufe in der Grafik anzuzeigen.


作者

von Bloh 女士为我们的客户提供技术支持,负责 SHAPE-THIN 软件的开发,以及钢结构和铝合金结构的开发。

下载


;