3264x
004598
6.8.2020

Zobrazení napětí v napěťových bodech v přídavném modulu RF-STEEL Members

Jak je možné zobrazit napětí v napěťových bodech v přídavném modulu RF-STEEL Members?


Odpověď:

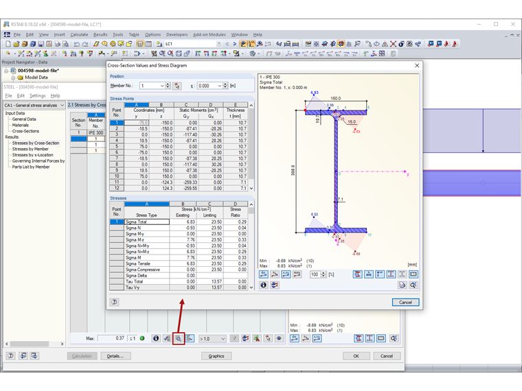
Tlačítko "Rozšířené zobrazení" umožňuje cílené vyhodnocení výsledků pro každý napěťový bod. Otevře se dialog "Průřezové charakteristiky a průběh napětí" (Obrázek 01).

V sekci "Řez" je nutné přednastavit aktuální číslo prutu a místo x na prutu. V seznamu je možné ovšem vybrat i jiné pruty nebo jiná místa x.

V sekci "Napěťové body" jsou uvedené všechny napěťové body průřezu. Ve sloupcích "Souřadnice" se zobrazí těžišťové vzdálenosti y a z a ve sloupcích "Statické momenty" se zobrazí plošné momenty Grades Sy und Sz. Ve sloupci "Tloušťka t" se uvádí tloušťka části průřezu, která je vyžadována pro stanovení smykových napětí. U uzavřených průřezů se uvede oblast buňky A*, která je nutná pro stanovení napětí od krouticího momentu.

V sekci "Napětí" se uvedou všechna napětí v aktuálním napěťovém bodě (je vybrán ve výše uvedené sekci). I v tomto dialogu je možné vybrat typ napětí kliknutím myší pro zobrazení jeho průběhu v grafice.


Autor

Ing. von Bloh zajišťuje technickou podporu zákazníkům a je zodpovědná za vývoj programu RSECTION a addonů pro ocelové a hliníkové konstrukce.

Stahování


;