3264x
004598
06.08.2020

Affichage des contraintes dans les points de contrainte dans RF-STEEL Members

Comment afficher les contraintes dans les points de contrainte dans RF-STEEL Members ?


Réponse:

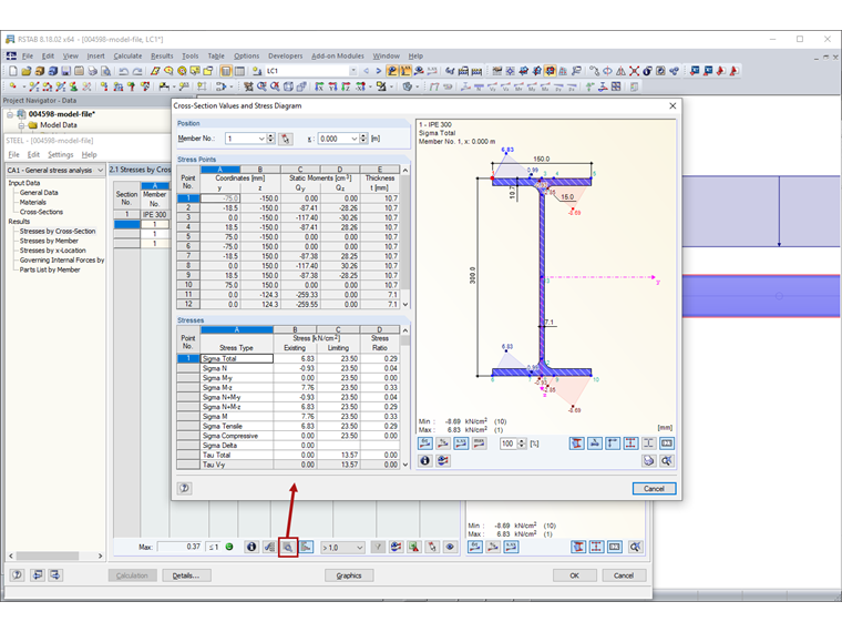
Le bouton « Affichage étendu » permet une évaluation ciblée des résultats pour chaque point de contrainte. La boîte de dialogue « Propriétés de la section et distribution des contraintes » s'ouvre (Figure 01).

Dans la section « Position », le numéro de barre actuel et l'emplacement x sur la barre sont prédéfinis. Vous pouvez également sélectionner d'autres barres ou positions x dans la liste.

La section « Points de contrainte » répertorie tous les points de contrainte de la section. Les colonnes « Coordonnées » affichent les distances au centre de gravité y et z et les colonnes « Moments statiques » affichent les moments surfaciques du premier Grades Sy und Sz. La colonne « Épaisseur t » affiche l'épaisseur de la section requise pour la détermination des contraintes de cisaillement. Dans le cas de sections fermées, l'aire de la cellule A* est spécifiée, ce qui est nécessaire pour la détermination de la contrainte due au moment de torsion.

La section « Contraintes » affiche toutes les contraintes au point de contrainte actuel (sélectionné dans la section ci-dessus). Dans cette boîte de dialogue, il est également possible de sélectionner un type de contrainte par un clic pour afficher les diagrammes de contrainte graphiquement.


Auteur

Mme von Bloh fournit une assistance technique à nos utilisateurs et est également responsable du développement du programme SHAPE-THIN et de la construction en acier et en aluminium.

Téléchargements


;