3264x
004598
2020-08-06

Wyświetlanie naprężeń w punktach naprężeniowych w RF‑STEEL Members

Jak wyświetlić naprężenia w punktach naprężeniowych w RF-STEEL Members?


Odpowiedź:

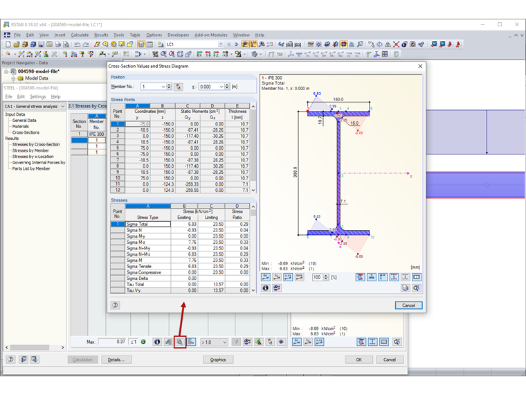
Przycisk "Rozszerzone wyświetlanie" umożliwia dokładną ocenę wyników dla każdego punktu naprężeniowego. Sie ruft den Dialog "Querschnittswerte und Spannungsverlauf" auf (Bild 01).

Im Abschnitt "Stelle" sind die aktuelle Stabnummer und Stelle x am Stab voreingestellt. Es können in der Liste auch andere Stäbe oder x-Stellen ausgewählt werden.

Der Abschnitt "Spannungspunkte" listet alle Spannungspunkte des Querschnitts auf. In den Spalten "Koordinaten" werden jeweils die Schwerpunktabstände y und z angegeben, in den Spalten "Statische Momente" die Flächenmomente 1. Grades Sy und Sz. Die Spalte "Dicke t" weist die Dicke des Querschnittsteils aus, die für die Ermittlung der Schubspannungen benötigt wird. Bei geschlossenen Querschnitten wird die Zellenfläche A* angegeben, die für die Ermittlung der Spannung infolge Torsionsmoment erforderlich ist.

Im Abschnitt "Spannungen" werden sämtliche Spannungen am aktuellen (im Abschnitt oben selektierten) Spannungspunkt angegeben. Auch in diesem Dialog ist es möglich, eine Spannungsart per Mausklick auszuwählen, um deren Verläufe in der Grafik anzuzeigen.


Autor

Pani von Bloh zapewnia naszym klientom wsparcie techniczne i jest odpowiedzialna za rozwój programu SHAPE‑THIN oraz konstrukcji stalowych i aluminiowych.

Pobrane


;