3911x
001489
2017-10-25

参数化截面设计

Das eigenständige Programm DUENQ ermittelt die Kennwerte und Spannungen für beliebige dünnwandige Querschnitte. Grafische Tools und Funktionen ermöglichen die Modellierung von komplexen Querschnittsformen. Neben der grafischen Eingabe ist auch eine tabellarische Eingabe möglich. Alternativ kann eine DXF-Datei eingelesen und als Basis für die weitere Modellierung genutzt werden. Ebenfalls kann jeder Querschnitt aus der Dlubal-Querschnittsbibliothek eingegeben und als Teil mit den vom Benutzer definierten Elementen kombiniert werden.

Häufig besteht die Erfordernis, Profilreihen abzubilden, also gleiche Profile mit unterschiedlichen Abmessungen. Parameter ermöglichen hier ein schnelles und einfaches Ändern der Querschnittsabmessungen. Die Parameter können in Formeln benutzt werden, um einen Zahlenwert zu ermitteln. Die Formeln werden mit dem Formeleditor bearbeitet. Wird in der Parameterliste ein Parameter geändert, werden die Ergebnisse aller Formeln, die diesen Parameter benutzen, angepasst.

参数列表

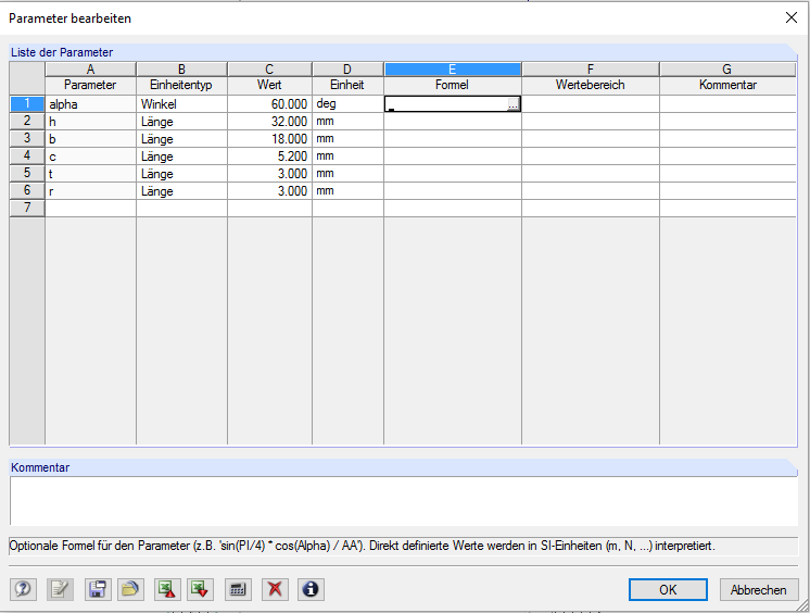
Die Parameter werden in der Parameterliste verwaltet. Diese wird über die Schaltfläche [Parameter bearbeiten] in der Symbolleiste einer Eingabetabelle oder im Formeleditor aufgerufen.


Der Name eines Parameters (Spalte A) darf keine Leerzeichen aufweisen und darf nur einmal vergeben werden. Über diesen Namen wird der Parameter in den Formeln angesprochen.

Ein Parameter ist von einem bestimmten Typ (Spalte B). Abständen sollte beispielsweise nur ein Parameter vom Typ Länge zugeordnet werden. Abhängig vom Typ kann dann eine betreffende Einheit (Spalte D) ausgewählt werden.

Der Wert des Parameters kann direkt in Spalte C eingegeben oder über eine Formel in Spalte E definiert werden. Neben allgemeinen mathematischen Operationen sind Wahrheitsprüfungen mit If sowie Max-/Min-Funktionen möglich. Mit dem $\$$-Bezug kann auf eine bestimmte Tabelle verwiesen werden. Zum Beispiel verwendet $\$$1.1(A1) den Wert der Zelle A1 von Tabelle 1.1. In Spalte F kann ein Wertebereich festgelegt werden, um die Werte der Spalte C zu steuern.

Neben der Eingabe der Parameter im Dialog "Parameter bearbeiten" ist auch ein Import über eine Excel-Datei möglich.

公式编辑器

Der Formeleditor verwaltet die Gleichungen der parametrisierten Eingabe. Er wird über die Schaltfläche in der Symbolleiste der Tabellen, einen Klick auf die gelbe oder rote Ecke in der Tabellenzelle oder die Funktionsschaltflächen hinter den Eingabefeldern in den Dialogen aufgerufen.

Die Formel kann im Eingabefeld "Formel" eingetragen werden. Sie kann aus konstanten Zahlenwerten, Parametern oder Funktionen bestehen. Die Inhalte anderer Zellen können in Formeln über Bezüge genutzt werden. Ein Bezug wird mit einem Ausrufezeichen eingeleitet, die Referenzzelle wird in Klammern gesetzt. Beispielsweise verwendet !(D2) den Wert der Zelle D2).

示例

Der in Bild 06 dargestellte Querschnitt soll in DUENQ 8 parametrisch eingegeben werden.

Es werden dazu die in Bild 07 dargestellten Parameter definiert.

Die Knotenkoordinaten können dann über Formeln definiert werden (siehe Bild 08).

Die verwendeten Formeln sind in Bild 09 dargestellt.

Des Weiteren wird die Elementdicke über den entsprechenden Parameter zugewiesen (Bild 10).

Durch Änderung der Parameter können nun einfach die Abmessungen des Querschnitts angepasst werden (Bild 11).


作者

von Bloh 女士为我们的客户提供技术支持,负责 SHAPE-THIN 软件的开发,以及钢结构和铝合金结构的开发。

链接
下载


;