3911x
001489
25.10.2017

Création d’une section quelconque ou PRS

Le programme autonome SHAPE-THIN détermine les valeurs caractéristiques et contraintes pour toute section à parois minces. Des outils et fonctions graphiques permettent la modélisations de formes de section complexes. En plus des entrées graphiques une entrée tabulaire est également possible. Un fichier DXF peut également être importé et servir de base à la modélisation. Chaque section de la bibliothèque de section Dlubal peut être entrée et combinée comme pièce avec les éléments définis par l’utilisateur.

Des séries de sections, soit la même section avec des cotations différentes, sont fréquemment requises. Les paramètres permettent de modifier rapidement et simplement les cotations de section. Vous pouvez les utiliser dans des formules pour déterminer une valeur numérique. Vous pouvez modifier les formules grâce à l’éditeur de formules. Ainsi, si un paramètre est modifié dans la liste des paramètres, les résultats de toutes les formules utilisant ce paramètre sont adaptés.

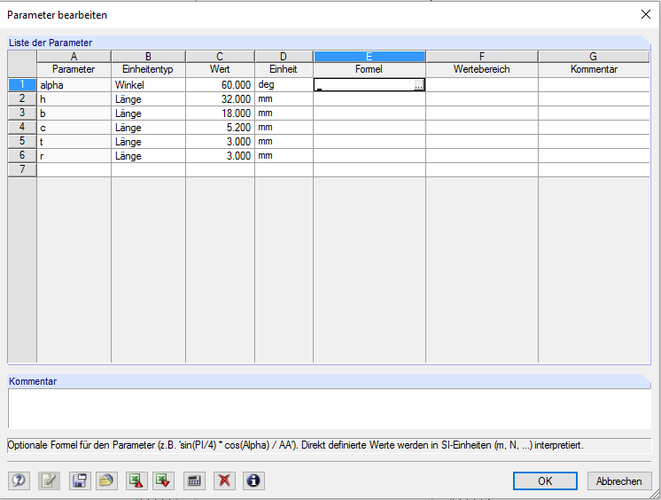
Liste des paramètres

Les paramètres sont gérés dans la liste des paramètres, accessible en cliquant sur [Modifier les paramètres] dans la barre d’outils du tableau d’entrée ou dans l’éditeur de formule.


Le nom du paramètre (Colonne A) ne doit pas être vide et ne peut être renseigné qu’une fois. Ce paramètre est utilisé comme référence pour le paramètre dans les formules.

Un paramètre est d’un certain type (Colonne B). Les espacements doivent avoir un seul paramètre de type longueur, par exemple. Selon le type, l’unité particulière correspondante (Colonne D) peut être choisie.

La valeur du paramètre peut être entrée directement dans la colonne C ou à l’aide d’une formule dans la colonne E. En plus des opérations mathématiques générales, les vérifications sont possibles avec les fonctions Max-/Min et If. La référence $\$$ peut renvoyer à un tableau spécifique. Par exemple $\$$1.1(A1) utilise la valeur A1 du tableau 1.1. Dans la colonne F, une gamme de valeur permettant de contrôler la valeur de la colonne C peut être définie.

En plus d’entrer les paramètres dans la boite de dialogue « Modifier le paramètre », ils peuvent également être importés depuis un fichier Excel.

Éditeur de formules

L’éditeur de formules gère les équations de l’entrée paramétrée. Vous pouvez l’ouvrir à l’aide d’un bouton dans la barre d’outils des tableaux, en cliquant sur le coin jaune ou rouge de la cellule du tableau ou sur les boutons de fonctions à côté des zones de texte dans la boite de dialogue.

Toute formule peut être entrée dans la zone de texte « Formule ». Elle peut inclure des valeurs numériques, des paramètres, ou des fonctions. Le contenu des autres cellules est utilisable dans des formules via des références. Une référence commence par un point d’exclamation, et la cellule de référence est entre parenthèses. Par exemple, la valeur de la cellule D2 est !(D2)

Exemple

La section de la figure 6 doit être entrée de manière paramétrique dans SHAPE-THIN 8.

Pour cela, les paramètres de la figure 7 sont définis.

Ensuite, les coordonnées de nœud peuvent être définies à l’aide de formules (voir la figure 8).

Les formules montrées dans la figure 9 sont utilisées.

À l’étape suivante, l’épaisseur de l’élément est assignée à l’aide des paramètres correspondants.

Modifier les paramètres permet d’ajuster les cotations de la section (figure 11).


Auteur

Mme von Bloh fournit une assistance technique à nos utilisateurs et est également responsable du développement du programme SHAPE-THIN et de la construction en acier et en aluminium.

Liens
Téléchargements


;