968x
005635
2024-11-28

Análise de reações de apoio em modelos de superfícies: métodos e desafios

Como é que posso analisar reações de apoio em apoios de linha de superfícies?
As secções resultantes são úteis aqui?


Resposta:

Para poder apoiar modelos de superfície, são utilizados, entre outros, apoios de linha. As reações de apoio são analisadas, por exemplo, para verificar a modelação ou para determinar as reações de apoio resultantes a fim de as transferir para outras estruturas. Se as condições de apoio forem definidas com não linearidades ou a linha de apoio for curva, é útil realizar uma análise com o software.

Em estruturas de barras, esta análise é simples. Na viga de vão único com consola apresentada abaixo, existem forças de corte à esquerda e à direita do apoio de nó que se somam à reação de apoio oposta. A soma das forças de corte e da reação de apoio é zero.

Observe o salto da força de corte e o apoio de nó. Tal distribuição da força de corte é intuitivamente aparente para estruturas de barras. Em estruturas de superfície, tal distribuição nem sempre pode ser representada através de elementos finitos. Neste caso, ocorrem imprecisões numéricas perto do apoio de nó ou de linha.
Primeiro, existe a opção de analisar as reações de apoio. Para tal, é utilizado o modelo estrutural apresentado acima, no qual a secção do tubo foi decomposta em superfícies e o apoio na consola foi modelado como um apoio de linha não linear.

Mostrar através da caixa de informação

A reação de apoio ao longo da linha de apoio é ativada através da apresentação dos valores pz das forças de apoio globais relacionadas com o comprimento. A soma das forças de apoio relacionadas com o comprimento é apresentada na caixa de informação e representa a reação de apoio resultante.

Mostrar através de diagramas de resultados

A reação de apoio ao longo da linha de apoio é ativada através da apresentação dos diagramas de resultados. A soma das forças de apoio relacionadas com o comprimento pode ser apresentada ativando o botão "Suavização constante".

Ambas as opções apresentadas acima resultam da reação de apoio esperada de Fz = 15 kN.

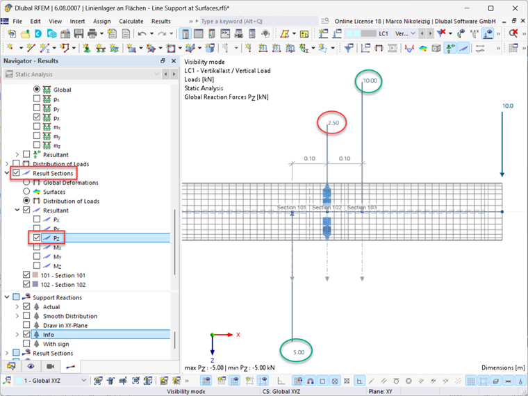
A seguir, tentaremos determinar a reação de apoio resultante através de secções resultantes. Para este propósito, serão geradas três secções resultantes no modelo de superfície da barra descrita acima. As secções 101 e 103 estão localizadas à esquerda e à direita da linha de apoio, enquanto a secção 102 está diretamente na linha de apoio. A apresentação da distribuição de carga resultante Pz foi ativada nas secções resultantes.

Como resultado, veja a Figura 05:
É possível observar que as secções à direita e à esquerda da linha de apoio mostram os valores esperados para as forças de corte de Vz = 5 kN ou Vz = 10 kN. A secção 102 diretamente na linha de apoio tem um valor inesperado de Vz = 2,5 kN.

Se deslocar a secção 102 alguns milímetros para a esquerda ou direita, ou seja, próximo da linha de apoio, o valor resultante será 5 kN ou 10 kN. A secção 102 diretamente na linha de apoio está localizada diretamente no local do salto da força de corte. Portanto, o valor da força de corte é indiferente nesta posição; realmente, não é possível apresentar um valor. Contudo, é apresentado um valor, qual a razão para isso?

Consulte a informação sobre as imprecisões numéricas no início deste artigo. Para esclarecer, é modelada uma barra resultante no eixo do modelo de superfície, a qual projeta os resultados da superfície da secção de tubo sobre si mesma.

Resultado:
Na posição do apoio de linha, onde ocorre o salto da força de corte na estrutura de barras, é determinada uma linha de força de corte com uma inclinação finita, mas não um salto da força de corte. Além disso, a linha da força de corte não interseta o eixo da barra diretamente na linha de apoio, mas sim ao lado, ver Figura 06.

A secção resultante diretamente no apoio de linha é, portanto, completamente inadequada para a análise das reações de apoio resultantes. As reações de apoio não são consideradas e em termos de esforços internos, esta secção fornece resultados sem sentido.


Autor

O Marco trata das questões técnicas relacionadas com o software no apoio ao cliente. Familiariza-se com facilidade com novos temas e desenvolve soluções estruturadas.



;