968x
005635
28-11-2024

Análisis de reacciones en apoyos en modelos de superficies: métodos y desafíos

¿Cómo puedo analizar las reacciones en los apoyos en línea de superficies? ¿Son útiles las secciones de resultados?


Respuesta:

Para poder apoyar modelos de superficies, se utilizan, entre otras cosas, apoyos lineales. El análisis de las reacciones en los apoyos sirve, por ejemplo, para verificar el modelado o para determinar las reacciones en los apoyos resultantes, de modo que puedan transferirse a otras estructuras. Si las condiciones de apoyo se definen con no linealidades o si la línea de apoyo está curvada, es útil realizar un análisis mediante el software.

En estructuras de barras, este análisis es sencillo. En la viga de un solo vano con voladizo que se muestra a continuación, hay fuerzas cortantes a la izquierda y a la derecha del apoyo en nudo, que en su suma resultan en una reacción de apoyo opuesta. La suma de las fuerzas cortantes y la reacción en el apoyo es cero.

Preste atención al salto de cortante y al apoyo puntual. En las estructuras de barras, tal distribución de cortante es intuitivamente comprensible. En las estructuras de superficies, tal distribución no siempre puede representarse mediante elementos finitos. Cerca del apoyo puntual o lineal surgen entonces inexactitudes numéricas.
Primero se tratará la posibilidad de analizar las reacciones de apoyo. Para ello, se utiliza el modelo estático de arriba, donde la sección del tubo se ha dividido en superficies y el apoyo en el voladizo se ha modelado como un apoyo en línea no lineal.

Visualización a través de el cuadro de información

La reacción de apoyo a lo largo de la línea de apoyo se muestra mediante la visualización de los valores de las fuerzas de apoyo específicas de longitud pz en global. La suma de las fuerzas de apoyo específicas de longitud se muestra en el cuadro de información y representa la reacción de apoyo resultante.

Visualización a través de distribuciones de resultados

La reacción en el apoyo a lo largo de la línea de apoyo se muestra mediante la visualización de las distribuciones de resultados. La suma de las fuerzas de apoyo específicas de longitud se muestra activando el botón "Suavizado constante".

Ambas posibilidades mostradas anteriormente proporcionan la reacción en el apoyo esperada de Fz = 15 kN.

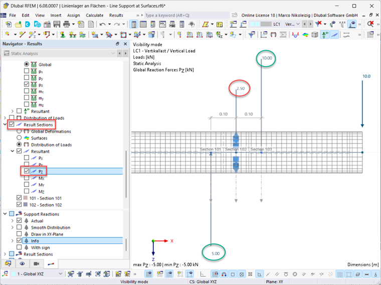
A continuación, se intentará determinar la reacción de apoyo resultante mediante secciones de resultados. Para ello, se generan tres en el modelo de superficies de la barra explicado anteriormente. Las secciones de resultados 101 y 103 están situadas a la izquierda y a la derecha de la línea de apoyo, mientras que la sección 102 se colocó directamente en la línea de apoyo. En las secciones de resultados, se activó la visualización de la distribución de cargas resultante Pz.

Resultado, ver imagen 5:
Se observa que las secciones de resultados a la derecha y a la izquierda de la línea de apoyo muestran los valores esperados para las fuerzas cortantes de Vz = 5 kN y Vz = 10 kN, respectivamente. La sección de resultados 102 directamente en la línea de apoyo muestra un valor inesperado de Vz = 2,5 kN.

Si desplazáramos la sección de resultados 102 unos pocos milímetros hacia la izquierda o hacia la derecha, es decir, al lado de la línea de apoyo, entonces aparecería un valor resultante de 5 kN o 10 kN. La 102 directamente en la línea de apoyo se encuentra justo en el punto del salto de cortante. Por lo tanto, no es posible mostrar un valor para el cortante en este punto. Sin embargo, ¿por qué se muestra un valor?

Aquí se hace referencia a las consideraciones iniciales sobre inexactitudes numéricas. Para ilustrarlo, se modelará una barra de resultados en el eje del modelo de superficies, que proyecta sobre sí misma los resultados de la sección del tubo.

Resultado:
En el punto del apoyo lineal, donde en la estructura de barras ocurre el salto de cortante, se genera una línea de cortante con una inclinación de tamaño finito, pero no un salto de cortante. Además, la línea de cortante no corta el eje de la barra directamente en la línea de apoyo, sino al lado, ver imagen 6.

Por lo tanto, la sección de resultados directamente en el apoyo lineal es completamente inadecuada para analizar las reacciones en los apoyos resultantes. Las reacciones en los apoyos no se registran y, en términos de esfuerzos internos, esta sección ofrece resultados sin sentido.


Autor

Marco gestiona en Soporte técnico consultas técnicas sobre el software. Se familiariza de forma fiable con nuevos temas y desarrolla enfoques de solución estructurados.



;