968x
005635
28.11.2024

Analyse des réactions d’appui pour les modèles surfaciques : Méthodes et défis

Comment analyser les réactions d’appui des appuis linéaires des surfaces ? Les sections résultantes sont-elles utiles ?


Réponse:

Pour pouvoir supporter des modèles surfaciques, des appuis linéaires sont utilisés, entre autres. L’analyse des réactions d'appui sert, par exemple, à contrôler la modélisation ou à déterminer les réactions d’appui résultantes, afin de les transférer à d’autres structures porteuses. Si les conditions d’appui sont définies avec des non-linéarités ou que la ligne d’appui est courbée, une analyse à l’aide du logiciel est utile.

Dans une structure filaire, cette analyse est simple. Dans la poutre à travée simple en porte-à-faux illustrée ci-dessous, il existe des efforts tranchants à gauche et à droite de l’appui nodal qui, dans leur somme, donnent la réaction d’appui opposée. La somme des forces transversales et de la réaction d’appui est nulle.

Notez le saut d’effort tranchant ainsi que l’appui nodal. Pour les structures filaires, une telle distribution de force transversale est intuitive. Dans les structures de surface, une telle distribution ne peut pas toujours être représentée à l’aide d’éléments finis. Des imprécisions numériques apparaissent alors près de l’appui nodal ou linéique.
D’abord, nous aborderons la possibilité d’analyser les réactions d’appui. Pour cela, le modèle de structure présenté ci-dessus est utilisé, la section du tube est décomposée en surfaces et l’appui sur le porte-à-faux a été modélisé comme un appui linéique non-linéaire.

Affichage par infobulle

La réaction d’appui le long de la ligne d’appui est rendue possible en affichant les valeurs pz des efforts d’appui globaux par longueur. La somme des efforts d’appui par longueur est affichée dans l’infobulle et représente la réaction d’appui résultante.

Affichage par diagramme de résultats

La réaction d’appui le long de la ligne d’appui est rendue possible via l'affichage des diagrammes de résultats. La somme des efforts d’appui par longueur est affichée en activant le bouton « Lissage uniforme ».

Les deux options présentées ci-dessus indiquent la réaction d’appui attendue de Fz = 15 kN.

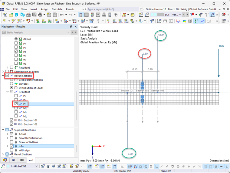
Ensuite, nous tenterons de déterminer la réaction d’appui résultante à l’aide de coupes de résultats. Pour cela, trois coupes de résultats sont générées sur le modèle de surface de la barre décrit ci-dessus. Les sections 101 et 103 se trouvent à gauche et à droite de la ligne d’appui, tandis que la section 102 est placée directement sur la ligne d’appui. Sur les coupes de résultats, l’affichage de la répartition des charges résultantes Pz a été activé.

Résultat, voir image 5:
On constate que les coupes à droite et à gauche de la ligne d'appui indiquent les valeurs attendues pour les efforts tranchants de Vz = 5 kN et Vz = 10 kN respectivement. La section 102 directement sur la ligne d’appui présente une valeur inattendue de Vz = 2,5 kN.

Si la coupe 102 était décalée de quelques millimètres vers la gauche ou la droite, donc à côté de la ligne d'appui, alors la valeur résultante serait soit la valeur 5 kN soit 10 kN. La section 102 directement sur la ligne d’appui se trouve directement sur le point du saut d’effort tranchant. C'est pourquoi la valeur de la force transversale à cet endroit est indifférente, donc l’affichage d’une valeur ne devrait pas être possible. Pourtant, une valeur est affichée. Pourquoi ?

Cela renvoie aux considérations faites précédemment sur les imprécisions numériques. Pour clarification, une barre de résultats est modélisée sur l'axe du modèle de surface, qui projette sur lui-même les résultats de surface de la section du tube.

Résultat :
À l'endroit de l'appui linéaire, où dans la structure à barres le saut de cisaillement se produit, une ligne de cisaillement avec un taux d'augmentation fini est déterminée, mais pas de saut de cisaillement. De plus, la ligne de cisaillement ne coupe pas l'axe de la barre directement sur la ligne d'appui, mais à côté, voir image 6.

La section de résultats directement sur l'appui linéaire est donc complètement inappropriée pour l'analyse des réactions d'appui résultantes. Les réactions d'appui ne sont pas capturées et, en ce qui concerne les valeurs de section, cette section fournit des résultats absurdes.


Auteur

Marco traite des demandes techniques concernant le logiciel au support client. Il se familiarise de manière fiable avec de nouveaux sujets et développe des approches de solution structurées.



;