968x
005635
28. November 2024

Analyse von Lagerreaktionen bei Flächenmodellen: Methoden und Herausforderungen

Wie kann man die Lagerreaktionen an Linienlagern von Flächen analysieren?
Sind Ergebnisschnitte dabei hilfreich?


Antwort:

Um Flächenmodelle lagern zu können, werden unter anderem Linienlager eingesetzt. Die Analyse der Lagerreaktionen dient z.B. zur Kontrolle der Modellierung oder zur Ermittlung von resultierenden Lagerreaktionen, um diese in andere Tragwerke weiterleiten zu können. Wenn die Lagerbedingungen mit Nichtlinearitäten definiert sind oder die Lagerlinie gekrümmt ist, ist eine Analyse mithilfe der Software hilfreich.

Am Stabtragwerk ist diese Analyse einfach. Im unten dargestellten Einfeldträger mit Kragarm gibt es links und rechts vom Knotenlager Querkräfte, die in ihrer Summe die entgegengesetzte Lagerreaktion ergeben. Die Summe aus Querkräften und Lagerreaktion ist Null.

Beachten Sie den Querkraftsprung sowie die Punktlagerung. An Stabtragwerken ist ein solcher Querkraftverlauf intuitiv einleuchtend.
An Flächentragwerken kann ein solcher Verlauf mithilfe finiter Elemente nicht immer abgebildet werden. In der Nähe des Punkt- oder Linienlagers entstehen dann numerische Ungenauigkeiten.
Zunächst wird auf die Analysemöglichkeit der Lagerreaktionen eingegangen. Hierzu wird das statische Modell von oben verwendet, wobei der Rohrquerschnitt in Flächen zerlegt wurde und das Lager am Kragarm als nichtlineares Linienlager modelliert wurde.

Anzeige über Infobox

Die Lagerreaktion entlang der Lagerlinie wird über die Anzeige der globalen längenbezogenen Lagerkräfte pz-Werte ermöglicht. Die Summe der längenbezogenen Lagerkräfte wird in der Infobox angezeigt und repräsentiert die resultierende Lagerreaktion.

Anzeige über Ergebnisverläufe

Die Lagerreaktion entlang der Lagerlinie wird über die Anzeige der Ergebnisverläufe ermöglicht. Die Summe der längenbezogenen Lagerkräfte wird angezeigt, indem man die Schaltfläche "Konstante Glättung" aktiviert.


Beide oben gezeigten Möglichkeiten weisen die erwartete Lagerreaktion von Fz = 15 kN aus.

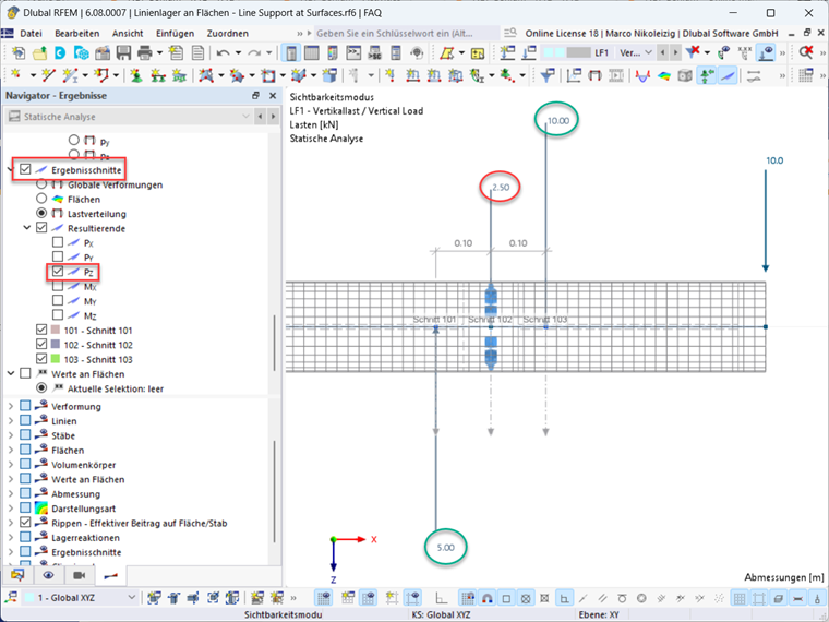
Im Folgenden wird der Versuch unternommen, die resultierende Lagerreaktion mithilfe von Ergebnisschnitten zu ermitteln. Dazu werden am oben erläuterten Flächenmodell des Stabes drei Ergebnisschnitte erzeugt. Die Schnitte 101 und 103 liegen links und rechts der Lagerlinie, während der Schnitt 102 direkt auf der Lagerlinie platziert wurde. An den Ergebnisschnitten wurde die Anzeige der resultierenden Lastverteilung Pz aktiviert.

Ergebnis, siehe Bild 5:
Man erkennt, dass die Schnitte rechts und links der Lagerlinie die erwarteten Werte für die Querkräfte von Vz = 5 kN bzw. Vz = 10 kN anzeigen. Der Schnitt 102 direkt auf der Lagerlinie weist einen unerwarteten Wert von Vz = 2,5 kN aus.

Würde man den Schnitt 102 um wenige Millimeter nach links oder rechts verschieben, also neben die Lagerlinie, dann würde als Resultierende entweder der Wert 5 kN oder 10 kN erscheinen. Der Schnitt 102 direkt auf der Lagerlinie befindet sich direkt auf der Stelle des Querkraftsprungs. Deshalb ist der Wert der Querkraft an dieser Stelle indifferent, die Anzeige eines Wertes also eigentlich nicht möglich. Trotzdem wird ein Wert angezeigt, warum?

Hier wird auf die eingangs gemachten Betrachtungen zu numerische Ungenauigkeiten verwiesen. Zur Verdeutlichung wird in die Achse des Flächenmodells ein Ergebnisstab modelliert, der auf sich die Flächenergebnisse des Rohrquerschnittes projiziert.

Ergebnis:
An der Stelle des Linienlagers, an der am Stabtragwerk der Querkraftsprung auftritt, wird eine Querkraftlinie mit einem endlich großen Anstieg ermittelt, aber kein Querkraftsprung. Weiterhin schneidet die Querkraftlinie die Stabachse nicht direkt an der Lagerlinie, sondern daneben, siehe Bild 6.

Der Ergebnisschnitt direkt im Linienlager ist also zur Analyse der resultierenden Lagerreaktionen komplett ungeeignet. Lagerreaktionen werden nicht erfasst und bezüglich der Schnittgrößen liefert dieser Schnitt unsinnige Ergebnisse.


Autor

Marco bearbeitet im Customer Support technische Anfragen rund um die Software. Er arbeitet sich zuverlässig in neue Themen ein und entwickelt strukturierte Lösungswege.



;