968x
005635
2024-11-28

Analisi delle reazioni vincolari nei modelli di superficie: metodi e sfide

Come analizzare le reazioni vincolari esterne lungo le linee di vincolo su modelli di superficie? Le sezioni risultanti sono utili?


Risposta:

Per poter supportare i modelli di superfici, tra gli altri vengono utilizzati dei vincoli lineari. L'analisi delle reazioni vincolari viene utilizzata, ad esempio, per controllare la modellazione o per determinare le reazioni dei vincoli risultanti, in modo da poterle trasferire ad altre strutture. Quando le condizioni di supporto sono definite con non linearità o la linea di supporto è curva, un'analisi tramite il software è utile.

Nella struttura trave, questa analisi è semplice. Nella trave a campata unica con mensola rappresentata sotto, esistono forze di taglio a sinistra e a destra del supporto nodale che, nella loro somma, risultano nella reazione del supporto opposta. La somma delle forze di taglio e della reazione del supporto è zero.

Si noti il salto di taglio e il vincolo esterno dei nodi. Nelle strutture trave un tale andamento di taglio è intuitivamente evidente.
Nelle strutture di superfici, un tale andamento non può sempre essere rappresentato con elementi finiti. Nelle vicinanze della reazione vincolare esterna o la linea di vincolo si verificano imprecisioni numeriche.
Per prima cosa, viene trattata la possibilità di analisi delle reazioni dei supporti. A tal fine, si utilizza il modello statico di cui sopra, in cui la sezione trasversale del tubo è stata scomposta in superfici e il supporto sulla mensola è stato modellato come un supporto lineare non lineare.

Visualizzazione tramite la finestra di dialogo

La reazione vincolare lungo la linea di vincolo è resa possibile dalla visualizzazione delle forze di vincolo globali riferite alla lunghezza pz. La somma delle forze vincolari riferite alla lunghezza viene mostrata nella finestra di dialogo e rappresenta la reazione vincolare esterna risultante.

Visualizzazione tramite andamenti dei risultati

La reazione del supporto lungo la linea di supporto è resa possibile dalla visualizzazione degli andamenti dei risultati. La somma delle forze di supporto riferite alla lunghezza viene visualizzata attivando il pulsante "Smussamento costante".

Entrambe le possibilità sopra mostrate indicano la reazione vincolare prevista di Fz = 15 kN.

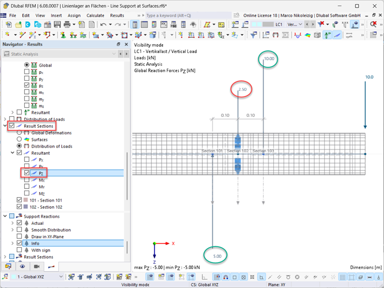
Di seguito, si tenta di determinare la reazione vincolare risultante utilizzando le sezioni dei risultati. A tal fine, vengono create tre sezioni dei risultati sul modello di superfici del bastone spiegato sopra. Le sezioni 101 e 103 si trovano a sinistra e a destra della linea di vincolo, mentre la sezione 102 è posta direttamente su di essa. Alla sezione dei risultati è stata attivata la visualizzazione della distribuzione del carico risultante Pz.

Risultato, vedi Figura 5:
Si può notare che le sezioni a destra e a sinistra della linea di vincolo mostrano i valori attesi delle forze di taglio di Vz = 5 kN e Vz = 10 kN rispettivamente. La sezione 102 direttamente sulla linea di vincolo mostra un valore inatteso di Vz = 2,5 kN.

Se si spostasse la sezione 102 di pochi millimetri a sinistra o a destra, quindi accanto alla linea di supporto, apparirebbe come risultante il valore 5 kN o 10 kN. La sezione 102 direttamente sulla linea di vincolo si trova direttamente sul punto del salto di taglio. Pertanto, il valore del taglio in questo punto è indifferente, quindi la visualizzazione di un valore non è effettivamente possibile. Perché tuttavia viene visualizzato un valore?

Si fa qui riferimento alle considerazioni fatte all'inizio sulle imprecisioni numeriche. Per chiarire, una trave risultante viene modellata sull'asse del modello di superfici, che proietta su di sé i risultati della sezione trasversale del tubo.

Risultato:
Nel punto del vincolo lineare, dove nella struttura reticolare si verifica il salto di taglio, si determina una linea di taglio con un gradiente di ampiezza finita, ma non un salto di taglio. Inoltre, la linea di taglio non incrocia l'asse della trave direttamente sulla linea di supporto, ma accanto, vedere Figura 6.

La sezione dei risultati direttamente nel vincolo lineare è quindi completamente inadatta per analizzare le reazioni del vincoli risultanti. Le reazioni dei vincoli non vengono rilevate e per quanto riguarda le grandezze di taglio, questa sezione fornisce risultati insensati.


Autore

Marco si occupa nel Customer Support delle richieste tecniche relative al software. Si approfondisce con affidabilità su nuovi temi e sviluppa percorsi di soluzione strutturati.



;