968x
005635
2024-11-28

Analiza reakcji podporowych w modelach powierzchniowych: Metody i wyzwania

Jak można analizować reakcje podporowe na podporach liniowych powierzchni?
Czy przekroje wynikowe mogą być pomocne?


Odpowiedź:

Aby zapewnić podparcie w modelach powierzchniowych, stosuje się między innymi podpory liniowe. Analiza reakcji podparcia służy na przykład do kontroli modelowania lub do określenia składowych reakcji podporowych, aby móc je przekazać do innych konstrukcji nośnych. Gdy warunki podparcia zdefiniowane są z nieliniowościami lub linia podporowa jest zakrzywiona, analiza za pomocą oprogramowania jest pomocna.

W przypadku konstrukcji szkieletowych analiza taka jest prosta. W przedstawionej poniżej jednoelementowej belce z wysięgnikiem, po lewej i prawej stronie przegubu znajdują się siły poprzeczne, które w sumie równoważą przeciwną reakcję podporową. Suma sił poprzecznych i reakcji podporowych wynosi zero.

Zwróć uwagę na skok sił tnących oraz punktowe podparcie. W konstrukcjach szkieletowych taki rozkład sił poprzecznych jest intuicyjnie zrozumiały.
W konstrukcjach powierzchniowych taki rozkład nie zawsze można odwzorować za pomocą elementów skończonych. W pobliżu punktowego lub liniowego podparcia mogą pojawić się numeryczne niedokładności.
Na początek omówimy możliwość analizy reakcji podporowych. W tym celu wykorzystano model statyczny z góry, gdzie przekrój rury został rozłożony na powierzchnie, a podpora na wysięgniku została zamodelowana jako nieliniowe podparcie liniowe.

Wyświetlanie za pomocą infoboxa

Reakcja podpory wzdłuż linii podparcia jest wizualizowana za pomocą wyświetlania globalnych wartości reakcji na jednostkę długości pz. Suma sił podparcia na jednostkę długości jest wyświetlana w infoboxie i reprezentuje wynikowe reakcje podpory.

Wyświetlanie za pomocą wykresów wyników

Reakcja podporowa wzdłuż linii podparcia jest włączona za pomocą wyświetlania przebiegów wyników. Suma sił podparcia na jednostkę długości jest wyświetlana, gdy aktywuje się przycisk "Stałe wygładzanie".

Obie powyższe możliwości pokazują oczekiwaną reakcję podporową Fz = 15 kN.

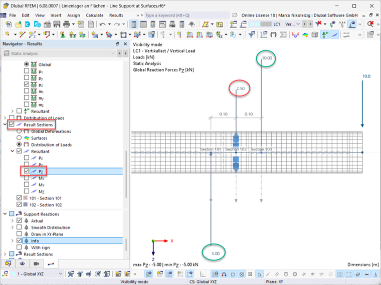
W dalszej części spróbujemy określić wynikowe reakcje podporowe za pomocą przekrojów wynikowych. W tym celu na opisanym wyżej modelu powierzchniowym pręta utworzono trzy przekroje wynikowe. Przekroje 101 i 103 znajdują się po lewej i prawej stronie linii podparcia, podczas gdy przekrój 102 został umieszczony bezpośrednio na linii podparcia. Na przekrojach wynikowych aktywowano wyświetlanie rozkładu sił Pz.

Wynik, patrz obraz 5:
Widać, że przekroje po prawej i lewej stronie linii podparcia wskazują oczekiwane wartości sił poprzecznych Vz = 5 kN i Vz = 10 kN. Przekrój 102 bezpośrednio na linii podparcia pokazuje nieoczekiwaną wartość Vz = 2,5 kN.

Gdyby przesunąć przekrój 102 o kilka milimetrów w lewo lub w prawo, czyli obok linii podparcia, to jako wynik pojawiłaby się wartość 5 kN lub 10 kN. Przekrój 102 bezpośrednio na linii podparcia znajduje się dokładnie na miejscu skoku siły poprzecznej. Dlatego wartość siły poprzecznej w tym miejscu jest nieokreślona, co oznacza, że wyświetlanie wartości jest właściwie niemożliwe. Mimo to wartość jest wyświetlana, dlaczego?

Nawiązujemy tutaj do wcześniej wspomnianych rozważań dotyczących numerycznych niedokładności. Dla uwidocznienia modelowana jest oś pręta wynikowego w osi modelu powierzchniowego, na której projektowane są wyniki powierzchniowe przekroju rury.

Wynik:
W miejscu linii podparcia, gdzie w konstrukcji szkieletowej występuje skok siły poprzecznej, zostaje wyznaczona linia siły poprzecznej z dużym, ale skończonym wzrostem, a nie skok siły poprzecznej. Co więcej, linia siły poprzecznej nie przecina osi pręta bezpośrednio na linii podparcia, lecz obok niej, patrz obraz 6.

Przekrój wynikowy bezpośrednio w podporze liniowej jest więc całkowicie nieodpowiedni do analizy wynikowych reakcji podpór. Reakcje podpór nie są rejestrowane, a odnośnie wielkości przekrojowych, ten przekrój daje bezsensowne wyniki.


Autor

Marco zajmuje się w technicznymi zapytaniami dotyczącymi oprogramowania. Zawsze dokładnie zapoznaje się z nowymi zagadnieniami i opracowuje przemyślane rozwiązania.



;