968x
005635
28.11.2024

Analýza podporových reakcí v modelech ploch: Metody a výzvy

Jak mohu analyzovat podpororvé reakce na liniové podpěry ploch?
Jsou výsledkové řezy užitečné?


Odpověď:

Pro podporu plošných modelů se používají mimo jiné liniové podpory. Reakce podpěr se analyzují například za účelem kontroly modelování nebo pro určení výsledkových reakcí podpěr, které se přenesou do dalších konstrukcí. Pokud jsou podmínky podpěr definovány s nelinearitami nebo je linie podpěry zakřivená, je vhodné provést analýzu pomocí softwaru.

Tato analýza na nosníkových konstrukcích je jednoduchá. V níže zobrazeném prostém nosníku s jedním polem působí vlevo a vpravo od uzlové podpory smykové síly, které se sčítají a vytvářejí opačnou podpororvá reakci. Součet smykových sil a podpororvé reakce je nulový.

Všimněte si skoku smykových sil a v uzlové podpoře. Takové rozložení smykových sil je u nosníků intuitivně zřejmé.
Na plošných konstrukcích nelze takové rozložení vždy reprezentovat pomocí konečných prvků. V blízkosti uzlové nebo liniové podpory pak dochází k numerickým nepřesnostem.
Nejprve je možné analyzovat reakce podpory. K tomu se použije konstrukční model z výše uvedeného příkladu, kde byl trubkový průřez rozložen na plochy a podpora na konzole byla modelována jako nelineární liniová podpora.

Zobrazení pomocí informačního pole

Podpororvá reakce po linii podpory se aktivuje zobrazením globálních hodnot podporových sil pz závislých na délce. Součet podporových sil závislých na délce se zobrazí v informačním poli a představuje výslednou podpororvá reakci.

Zobrazení pomocí výsledkových diagramů

Podpororvá reakce po linii podpory se aktivuje zobrazením výsledkových diagramů. Součet podporových sil závislých na délce lze zobrazit aktivací tlačítka „Konstantní vyhlazení“.

Obě výše uvedené možnosti vedou k očekávané podporové reakci Fz = 15 kN.

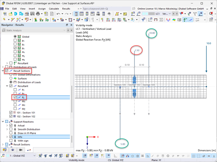
V následujícím textu se pokusíme určit výslednou reakci podpory pomocí výsledných řezů. Za tímto účelem budou na povrchovém modelu prutu popsaném výše vygenerovány tři výsledné řezy. Řezy 101 a 103 jsou umístěny vlevo a vpravo od linie podpory, zatímco řez 102 je umístěn přímo na linii podpory. Zobrazení výsledného průběhu zatížení Pz bylo aktivováno na výsledných řezech.

Výsledek je zobrazen na obrázku 05:
Na řezech vpravo a vlevo od podpěrné linie jsou zobrazeny očekávané hodnoty smykových sil Vz = 5 kN a Vz = 10 kN. Řez 102 přímo na podpěrné linii má neočekávanou hodnotu Vz = 2,5 kN.

Pokud posunete řez 102 o několik milimetrů doleva nebo doprava (tj. vedle podpěrné linie), výsledná hodnota by byla buď 5 kN, nebo 10 kN. Řez 102 přímo na podpěrné linii se nachází přímo v místě skoku smykové síly. Proto je hodnota smykové síly v tomto místě lhostejná; ve skutečnosti není možné zobrazit žádnou hodnotu. Přesto se hodnota zobrazuje, proč?

Viz informace o numerických nepřesnostech na začátku tohoto článku. Pro objasnění je do osy modelu plochy modelován výsledkový prut, který promítá výsledky plochy průřezu trubky na sebe.

Výsledek
V místě liniové podpory, kde dochází ke skoku smykové síly na konstrukci prutu, je určena linie smykové síly s konečným sklonem, ale žádný skok smykové síly. Linka smykové síly navíc neprotíná osu prutu přímo na podepřené linii, ale vedle ní, viz obrázek 6.

Výsledkový řez přímo v liniové podpoře je proto pro analýzu výsledných podporových reakcí zcela nevhodný. Podpororvé reakce nejsou zohledněny a z hlediska vnitřních sil poskytuje tento řez nesmyslné výsledky.


Autor

Marco vyřizuje v Customer Support technické dotazy týkající se softwaru. Spolehlivě se zapracovává do nových témat a vyvíjí strukturované postupy řešení.



;