16635x
001629
2020-03-02

按照 EN 1993-1-3 进行冷弯薄壁 C 型截面设计

使用模块扩展 RF-/STEEL Cold-Formed Sections 可以对冷弯薄壁型钢构件按照欧洲规范 EN 1993-1-3 和 EN 1993-1-5 进行承载能力极限状态设计。 除了截面数据库中的冷弯薄壁型钢截面外,您还可以设计由独立程序 SHAPE-THIN 导入的一般截面。

下面的示例选自 2009 年钢结构年鉴{%!轴力荷载 在独立程序 SHAPE-THIN 中对该 C 型截面进行建模,然后在模块扩展 RF-/STEEL Cold-Formed Sections 中进行设计。

系统

结构体系与荷载如图 01 所示。

材料

  • S 355 EN 10025-2
  • E = 210,000 N/mm²
  • G = 80,769 N/mm²
  • ν= 0.3
  • fy = fyb = 355 N/mm²
  • γM0 = γM1 = 1.00根据 CEN 设计

外形尺寸

截面的外形尺寸如图 02 所示。

  • H = 102 mm (腹板高度)
  • b = 120 mm(翼缘宽度)
  • c = 26 mm(卷边宽度)
  • t = 2 mm(截面厚度)

名义平直段宽度

名义平直段宽度按照{%于#参照 [1]]] 中第 5.1 节计算。 名义平直段宽度如图 03 所示。


检查宽厚比

宽厚比按照 [1] 中 5.2(1) 进行检查。

  • b/t = 120/2 = 60 ≤ 60
  • c/t = 26/2 = 13 ≤ 50
  • H/t = 102/2 = 51 ≤ 500

宽厚比满足要求。

检查加劲肋尺寸

加劲肋尺寸按照 [1] 中 5.2(2) 进行检查。
0.2 ≤ c/b = 26/120 = 0.22 ≤ 0.6

卷边可以视为加劲肋。

检查加劲肋与平面单元之间的夹角

加劲肋与平面单元之间的夹角为 90°,位于 5.5.3.2(1) 的 [1] 中提到的 45° 和 135° 之间的范围内。

确定有效截面

对于非双轴对称受压局部屈曲的截面,其有效截面的重心位置相对于毛截面会发生变化。 这样作用在毛截面重心位置上的外部压力对于有效截面为偏心作用,同时产生一个附加弯矩。 根据 [1] ,必须考虑重心偏移产生的附加弯矩。 因此除了计算纯受压作用下的有效截面外,还要计算纯受弯作用下的有效截面。

确定在纯受压作用下的有效截面

根据 {%3}{Refer [2]]] 中 4.4 (2),系数为:

腹板

根据 [2] 中表 4.1,屈曲系数为:

根据 {%于!#refer [2]]]中的 4.4 (2),屈曲长细比为:

根据{%于#参照 [2]]] 中 4.4(2),长细比大于极限值 0.673。 因此需要折减。

根据 [2] 中4.4 (2),折减系数为:

根据 {%于#Refer [2]]], 表 4.1,有效腹板高度为:

有边缘加劲肋的翼缘

第一步假定边缘加劲肋具有完全约束,并且 σcom,Ed = fyb / γM0,然后确定加劲肋的初始有效截面。

弦杆

根据 [2] 中表 4.1,屈曲系数为:

根据 {%于!#refer [2]]]中的 4.4 (2),屈曲长细比为:

根据{%于#参照 [2]]] 中 4.4(2),长细比大于极限值 0.673。 因此需要折减。

根据 [2] 中4.4 (2),折减系数为:

根据表 4.1 中的 {%于#Refer [2]]] ,表 4.1,有效翼缘宽度为:

边缘加劲肋

根据 {%3!#refer [1]]]中 5.5.3.2 (5),屈曲系数为:

根据 {%于!#refer [2]]]中的 4.4 (2),屈曲长细比为:

根据请参阅{%! 因此不需要折减,即 ρ= 1.0。

首次逼近有效宽度的结果参照 {%于#Refer [1]]], 式 24. 5.13a 改为:

第二步使用初始有效截面来确定畸变屈曲的折减系数,同时考虑到连续位移弹簧约束效应。

边缘加劲肋的有效截面属性通过 SHAPE-THIN 计算。 边缘加劲肋如图 04 所示。

  • As = 122.58 mm 2
  • Is = 7,130 mm 4
  • zs = 13.88 mm

边缘加劲肋的弹簧刚度 K 基于对整个截面的分析来确定。 为此在截面上施加一个单位距离荷载 u,该荷载作用于有效加劲肋的重心上,然后计算相应的加劲肋变形 δ。 对于矩形截面 b/h = t/t = 2/2 mm,变形δ = 3.02 mm (图 05)。

单位长度的弹簧刚度 K 可根据 {%于#Refer [1]]] 式计算, 5.9 可以按照下式计算:

边缘加劲肋的临界应力由公式 11 得出。 5.15 关于:

长细比按照 {%于#Refer [1]]] 进行计算,公式 24. 5.12d 至:

根据{%于#Refer [1]]]中的 5.5.3.1 (7),畸变屈曲的折减系数为:

考虑弯曲屈曲的影响,边缘加劲肋的折减有效截面面积可按照公式 21.1中的 [1]]] 计算得出。 5.17 至:

纯受压作用下有效截面属性

该截面可以通过迭代计算来优化。 通过两步迭代得出以下有效截面属性:

  • 面积 Aeff = 4.62 cm²
  • 腹板的重心距离 zs,eff = 42.18 mm
  • 重心位移 eN,y = zs – * zs,eff = 8.78 mm

计算在纯弯作用下的有效截面

腹板

腹板受拉,因此全部有效。

有边缘加劲肋的翼缘

第一步假定边缘加劲肋具有完全约束,并且 σcom,Ed = fyb / γM0,然后确定加劲肋的初始有效截面。

弦杆

根据 [2] 中表 4.1,屈曲系数为:

根据 {%于!#refer [2]]]中的 4.4 (2),屈曲长细比为:

根据[2] 中 4.4(2),长细比小于极限值 0.856。 因此不需要折减。

根据表 4.1 中的 {%于#Refer [2]]] ,表 4.1,有效宽度为:

边缘加劲肋

根据 {%3!#refer [1]]]中 5.5.3.2 (5),屈曲系数为:

根据 {%于!#refer [2]]]中的 4.4 (2),屈曲长细比为:

根据请参阅{%! 因此不需要折减,即 ρ= 1.0。

首次逼近有效宽度的结果参照 {%于#Refer [1]]], 式 24. 5.13a 改为:

第二步使用初始有效截面来确定畸变屈曲的折减系数,同时考虑到连续位移弹簧约束效应。

边缘加劲肋的有效截面属性通过 SHAPE-THIN 计算。 边缘加劲肋如图 06 所示。

  • As = 97.92 mm 2
  • Is = 6,271 mm 4
  • zs = 8.59 mm

边缘加劲肋的弹簧刚度 K 基于对整个截面的分析来确定。 为此在截面上施加一个单位距离荷载 u,该荷载作用于有效加劲肋的重心上,然后计算相应的加劲肋变形 δ。 对于矩形截面 b/h = t/t = 2/2 mm,变形δ = 3.4 mm (图 07)。

单位长度的弹簧刚度 K 可根据 {%于#Refer [1]]] 式计算, 5.9 可以按照下式计算:

边缘加劲肋的临界应力由公式 11 得出。 5.15 关于:

长细比按照 {%于#Refer [1]]] 进行计算,公式 24. 5.12d 至:

根据{%于#Refer [1]]]中的 5.5.3.1 (7),畸变屈曲的折减系数为:

考虑弯曲屈曲的影响,边缘加劲肋的折减有效截面面积可按照公式 21.1中的 [1]]] 计算得出。 5.17 至:

纯弯曲应力作用下有效截面属性

所有截面部分都是完全有效的,因此不需要迭代。

  • 面积 Aeff = 6.86 cm²
  • 截面模量 Weff, y = 17.01 cm³

压弯截面设计

根据 [1] 中 6.1.3(1),纯压作用下承载力:

根据 {%于#Refer [1]]] 中 6.1.4.1 (1),纯弯作用下承载力:

根据[1]中 6.1.9(2) 的规定,重心偏移产生的附加弯矩计算如下:

按照 6.1.9 (1) 中有关压弯荷载的设计,请参阅 [1],


设计完成。

在 SHAPE-THIN 中对冷弯 C 型截面建模

一般的冷弯型材可以在 SHAPE-THIN 中进行建模。 在“基本数据”对话框中激活“ c/t 比值和有效截面属性”选项(图 08)。

然后在“计算参数”对话框中选择“ c/t 比值和有效截面”选项卡,在该选项卡中选择“ EN 1993-1-3(冷弯截面)”(图09)。

分别计算纯压和纯弯作用下的有效截面。 因此需激活“忽略由重心偏移产生的附加弯矩”选项。

该示例计算使用了两步迭代,因此在 SHAPE-THIN 中也设置两步迭代。

可以选择检查第 5.2 节 {%于#Refer [2]]] 中规定的几何尺寸限制条件。 为此应激活相应的复选框。

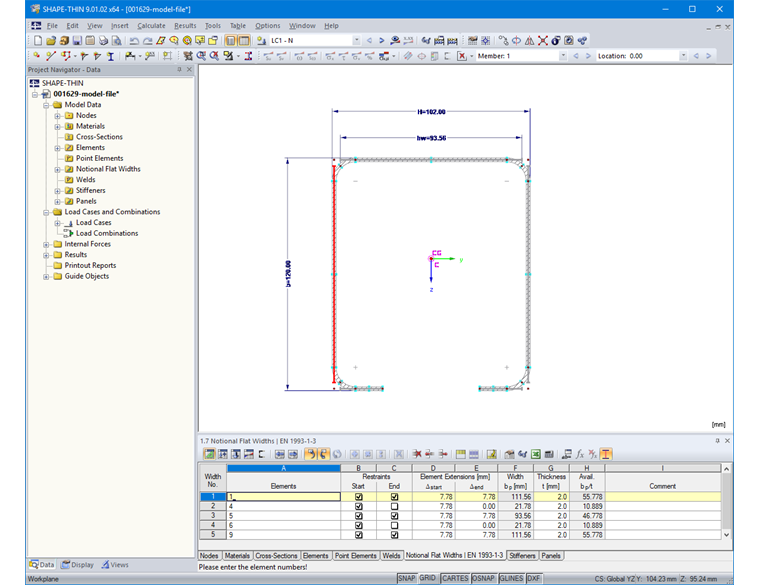
首先给出截面的单元。 通常名义平直段是在几何条件下自动生成,但也可以在表“1.7 名义平直段按 EN 1993-1-3”(图10)或相应的对话框中进行定义。

可以在表“1.8 加劲肋”或相应的对话框中定义加劲肋(图11)。

此外,在表“1.9 屈曲区域”(图 12)或相应的对话框中指定屈曲区域。 为此,请选择屈曲区域的单元。 程序会自动识别位于屈曲区域中的加劲肋。

此外,在表“ 2.1 荷载工况”中创建受压和受弯荷载工况(图 13)。

然后在表“ 3.1 内力”或相应对话框中输入内力(图 14)。

使用按钮“有效宽度”可以查看有效截面的结果。

RF-/STEEL Cold-Formed Sections 中冷弯 C 型截面设计

冷弯型材可以通过附加模块 RF-/STEEL Cold-Formed Sections 分别按照 [1] 和 [2] 进行设计[SCHOOL.INSTITUTION]

在“基本数据”中必须首先选择要设计的杆件和荷载工况。 选择“ CEN” 作为国家附录(图16)。

您可以在相应窗口的“冷弯型材(EN 1993-1-3)”选项卡中看到并根据需要调整国家附录的参数(图17)。

在“详细信息”对话框中的“冷弯型材”选项卡里激活冷弯型材验算(图 18)。

仅进行截面设计。 因此必须在“详细信息”对话框中的“稳定性”选项卡里取消激活“进行稳定性验算”选项(图19)。

计算完成后,在相应的输出表中会显示由轴力 N、弯矩 My 和 弯矩 Mz 计算得出的有效截面属性,以及内力和整个设计(图20)。


作者

Sonja 在产品工程部工作,并且还支持客户支持。她专注于 RSECTION 以及钢结构和铝结构,并在这些领域有针对性地发挥自己的专业知识。

链接
参考
下载


;