16635x
001629
2020-03-02

Progettazione di una sezione a C a pareti sottili, piegata a freddo secondo EN 1993-1-3

Usando estensione del modulo RF-/STEEL Cold-Formed Sections può eseguire il progetto allo stato limite ultimo e di esercizio per profili in acciaio piegate a freddo secondo EN 1993-1-3 e EN 1993-1-5. Oltre alle sezioni trasversali formate a freddo dal database, è anche possibile progettare sezioni trasversali di forma qualsiasi create in SHAPE-THIN.

Nell'esempio seguente dall'Annuario delle strutture in acciaio 2009 [3], la verifica della sezione trasversale per una trave a campata singola con una sezione a C a parete sottile piegata a freddo viene eseguita in carico di forza normale. La sezione a C è modellata in SHAPE-THIN e poi progettata in RF-/STEEL Cold-Formed Sections.

Sistema

Il sistema e il carico sono mostrati nella Figura 01.

Materiale

  • S 355 EN 10025-2
  • E = 210.000 N/mm²
  • G = 80,769 N/mm²
  • ν = 0,3
  • fy = fyb = 355 N/mm²
  • γM0 = γM1 = 1.00 (progettazione secondo CEN)

Dimensioni esterne

Le dimensioni esterne della sezione trasversale sono mostrate nella Figura 02.

  • H = 102 mm (altezza anima)
  • b = 120 mm (larghezza del nastro)
  • c = 26 mm (lunghezza labbro)
  • t = 2 mm (spessore anima in acciaio)

Larghezze piane nozionali

Le larghezze piane nozionali sono determinate secondo [1], 5.1. Le larghezze piane nozionali sono mostrate nella Figura 03.


Verifica dei rapporti larghezza-spessore

I rapporti larghezza-spessore sono verificati secondo [1], 5.2(1).

  • b/t = 120/2 = 60 ≤ 60
  • c/t = 26/2 = 13 ≤ 50
  • H/t = 102/2 = 51 ≤ 500

I rapporti larghezza-spessore sono soddisfatti.

Verifica delle dimensioni dell'irrigidimento

Le dimensioni dell'irrigidimento sono verificate secondo [1], 5.2(2).
0,2 ≤ c/b = 26/120 = 0,22 ≤ 0,6

Le labbra possono essere applicate come irrigidimenti.

Verifica dell'angolo tra l'irrigidimento e l'elemento piano

L'angolo tra l'irrigidimento e l'elemento piano è di 90° entro i limiti di 45° e 135° menzionati in [1], 5.5.3.2(1).

Determinazione della sezione trasversale efficace

Per le sezioni in acciaio che non sono soggette a doppia simmetria e soggette a compressione, la posizione del baricentro della sezione trasversale efficace si sposta rispetto alla sezione trasversale lorda. La forza di compressione esterna che agisce centralmente sulla sezione trasversale lorda ora agisce eccentricamente sulla sezione trasversale efficace e viene creato un momento flettente aggiuntivo. Secondo [1], devono essere presi in considerazione i momenti aggiuntivi risultanti dallo spostamento del baricentro. Successivamente, oltre alla sezione trasversale efficace per la tensione di compressione pura, deve essere determinata la sezione trasversale efficace per la tensione di flessione pura.

Determinazione della sezione trasversale efficace sotto compressione pura

Secondo [2], 4.4 (2), il coefficiente risulta in:

anima

Secondo [2], Tabella 4.1, il valore di instabilità risulta in:

Secondo [2], 4.4 (2), la snellezza per instabilità risulta in:

Il rapporto di snellezza è maggiore del valore limite 0,673 secondo [2], 4.4(2). Pertanto, è necessaria una riduzione.

Secondo [2], 4.4 (2), il coefficiente di riduzione risulta in:

Secondo [2], Tabella 4.1, l'altezza efficace dell'anima risulta da [2], Tabella 4.1 in:

Flangia con irrigidimento del bordo

Nella prima fase, il primo approccio per la sezione trasversale efficace dell'irrigidimento è determinato assumendo che la rigidezza del bordo agisca come un vincolo esterno e che σcom,Ed = fybM0.

corrente

Secondo [2], Tabella 4.1, il valore di instabilità risulta in:

Secondo [2], 4.4 (2), la snellezza per instabilità risulta in:

Il rapporto di snellezza è maggiore del valore limite 0,673 secondo [2], 4.4(2). Pertanto, è necessaria una riduzione.

Secondo [2], 4.4 (2), il coefficiente di riduzione risulta in:

Secondo [2], Tabella 4.1, la larghezza efficace dell'ala risulta:

irrigidimento del bordo

Secondo [1], 5.5.3.2 (5), il valore di instabilità risulta in:

Secondo [2], 4.4 (2), la snellezza per instabilità risulta in:

Il rapporto di snellezza è inferiore al valore limite 0,748 secondo [1], 4.4(2). Quindi, non è necessaria alcuna riduzione, cioè: ρ = 1.0.

Il primo approccio della larghezza efficace risulta da [1], Eq. 5.13a a:

Nella seconda fase, il coefficiente di riduzione per l'instabilità di forma della sezione trasversale è determinato utilizzando il primo approccio efficace per la sezione trasversale, tenendo conto della molla di traslazione elastica.

I valori efficaci della sezione trasversale dell'irrigidimento del bordo sono calcolati con SHAPE-THIN. La rigidezza del bordo è mostrata nella Figura 04.

  • As = 122,58 mm2
  • Is = 7.130 mm4
  • zs = 13,88 mm

La rigidezza della molla K della rigidezza del bordo è determinata sulla base di un'analisi strutturale per l'intera sezione trasversale. A tale scopo, alla sezione trasversale viene applicato un carico di distanza unitario u, agente nel baricentro dell'irrigidimento efficace, e viene calcolata la deformazione corrispondente δ dell'irrigidimento. Per una sezione trasversale rettangolare w/h = t/t = 2/2 mm, la deformazione risulta in δ = 3,02 mm (Figura 05).

La rigidezza della molla per unità di lunghezza K può essere calcolata secondo [1], Eq. 5.9 può essere calcolato come segue:

La tensione critica della rigidezza del bordo risulta da [1], Eq. 5.15 su:

Il rapporto di snellezza è calcolato secondo [1], Eq. 5.12d a:

Secondo [1], 5.5.3.1 (7), il coefficiente di riduzione per l'instabilità della forma è calcolato come segue:

L'area della sezione trasversale efficace ridotta della rigidezza del bordo si ottiene tenendo conto dell'instabilità flessionale secondo [1], Eq. 5.17 a:

Proprietà efficaci della sezione trasversale sotto compressione pura

La sezione trasversale può essere ottimizzata mediante un calcolo iterativo. Per due iterazioni, risulta nei seguenti valori efficaci della sezione trasversale:

  • Area Aeff = 4,62 cm²
  • Distanza del baricentro dall'anima zs,eff = 42,18 mm
  • Spostamento del baricentro eN,y = zs – * zs,eff = 8,78 mm

Determinazione della sezione trasversale efficace sotto tensione di flessione pura

anima

L'anima è soggetta a trazione ed è quindi completamente efficace.

Flangia con irrigidimento del bordo

Nella prima fase, il primo approccio per la sezione trasversale efficace dell'irrigidimento è determinato assumendo che la rigidezza del bordo agisca come un vincolo esterno e che σcom,Ed = fybM0.

corrente

Secondo [2], Tabella 4.1, il valore di instabilità risulta in:

Secondo [2], 4.4 (2), la snellezza per instabilità risulta in:

Il rapporto di snellezza è inferiore al valore limite 0,856 secondo [2], 4.4(2). Pertanto, non è necessaria alcuna riduzione.

Secondo [2], Tabella 4.1, le larghezze efficaci risultano in:

irrigidimento del bordo

Secondo [1], 5.5.3.2 (5), il valore di instabilità risulta in:

Secondo [2], 4.4 (2), la snellezza per instabilità risulta in:

Il rapporto di snellezza è inferiore al valore limite 0,748 secondo [1], 4.4(2). Quindi, non è necessaria alcuna riduzione, cioè: ρ = 1.0.

Il primo approccio della larghezza efficace risulta da [1], Eq. 5.13a a:

Nella seconda fase, il coefficiente di riduzione per l'instabilità di forma della sezione trasversale è determinato utilizzando il primo approccio efficace per la sezione trasversale, tenendo conto della molla di traslazione elastica.

I valori efficaci della sezione trasversale dell'irrigidimento del bordo sono calcolati con SHAPE-THIN. La rigidezza del bordo è mostrata nella Figura 06.

  • As = 97,92 mm2
  • Is = 6.271 mm4
  • zs = 8,59 mm

La rigidezza della molla K della rigidezza del bordo è determinata sulla base di un'analisi strutturale per l'intera sezione trasversale. A tale scopo, alla sezione trasversale viene applicato un carico di distanza unitario u, agente nel baricentro dell'irrigidimento efficace, e viene calcolata la deformazione corrispondente δ dell'irrigidimento. Per una sezione trasversale rettangolare w/h = t/t = 2/2 mm, la deformazione risulta in δ = 3,4 mm (Figura 07).

La rigidezza della molla per unità di lunghezza K può essere calcolata secondo [1], Eq. 5.9 può essere calcolato come segue:

La tensione critica della rigidezza del bordo risulta da [1], Eq. 5.15 su:

Il rapporto di snellezza è calcolato secondo [1], Eq. 5.12d a:

Secondo [1], 5.5.3.1 (7), il coefficiente di riduzione per l'instabilità della forma è calcolato come segue:

L'area della sezione trasversale efficace ridotta della rigidezza del bordo si ottiene tenendo conto dell'instabilità flessionale secondo [1], Eq. 5.17 a:

Proprietà efficaci della sezione trasversale sotto tensione di flessione pura

Tutte le parti della sezione trasversale sono completamente efficaci, quindi l'iterazione non è necessaria.

  • Area Aeff = 6,86 cm²
  • Modulo di resistenza Weff, y = 17,01 cm³

Progettazione di sezioni trasversali di carichi combinati dovuti a compressione e flessione

La resistenza alla compressione pura è calcolata secondo [1], 6.1.3 (1) come segue:

La resistenza alla flessione pura è calcolata secondo [1], 6.1.4.1 (1) come segue:

Il momento aggiuntivo risultante dallo spostamento del baricentro è determinato secondo [1], 6.1.9(2) come segue:

La verifica per il carico combinato da compressione e flessione secondo [1], 6.1.9 (1) risulta in:


Il progetto è così eseguito.

Modellazione di una sezione a C piegata a freddo in SHAPE-THIN

Le sezioni generali piegate a freddo possono essere modellate in SHAPE-THIN. Nei dati generali, attivare la casella di controllo "Parti c/t e proprietà della sezione trasversale efficace" (Figura 08).

Quindi, selezionare l'opzione "EN 1993-1-3 (Sezione trasversale piegata a freddo)" nella scheda "Parti c/t e sezione trasversale efficace" (Figura 09) della finestra di dialogo Parametri di calcolo.

La sezione trasversale efficace deve essere determinata separatamente per compressione pura e flessione pura. Pertanto, selezionare la casella di controllo "Trascura i momenti flettenti aggiuntivi a causa dello spostamento del baricentro della sezione trasversale efficace".

Abbiamo calcolato con due iterazioni nell'esempio, quindi anche due iterazioni sono impostate in SHAPE-THIN.

Le condizioni geometriche menzionate in [2], 5.2 per l'applicabilità della norma possono essere verificate facoltativamente. Per fare ciò, selezionare le caselle di controllo corrispondenti.

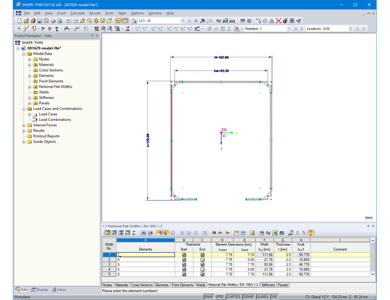
È necessario inserire gli elementi della sezione trasversale. Le larghezze piane nozionali sono generalmente generate automaticamente dalle condizioni geometriche, ma possono anche essere create come definito dall'utente nella tabella "1.7 Larghezze piane nozionali secondo EN 1993-1-3" (Figura 10) o nella finestra di dialogo corrispondente.

Gli irrigidimenti possono quindi essere definiti nella tabella "1.8 Irrigidimenti" o nella finestra di dialogo corrispondente (Figura 11).

Inoltre, il pannello di instabilità deve essere specificato nella tabella "1.9 Pannelli" (Figura 12) o nella finestra di dialogo corrispondente. Per fare ciò, selezionare gli elementi del pannello di instabilità. Gli irrigidimenti situati nel pannello irrigidito sono identificati automaticamente.

Inoltre, nella tabella "2.1 Casi di carico" (Figura 13), viene creato un caso di carico per la forza di compressione e flessione.

Quindi, inserisci le forze interne nella tabella "3.1 Forze interne" o nella finestra di dialogo corrispondente (Figura 14).

I risultati della sezione trasversale efficace sono disponibili con il pulsante "Parti efficaci" (Figura 15).

Verifica della sezione trasversale di una sezione a C piegata a freddo in RF-/STEEL Cold-Formed Sections

Le sezioni piegate a freddo possono essere progettate secondo [1] e [2] con il modulo aggiuntivo RF-/STEEL Cold-Formed Sections.

Nei Dati generali, è necessario prima selezionare l'asta e il caso di carico da progettare. "CEN" è selezionato come Appendice nazionale (Figura 16).

È possibile visualizzare e, se necessario, modificare i parametri dell'Appendice nazionale nella scheda "Formato a freddo (EN 1993-1-3)" della finestra corrispondente (Figura 17).

In den Detaileinstellungen ist im Register "Kaltgeformte Profile" der Nachweis für kaltgeformte Profile zu aktivieren (Bild 18).

Deve essere eseguita solo la verifica della sezione trasversale. Pertanto, la casella di controllo "Esegui analisi di stabilità" nella scheda "Stabilità" delle impostazioni dei dettagli deve essere disattivata (Figura 19).

Dopo il calcolo, le tabelle di output corrispondenti mostrano, tra le altre cose, le proprietà efficaci della sezione trasversale dovute alla forza assiale N, al momento flettente My, al momento flettente Mz, alle forze interne e all'intero progetto (Figura 20).


Autore

Sonja lavora nel Product Engineering e supporta inoltre nel Customer Support. Il suo focus è su RSECTION, nonché sulla costruzione in acciaio e alluminio, dove mette a frutto in modo mirato le sue conoscenze.

Link
Bibliografia
Download


;