1859x
000330
2019-08-20

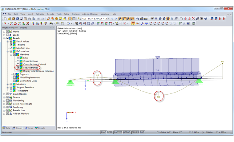
显示杆件最大变形

最大值只以图形方式显示变形。 Ist es in RSTAB/RFEM möglich, sich auch die maximale Verformung jedes Stabes anzeigen zu lassen?


回复:

您可以通过激活"显示"导航器中的"显示最大/最小值"选项来显示每根杆件的最大/最小变形。

Hinweis
Haben Sie mehrere Veränderungen vorgenommen und möchten diese immer wieder nutzen, können Sie die komplette "Zeigen"-Navigator-Einstellung als Standardeinstellung festlegen. Klicken Sie hierzu mit der rechten Maustaste in den freien Navigator Bereich und wählen den Befehl "Einstellungen als Standard speichern".



;