1859x
000330
20.08.2019

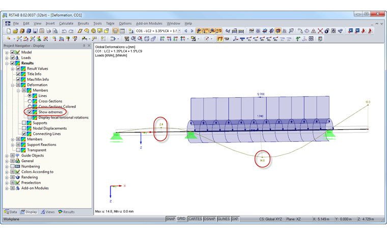
Afficher la déformation maximale de barre

Seule la valeur maximale est affichée graphiquement dans la déformation. Est-il possible d’afficher la déformation maximale de chaque barre dans RFEM/RSTAB ?


Réponse:

Vous pouvez afficher la déformation maximale de chaque barre en activant l’option « Afficher les valeurs max./min. » dans le navigateur « Afficher » sous « Résultats » → « Déformation » → « Barres ».

Remarque
Si vous avez effectué plusieurs modifications et que vous souhaitez les utiliser à plusieurs reprises, vous pouvez définir l’ensemble des paramètres du navigateur « Afficher » comme paramètres par défaut. Pour ce faire, cliquez-droit dans la zone libre du navigateur et sélectionnez l’option « Enregistrer les paramètres comme par défaut ».



;