1415x
003313
2019-07-22

STEEL EC3 中 CO 和 RC 的由于弯矩分布的不同设计结果

为什么在钢结构EC3中荷载组合(CO)和结果组合(RC)得到不同的设计结果,尽管内力相同?


回复:

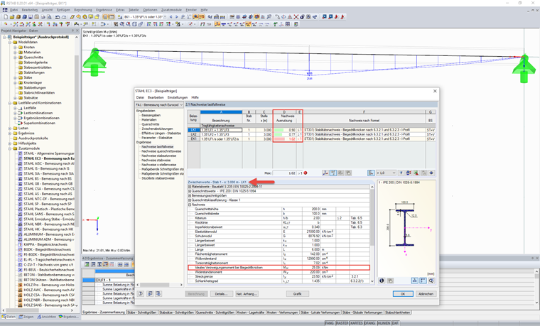
RC 和 CO 设计之间的区别主要在于计算弹性临界弯矩 Mcr时采用的弯矩分布不同。 Bei einer Lastkombination (LK) kann für die vorliegende Laststellung der Momentenverlauf eindeutig angesetzt werden. Bei einer Ergebniskomination vom Typ "+" bzw. einer EK, welche nicht dem Typen "ständig/oder" entspricht, kann jedoch nur der umhüllende Momentenverlauf untersucht werden. Dabei wird dann der ungünstigere Verlauf (Max oder Min) angesetzt. Als Folge ergeben sich ungünstigere Werte für den Verzweigungslastfaktor.

Weiterhin ist beim Nachweis nach Abs. 6.3.3 EN 1993-1-1 anzumerken, dass die Momentenverlaufsbeiwerte zu 1,0 (konstanter Verlauf) gesetzt werden, sofern der Momentenverlauf nicht eindeutig bestimmbar ist, was auch zu konservativeren Ergebnissen führen kann.

概述总结

Die zur Bemessung angesetzten Schnittgrößen können in LK und EK gleich sein, der Momentenverlauf in der Ergebniskombination wird zur Ermittlung des Verzweigungswertes allerdings ungünstiger angesetzt. Die EK liefert somit eine höhere Auslastung bei der Bemessung mit STAHL EC3.


下载


;