1415x
003313
22. Juli 2019

Unterschiedliche Bemessungsergebnisse in STAHL EC3 für LK und EK aufgrund des Momentenverlaufs

Wieso erhalte ich in STAHL EC3 für eine Lastkombination (LK) und eine Ergebniskombination (EK) trotz gleicher Schnittgrößen unterschiedliche Bemessungsergebnisse?


Antwort:

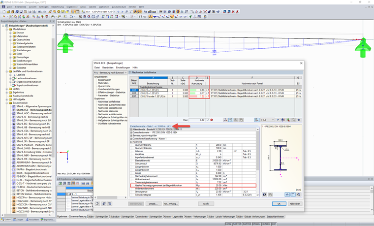
Der Unterschied zwischen einer Bemessung mit EK und LK liegt vor allem in dem für die Berechnung des idealen Biegedrillknickmomentes Mcr angesetzten Momentenverlaufs. Bei einer Lastkombination (LK) kann für die vorliegende Laststellung der Momentenverlauf eindeutig angesetzt werden. Bei einer Ergebniskomination vom Typ "+" bzw. einer EK, welche nicht dem Typen "ständig/oder" entspricht, kann jedoch nur der umhüllende Momentenverlauf untersucht werden. Dabei wird dann der ungünstigere Verlauf (Max oder Min) angesetzt. Als Folge ergeben sich ungünstigere Werte für den Verzweigungslastfaktor.

Weiterhin ist beim Nachweis nach Abs. 6.3.3 EN 1993-1-1 anzumerken, dass die Momentenverlaufsbeiwerte zu 1,0 (konstanter Verlauf) gesetzt werden, sofern der Momentenverlauf nicht eindeutig bestimmbar ist, was auch zu konservativeren Ergebnissen führen kann.

Fazit

Die zur Bemessung angesetzten Schnittgrößen können in LK und EK gleich sein, der Momentenverlauf in der Ergebniskombination wird zur Ermittlung des Verzweigungswertes allerdings ungünstiger angesetzt. Die EK liefert somit eine höhere Auslastung bei der Bemessung mit STAHL EC3.


Downloads


;