1415x
003313
22.07.2019

Résultats de calcul différents dans RF-STEEL EC3 pour les CO et CR en raison de la distribution des moments

Pourquoi les résultats du calcul d'une combinaison de charges (CO) et d'une combinaison de résultats (CR) dans RF-STEEL EC3 sont-ils différents malgré des efforts internes identiques ?


Réponse:

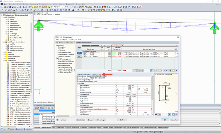
La différence entre un calcul avec CR et CO réside principalement dans la distribution des moments appliquée pour le calcul du moment de flambement idéal Mcr. Pour une combinaison de charge (CO), il est possible d'appliquer clairement la distribution des moments pour la position de charge actuelle. S'il s'agit d'une combinaison de résultats du type « + » ou d'une CR qui ne correspond pas au type « permanent/ou », vous pouvez uniquement analyser la distribution en enveloppe des moments. La distribution la plus défavorable (Max ou Min) est ensuite appliquée. Il en résulte des valeurs défavorables pour le facteur de charge critique.

Veuillez également noter que les facteurs de distribution de moment sont réglés sur 1,0 (distribution constante) selon la clause 6.3.3 de l'EN 1993-1-1, à condition que la distribution des moments ne puisse pas être déterminée sans ambiguïté, ce qui permet également d'obtenir des résultats plus sûrs.

Conclusion

Les efforts internes appliqués pour la vérification peuvent être les mêmes dans les CR et les CO, mais la distribution des moments dans la combinaison de résultats est appliquée de manière plus défavorable pour la détermination du facteur critique. Le CR fournit une utilisation plus élevée lors de la vérification avec STEEL EC3.


Téléchargements


;