1415x
003313
2019-07-22

Different Design Results in STEEL EC3 for COs and RCs Due to Moment Distribution

Why do I get different design results for a load combination (CO) and a result combination (RC) in STEEL EC3 in spite of having the same internal forces?


Answer:

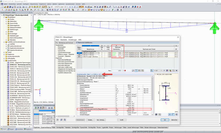
The difference between designs with RC and CO lies mainly in the moment distribution applied for the calculation of the ideal elastic critical moment Mcr. For a load combination (CO), it is possible to clearly apply the moment distribution for the present load position. For a result combination of the "+" type or an RC that does not correspond to the "permanent/or" type, however, you can only analyze the enveloping moment distribution. In this case, the more unfavorable distribution (Max or Min) is applied. As a consequence, unfavorable values result for the critical load factor.

Furthermore, the design according to Section 6.3.3 of EN 1993‑1‑1 requires the moment distribution coefficients set to 1.0 (constant distribution) if the moment distribution cannot be clearly determined, which may also lead to more conservative results.

Conclusion

The internal forces applied for the design can be the same in COs and RCs, but the moment distribution in the result combination is applied more unfavorably to determine the critical factor. Thus, the RC provides a higher design ratio for the design with STEEL EC3.


Downloads


;