560x
001377
23-10-2025

Torre de observación con paseo por las copas de los árboles en Bachledka, Altos Tatras, Eslovaquia

La torre de observación del Parque Nacional de los Altos Tatras, en Eslovaquia, destaca en el camino entre las copas de los árboles. La torre de madera de 32 metros ofrece una vista panorámica impresionante de las montañas. Los visitantes pueden acceder a la plataforma a través de una rampa en espiral, que cuenta con una red de escalada y un tobogán de más de 60 metros de largo.

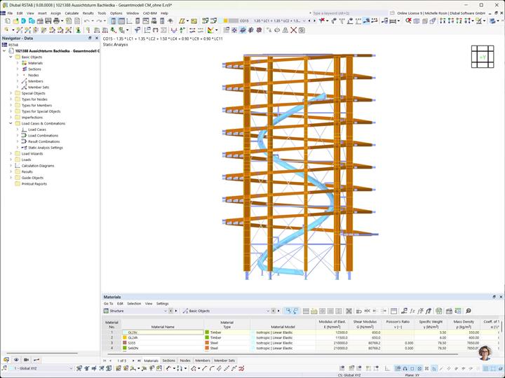
Al final del camino sobre la copa de los árboles, de unos 600 m de largo, los visitantes encuentran una torre de observación de 32 m de altura con un diámetro de 7,63 m. La estructura de madera fue realizada por WIEHAG Timber Construction GmbH y se diseñó como un cilindro de 9 lados. La estructura de soporte consiste en nueve vigas de madera laminada dispuestas de manera rotacionalmente simétrica con una diferencia de ángulo de 40° cada una. La construcción está reforzada mediante una red de barras diagonales que se extiende alrededor y está anclada en los lados internos de los pilares de madera. Una rampa en espiral con una pendiente máxima del 6% sube por el borde exterior de la torre. Está compuesta por vigas de madera laminada multicapa con un pavimento de tablones, que descansan sobre vigas voladizas de acero.

La plataforma superior ofrece a los visitantes una vista espectacular de 360 grados sobre el paisaje montañoso de los Altos Tatras. Un atractivo especial es la red transitable de 75 m² en el centro de la plataforma, así como un tobogán de más de 60 metros de largo que desciende desde un entresuelo de aproximadamente 25 m de altura hasta el suelo.

La transmisión de la carga se realiza desde los pilares de madera a través de vigas de acero hacia cimientos de hormigón armado, y de ahí al terreno de construcción. Los cimientos están construidos sobre un suelo uniforme, lo que evita asientos diferenciales en los distintos apoyos.

De esta manera, la torre de observación cerca de Bachledka combina una construcción en madera innovadora, con una estructura segura y una experiencia natural única, convirtiéndose en un impresionante destino de excursión para jóvenes y mayores.

Lugar
Estación de esquí de fondo SNOW
Štrbské Pleso
05985 Altos Tatras
Eslovaquia
Análisis de estructuras
Arquitecto
Propietario del edificio


Especificaciones del proyecto

Datos del modelo

Número de nudos 2213
Número de líneas 4003
Número de barras 4003
Número de superficies 0
Número de sólidos 0
Número de casos de carga 12
Número de combinaciones de carga 293
Número de combinaciones de resultados 4
Peso completo 157,086 t
Dimensiones (métricas) 22,532 x 32,510 x 22,473 m
Dimensiones (imperiales) 73.92 x 106.66 x 73.73 feet

¿Tiene alguna pregunta?