2413x
001692
2022-03-03

Criação gráfica/tabular de secções definidas pelo utilizador no RSECTION 1

O RSECTION 1 é um programa autónomo para determinar as propriedades de secções de paredes finas e maciças, bem como para realizar análises de tensões. Além disso, o programa pode ser ligado ao RFEM e ao RSTAB: As secções do RSECTION estão disponíveis nas bibliotecas do RFEM/RSTAB e os esforços internos do RFEM/RSTAB podem ser importados para o RSECTION.

A secção definida pelo utilizador no RSECTION 1 pode ser criada através da introdução de dados utilizando vários métodos: graficamente, em tabelas, através de um script ou através da importação de um ficheiro DXF. Este artigo irá mostrar a base para a definição de secções na forma de um gráfico e uma tabela.

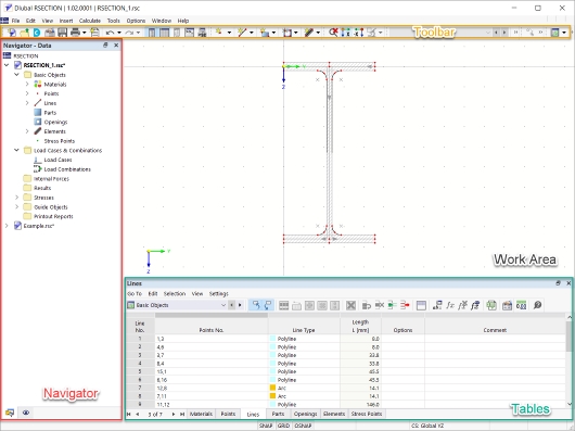
As ferramentas e funções gráficas no RSECTION permitem modelar formas de secções complexas no método habitual comum com os programas CAD. A entrada gráfica suporta, entre outras coisas, a configuração de arcos, círculos, elipses, parábolas e NURBS. Além disso, a interface do utilizador é muito semelhante à do RFEM/RSTAB: inclui a janela de trabalho, o navegador, as tabelas e a barra de ferramentas (Figura 1).

Da mesma forma que no RFEM 6, pode definir objetos básicos como materiais, pontos, linhas, partes, aberturas, elementos e pontos de tensão utilizando o separador Dados do navegador. A biblioteca de materiais está disponível para importar materiais, mas também pode ser definida por si.

Na verdade, as secções no RSECTION 1 são geradas como um conjunto de elementos definidos como linhas individuais, arcos, círculos, elipses, parábolas e NURBS. Eles podem ser definidos graficamente através da barra de ferramentas como mostra a Figura 2. Além disso, pode defini-los através da caixa de diálogo disponível utilizando a barra de ferramentas, do navegador e das tabelas.


Os elementos definidos devem estar sempre numa superfície designada por "parte". Se os elementos são criados graficamente, as partes são criadas automaticamente. Se, por outro lado, forem criadas através de uma caixa de diálogo, as partes devem ser criadas previamente. Pode definir as partes através da seleção das suas linhas de fronteira, como mostra o vídeo deste artigo.

As propriedades da secção, tais como a área da secção e o momento de inércia, são calculados com base na definição das partes. Por fim, os pontos de tensão são gerados automaticamente através da definição das partes (Figura 3); no entanto, também podem ser definidos manualmente.

Uma vez definida a secção e gerados os pontos de tensão, pode iniciar a análise e calcular as tensões na secção efetiva. A análise de tensões no RSECTION 1 será considerada num futuro artigo da base de dados de conhecimento.


Autor

A Eng.ª Kirova é responsável pela criação de artigos técnicos e presta apoio técnico aos clientes da Dlubal.

Ligações


;