2439x
001692
2022-03-03

Graphical/Tabular Creation of User-Defined Cross-Sections in RSECTION 1

RSECTION 1 is a stand-alone program for determining section properties for both thin-walled and massive cross-sections, as well as for performing a stress analysis. In addition, the program can be connected to both RFEM and RSTAB: sections from RSECTION are available in the RFEM/RSTAB libraries, and internal forces from RFEM/RSTAB can be imported into RSECTION.

The user-defined cross-section in RSECTION 1 can be created by entering data using various methods: graphically, in tables, via script, or by importing a DXF file. This article will show the basis of defining cross-sections in graphical and tabular form.

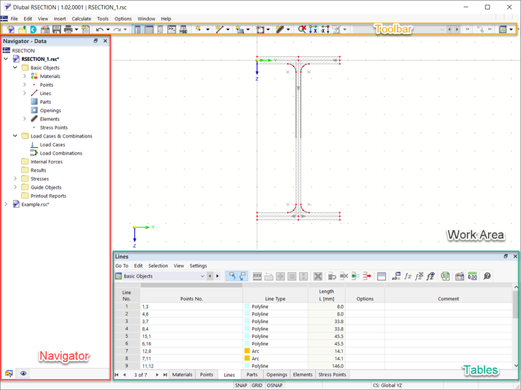
Graphical tools and functions in RSECTION allow modeling complex section shapes in the usual method common for CAD programs. The graphical input supports, among other things, the settings of arcs, circles, ellipses, parabolas, and NURBS. Furthermore, the user interface is very similar to that of RFEM/RSTAB: it includes the working window, navigator, tables, and toolbar (Image 1).

In the same fashion as in RFEM 6, you can define basic objects such as materials, points, lines, parts, openings, elements, and stress points using the Data tab of the navigator. The material library is available to import materials, but you can also define it yourself.

As a matter of fact, cross-sections in RSECTION 1 are generated as an assembly of elements defined as single lines, arcs, circles, ellipses, parabolas, and NURBS. They can be defined graphically via the toolbar as shown in Image 2. Additionally, you can define them by the dialog box available via the toolbar, the navigator, and the tables.


The defined elements must always lie in a surface called a "part". If the elements are created graphically, parts are created automatically. If, on the other hand, they are created via a dialog box, parts must be created beforehand. You can define parts by selecting their boundary lines, as shown in this article’s video.

Cross-sectional properties such as cross-sectional area and moment of inertia are calculated on the basis of defining the parts. Finally, stress points are generated automatically by defining the parts (Image 3); nevertheless, they can be defined manually as well.

Once the cross-section has been defined and the stress points have been generated, you can initiate the analysis and calculate the stresses on the effective cross-section. The stress analysis in RSECTION 1 will be considered in an upcoming Knowledge Base article.


Author

Ms. Kirova is responsible for creating technical articles and provides technical support to Dlubal customers.

Links


;